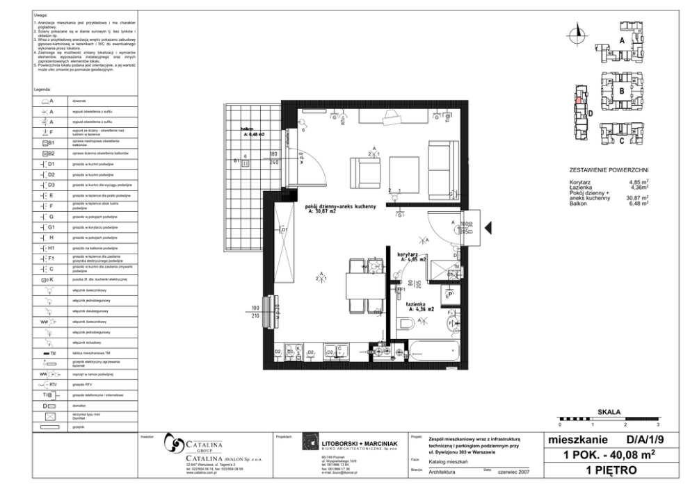
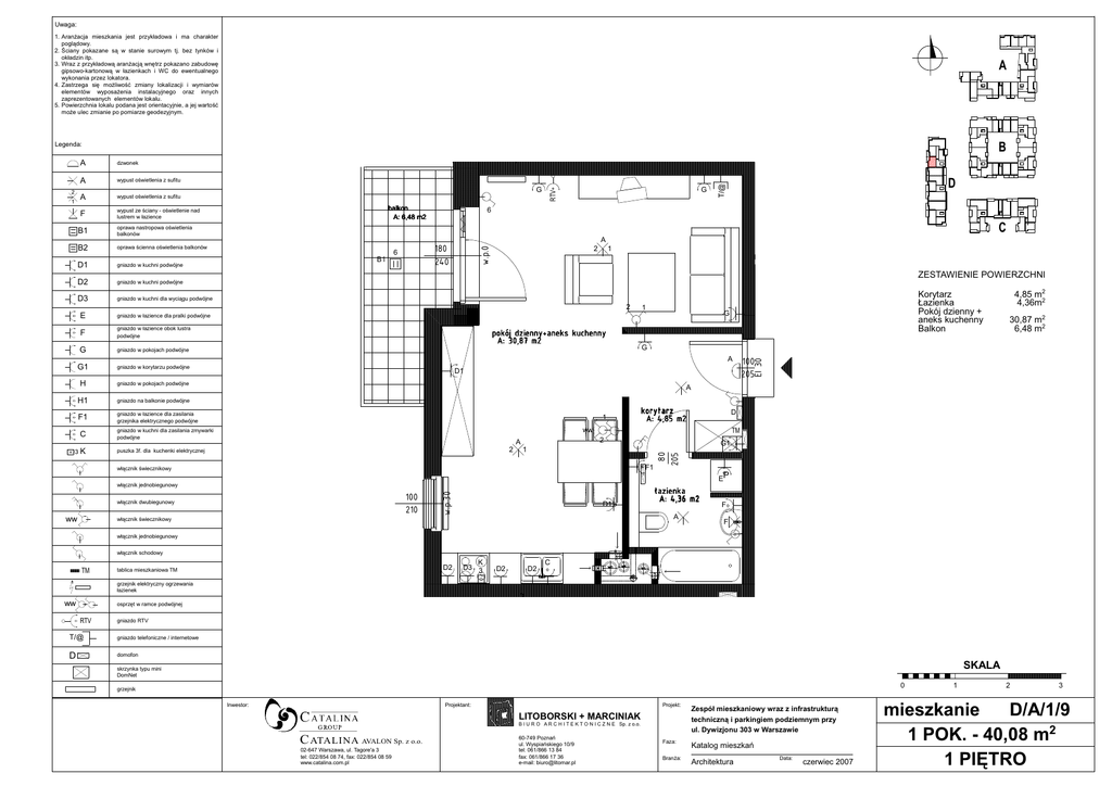
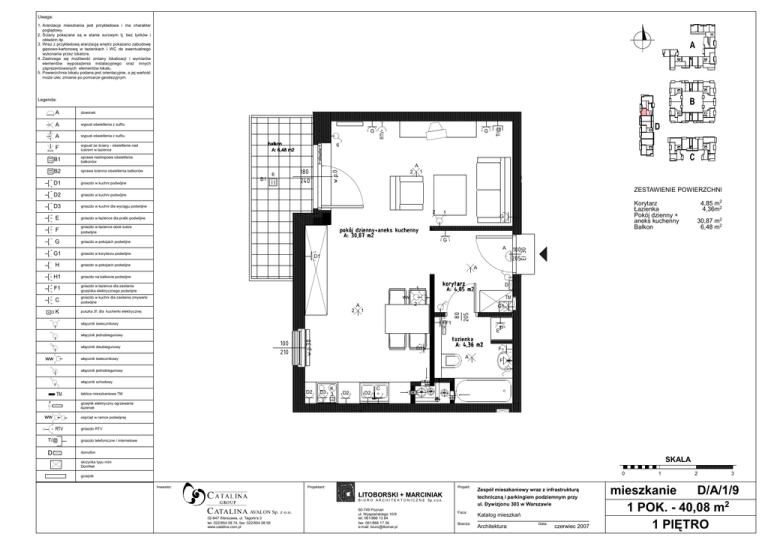
1 PIĘTRO mieszkanie D/A/1/9 1 POK.

Transkrypt

1 PIĘTRO mieszkanie D/A/1/9 1 POK.
Uwaga:
1. AranŜacja mieszkania jest przykładowa i ma charakter
poglądowy.
2. Ściany pokazane są w stanie surowym tj. bez tynków i
okładzin itp.
3. Wraz z przykładową aranŜacją wnętrz pokazano zabudowę
gipsowo-kartonową w łazienkach i WC do ewentualnego
wykonania przez lokatora.
4. Zastrzega się moŜliwość zmiany lokalizacji i wymiarów
elementów wyposaŜenia instalacyjnego oraz innych
zaprezentowanych elementów lokalu.
5. Powierzchnia lokalu podana jest orientacyjnie, a jej wartość
moŜe ulec zmianie po pomiarze geodezyjnym.
A
Legenda:
F
wypust ze ściany - oświetlenie nad
lustrem w łazience
B1
oprawa nastropowa oświetlenia
balkonów
B2
oprawa ścienna oświetlenia balkonów
D1
gniazdo w kuchni podwµjne
D2
gniazdo w kuchni podwµjne
D3
gniazdo w kuchni dla wyciągu podwµjne
gniazdo w łazience dla pralki podwµjne
F
gniazdo w łazience obok lustra
podwµjne
G
gniazdo w pokojach podwµjne
G1
gniazdo w korytarzu podwµjne
H
gniazdo w pokojach podwµjne
H1
gniazdo na balkonie podwµjne
F1
gniazdo w łazience dla zasilania
grzejnika elektrycznego podwµjne
C
EDONRQ
$P
G
C
A
B1
180
240
6
1
2
ZESTAWIENIE POWIERZCHNI
1
pokój dzienny+aneks kuchenny
A: 30,87 m2
Korytarz
Łazienka
Pokój dzienny +
aneks kuchenny
Balkon
G
4,85 m2
4,36m2
30,87 m2
6,48 m2
G
A
D1
100
205
A
korytarz
A: 4,85 m2
1
D
70
ww
gniazdo w kuchni dla zasilania zmywarki
podwµjne
2
puszka 3f. dla kuchenki elektrycznej
A
2
G1
1
F1
włącznik świecznikowy
100
210
włącznik dwubiegunowy
w.p.30
włącznik jednobiegunowy
ww
D
6
2
E
3K
G
EI 30
wypust oświetlenia z sufitu
7#
wypust oświetlenia z sufitu
A
80
205
A
RTV
1
dzwonek
w.p.0
2
B
A
EP
łazienka
A: 4,36 m2
D1
A
włącznik świecznikowy
F
F
włącznik jednobiegunowy
włącznik schodowy
70
D2
tablica mieszkaniowa TM
K
D3 3
D2
D2
C
WO
WK
WŁ
KS
grzejnik elektryczny ogrzewania
łazienek
ww
3
osprzęt w ramce podwójnej
RTV
gniazdo RTV
7#
gniazdo telefoniczne / internetowe
'
domofon
SKALA
skrzynka typu mini
DomNet
0
grzejnik
Inwestor:
Projektant:
Projekt:
LITOBORSKI + MARCINIAK
B I U R O A R C H I T E K T O N I C Z N E Sp. z o.o.
C ATALINA AVALON Sp. z o.o.
02-647 Warszawa, ul. Tagore'a 3
tel: 022/854 08 74, fax: 022/854 08 59
www.catalina.com.pl
60-749 Poznań
ul. Wyspiańskiego 10/9
tel: 061/866 13 84
fax: 061/866 17 36
e-mail: [email protected]
Zespół mieszkaniowy wraz z infrastrukturą
techniczną i parkingiem podziemnym przy
ul. Dywizjonu 303 w Warszawie
Faza:
Katalog mieszkań
BranŜa:
Architektura
Data:
czerwiec 2007
1
2
3
mieszkanie
D/A/1/9
1 POK. - 40,08 m2
1 PIĘTRO