4 PIETRO mieszkanie B/E/4/21 2 POK.

Transkrypt

4 PIETRO mieszkanie B/E/4/21 2 POK.
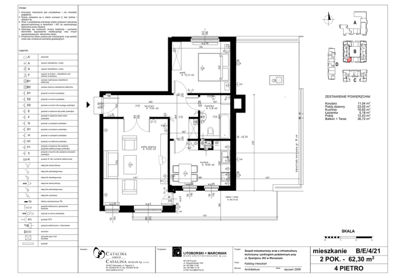
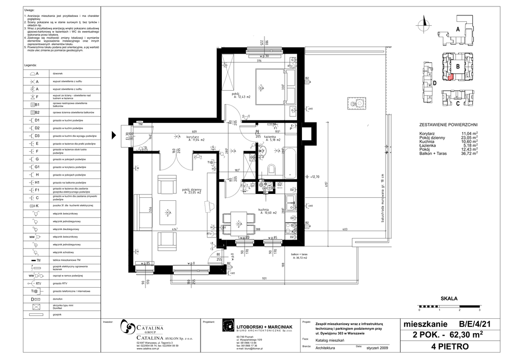
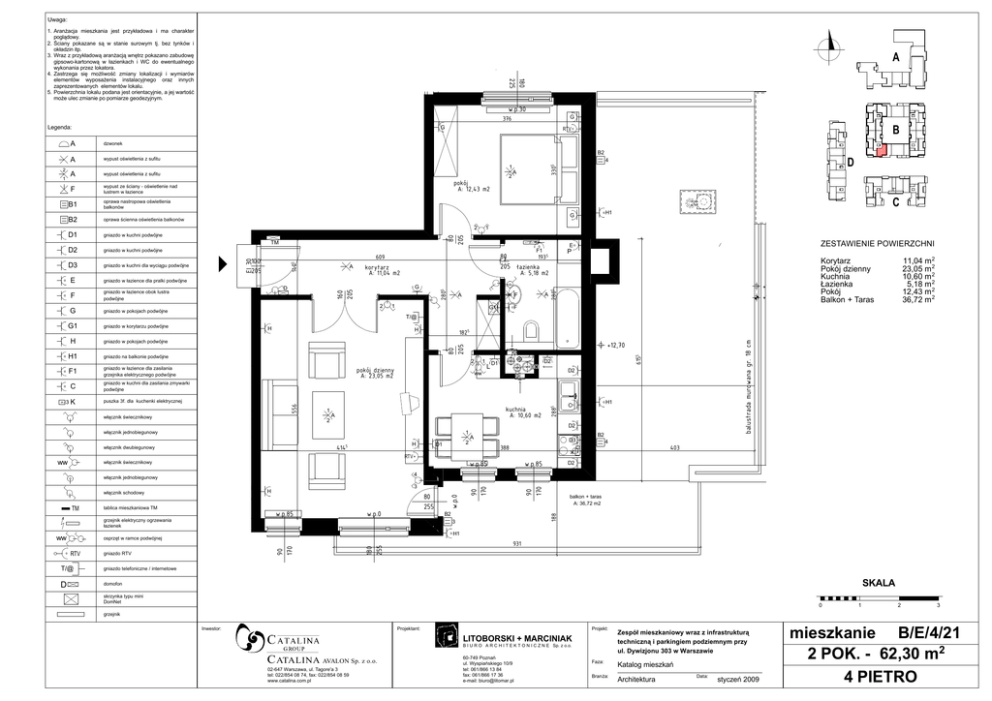
Uwaga:
1. Aranżacja mieszkania jest przykładowa i ma charakter
poglądowy.
2. Ściany pokazane są w stanie surowym tj. bez tynków i
okładzin itp.
3. Wraz z przykładową aranżacją wnętrz pokazano zabudowę
gipsowo-kartonową w łazienkach i WC do ewentualnego
wykonania przez lokatora.
4. Zastrzega się możliwość zmiany lokalizacji i wymiarów
elementów wyposażenia instalacyjnego oraz innych
zaprezentowanych elementów lokalu.
5. Powierzchnia lokalu podana jest orientacyjnie, a jej wartość
może ulec zmianie po pomiarze geodezyjnym.
1
A
180
225
w.p.30
G
376
Legenda:
G
A
dzwonek
A
wypust oświetlenia z sufitu
B
RTV
B2
F
wypust ze ściany - oświetlenie nad
lustrem w łazience
pokój
A: 12,43 m2
C
oprawa nastropowa oświetlenia
balkonów
G
oprawa ścienna oświetlenia balkonów
S
2
gniazdo w kuchni podwójne
25
TM
E
gniazdo w łazience dla pralki podw ójne
F
gniazdo w łazience obok lustra
podwójne
G
gniazdo w pokojach podwójne
G1
gniazdo w korytarzu podwójne
H
gniazdo w pokojach podwójne
H1
gniazdo na balkonie podwójne
F1
gniazdo w łazience dla zasilania
grzejnika elektrycznego podw ójne
80
1935
205 łazienka
609
korytarz
A: 11,04 m2
A: 5,18 m2
G
2
P
A
A
F
1
G1
+13,55
+13,49
11,04 m 2
23,05 m 2
10,60 m 2
5,18 m 2
12,43 m 2
36,72 m 2
Korytarz
Pokój dzienny
Kuchnia
Łazienka
Pokój
Balkon + Taras
F
T/@
H
1825
balustrada murowana gr. 18 cm
H
2
pokój dzienny
A: 23,05 m2
1
L
D1
WŁ
KS
WK
6155
80
205
+12,70
D2
WO
D2
ww
gniazdo w kuchni dla zasilania zmywarki
podwójne
puszka 3f. dla kuchenki elektrycznej
włącznik świecznikowy
1
2
kuchnia
A: 10,60 m2
A
D2
włącznik jednobiegunowy
1
H
4145
włącznik dwubiegunowy
H1
C
2
D1
A
D3
388
B2
4
403
3
3K
A
D
556
C
100
205
2805
gniazdo w kuchni dla wyciągu podw ójne
ZESTAWIENIE POWIERZCHNI
E
F1
160
205
D3
1405
gniazdo w kuchni podwójne
EI 30
D2
1
80
205
D1
H1
K
B2
A
2805
B1
2
3305
wypust oświetlenia z sufitu
2885
1
A
D
4
1
2
włącznik świecznikowy
w.p.85
grzejnik elektryczny ogrzewania
łazienek
80
255
w.p.0
B2
3
gniazdo telefoniczne / internetowe
D
domofon
931
180
255
90
170
gniazdo RTV
T/@
balkon + taras
A: 36,72 m2
H1
osprzęt w ramce podwójnej
RTV
D2
188
tablica mieszkaniowa TM
w.p.0
3
H
włącznik schodowy
ww
w.p.85
4
włącznik jednobiegunowy
TM
w.p.85
90
170
ww
90
170
RTV
SKALA
skrzynka typu mini
DomNet
0
1
2
3
grzejnik
Inwestor:
Projektant:
Projekt:
LITOBORSKI + MARCINIAK
B I U R O A R C H I T E K T O N I C Z N E Sp. z o.o.
C ATALINA AVALON Sp. z o.o.
02-647 Warszawa, ul. Tagore'a 3
tel: 022/854 08 74, fax: 022/854 08 59
www.catalina.com.pl
60-749 Poznań
ul. Wyspiańskiego 10/9
tel: 061/866 13 84
fax: 061/866 17 36
e-mail: [email protected]
Zespół mieszkaniowy wraz z infrastrukturą
techniczną i parkingiem podziemnym przy
ul. Dywizjonu 303 w Warszawie
Faza:
Katalog mieszkań
Branża:
Architektura
Data:
styczeń 2009
mieszkanie B/E/4/21
2 POK. - 62,30 m2
4 PIETRO