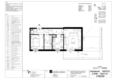
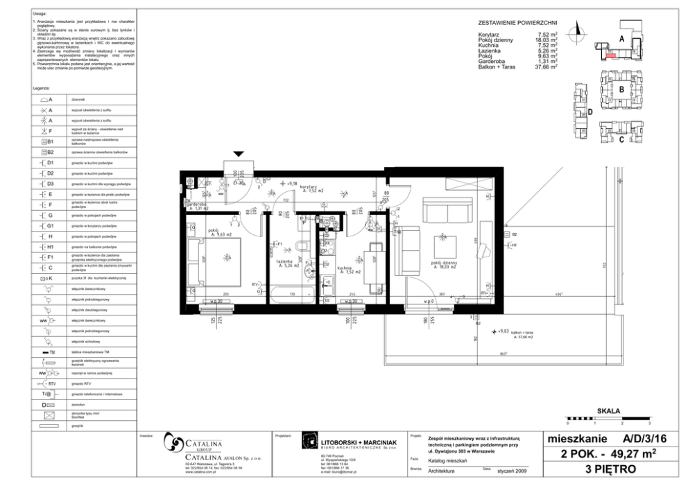
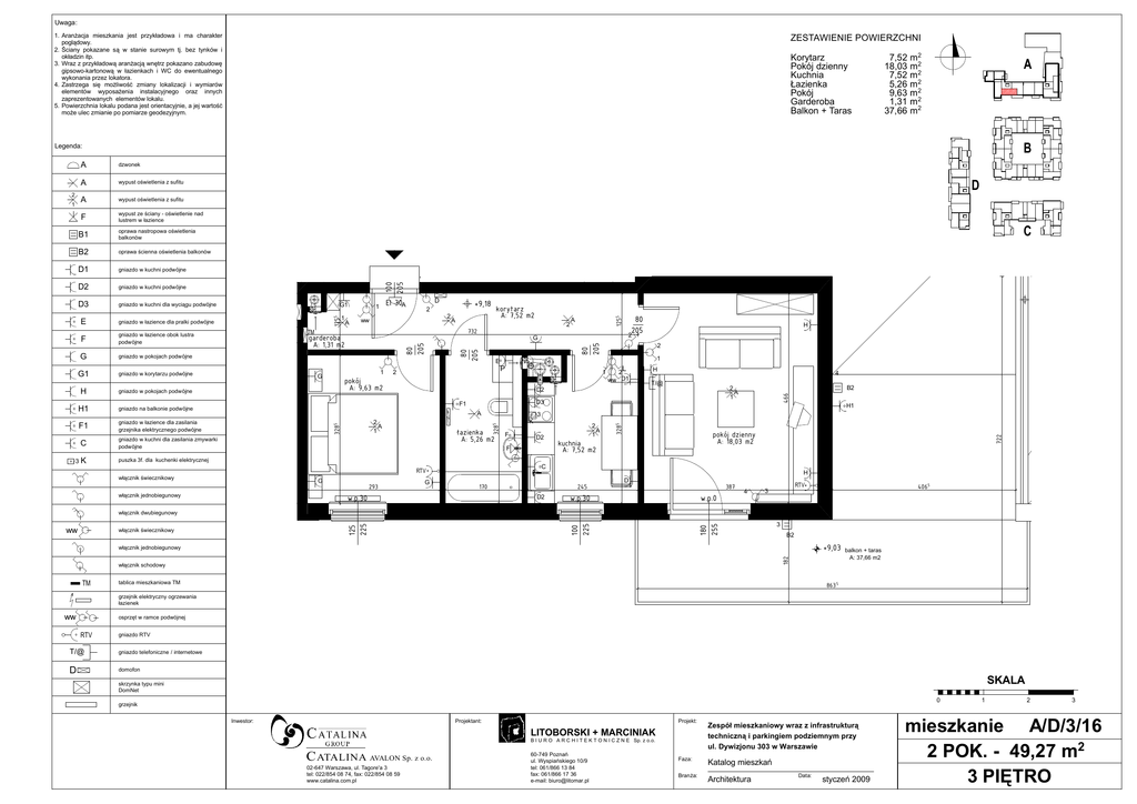
A/D/3/16 3 PIĘTRO mieszkanie 2 POK.

Transkrypt

A/D/3/16 3 PIĘTRO mieszkanie 2 POK.
Uwaga:
1. Aranżacja mieszkania jest przykładowa i ma charakter
poglądowy.
2. Ściany pokazane są w stanie surowym tj. bez tynków i
okładzin itp.
3. Wraz z przykładową aranżacją wnętrz pokazano zabudowę
gipsowo-kartonową w łazienkach i WC do ewentualnego
wykonania przez lokatora.
4. Zastrzega się możliwość zmiany lokalizacji i wymiarów
elementów wyposażenia instalacyjnego oraz innych
zaprezentowanych elementów lokalu.
5. Powierzchnia lokalu podana jest orientacyjnie, a jej wartość
może ulec zmianie po pomiarze geodezyjnym.
ZESTAWIENIE POWIERZCHNI
Korytarz
Pokój dzienny
Kuchnia
Łazienka
Pokój
Garderoba
Balkon + Taras
7,52 m2
18,03 m2
7,52 m2
5,26 m2
9,63 m2
1,31 m2
37,66 m2
A
B
Legenda:
B2
oprawa ścienna oświetlenia balkonów
D1
gniazdo w kuchni podw ójne
D2
gniazdo w kuchni podw ójne
D3
gniazdo w kuchni dla wyciągu podwójne
WG
F
G
gniazdo w pokojach podw ójne
G1
H
F1
gniazdo w łazience dla zasilania
grzejnika elektrycznego podwójne
3K
A
+9,18
2
2
ww
1
G
korytarz
A: 7,52 m2
A
2
732
garderoba
A: 1,31 m2
A
80
205
2
G
E
2
WO
1
WK
1
L
2
ww D1
D2
A
4
T/@
B2
2
A
1
H1
3
łazienka
A: 5,26 m2
gniazdo w kuchni dla zasilania zmywarki
podwójne
H
D3
F1
2
A
1
H
WŁ
KS
P
2
pokój
A: 9,63 m2
gniazdo w pokojach podw ójne
gniazdo na balkonie podw ójne
1
D
EI 30A
1
TM
gniazdo w korytarzu podwójne
H1
C
G1
gniazdo w łazience dla pralki podwójne
gniazdo w łazience obok lustra
podwójne
1
25
80
205
E
C
K
F
D2
F
2
A
1
pokój dzienny
A: 18,03 m2
kuchnia
A: 7,52 m2
722
oprawa nastropowa oświetlenia
balkonów
466
B1
1255
wypust ze ściany - oświetlenie nad
lustrem w łazience
328 5
F
D
80
205
wypust oświetlenia z sufitu
328 5
A
80
205
wypust oświetlenia z sufitu
100
205
A
1255
1
dzwonek
328 5
2
A
puszka 3f. dla kuchenki elektrycznej
C
RTV
włącznik świecznikowy
G
włącznik jednobiegunowy
293
G
170
w.p.30
H
245
D2
D
387
w.p.30
w.p.0
4
RTV
3
4065
180
255
włącznik świecznikowy
100
225
ww
125
225
włącznik dwubiegunowy
3
B2
+9,03
182
włącznik jednobiegunowy
włącznik schodowy
TM
tablica mieszkaniowa TM
balkon + taras
A: 37,66 m2
863 5
grzejnik elektryczny ogrzewania
łazienek
ww
osprzęt w ramce podwójnej
RTV
gniazdo RTV
T/@
gniazdo telefoniczne / internetowe
D
domofon
SKALA
skrzynka typu mini
DomNet
0
grzejnik
Inwestor:
Projektant:
Projekt:
LITOBORSKI + MARCINIAK
B I U R O A R C H I T E K T O N I C Z N E Sp. z o.o.
C ATALINA AVALON Sp. z o.o.
02-647 Warszawa, ul. Tagore'a 3
tel: 022/854 08 74, fax: 022/854 08 59
www.catalina.com.pl
60-749 Poznań
ul. Wyspiańskiego 10/9
tel: 061/866 13 84
fax: 061/866 17 36
e-mail: [email protected]
Zespół mieszkaniowy wraz z infrastrukturą
techniczną i parkingiem podziemnym przy
ul. Dywizjonu 303 w Warszawie
Faza:
Katalog mieszkań
Branża:
Architektura
Data:
styczeń 2009
1
2
3
mieszkanie A/D/3/16
2 POK. - 49,27 m2
3 PIĘTRO