Karta lokalu do wydruku

Transkrypt

Karta lokalu do wydruku
Uwaga:
1. AranŜacja mieszkania jest przykładowa i ma charakter
poglądowy.
2. Ściany pokazane są w stanie surowym tj. bez tynków i
okładzin itp.
3. Wraz z przykładową aranŜacją wnętrz pokazano zabudowę
gipsowo-kartonową w łazienkach i WC do ewentualnego
wykonania przez lokatora.
4. Zastrzega się moŜliwość zmiany lokalizacji i wymiarów
elementów wyposaŜenia instalacyjnego oraz innych
zaprezentowanych elementów lokalu.
5. Powierzchnia lokalu podana jest orientacyjnie, a jej wartość
moŜe ulec zmianie po pomiarze geodezyjnym.
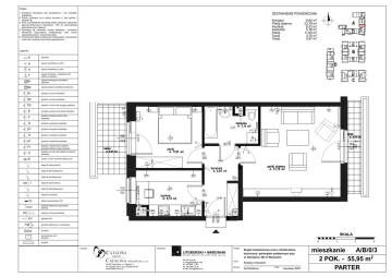
ZESTAWIENIE POWIERZCHNI
Korytarz
Pokój dzienny
Kuchnia
Łazienka
Pokój
Taras
Taras
6,82 m2
23,79 m2
8,33 m2
5,16 m2
11,85 m2
3,75 m2
5,87 m2
A
Legenda:
F
wypust ze ściany - oświetlenie nad
lustrem w łazience
B1
oprawa nastropowa oświetlenia
balkonów
B2
oprawa ścienna oświetlenia balkonów
D1
gniazdo w kuchni podwµjne
D2
gniazdo w kuchni podwµjne
D3
gniazdo w kuchni dla wyciągu podwµjne
E
gniazdo w łazience dla pralki podwµjne
F
gniazdo w łazience obok lustra
podwµjne
G
gniazdo w pokojach podwµjne
G1
gniazdo w korytarzu podwµjne
H
gniazdo w pokojach podwµjne
H1
gniazdo na balkonie podwµjne
F1
gniazdo w łazience dla zasilania
grzejnika elektrycznego podwµjne
C
3K
D
C
KS
B2
G
G
3
WŁ
H
3
A
łazienka
A: 5,16 m2
3
F1
180
240
2
1
EDONRQ
$P
gniazdo w kuchni dla zasilania zmywarki
podwµjne
puszka 3f. dla kuchenki elektrycznej
G
WDUDV
$P
P
A
2
E
2
1
pokój
A: 11,85 m2
włącznik świecznikowy
80
205
80
205
A
1
1
2
D1 L
D1
włącznik dwubiegunowy
A
180
240
B1
3
pokój dzienny
A: 23,79 m2
korytarz
A: 6,82 m2
włącznik jednobiegunowy
ww
H
F
F
w.p.0
wypust oświetlenia z sufitu
7#
wypust oświetlenia z sufitu
A
80
205
A
RTV
G
włącznik świecznikowy
włącznik schodowy
tablica mieszkaniowa TM
WK
osprzęt w ramce podwójnej
RTV
WO
D2
D3
KS
D2
K
H
C
H
A
2
'
ww
grzejnik elektryczny ogrzewania
łazienek
ww
80
205
kuchnia
A: 8,33 m2
1
D2
3
A
100
205
70
2
A
1
w.p.85
140
155
włącznik jednobiegunowy
RTV
1
dzwonek
w.p.0
2
B
A
gniazdo RTV
G1
70
EI 30
7#
gniazdo telefoniczne / internetowe
'
domofon
SKALA
skrzynka typu mini
DomNet
0
grzejnik
Inwestor:
Projektant:
Projekt:
LITOBORSKI + MARCINIAK
B I U R O A R C H I T E K T O N I C Z N E Sp. z o.o.
C ATALINA AVALON Sp. z o.o.
02-647 Warszawa, ul. Tagore'a 3
tel: 022/854 08 74, fax: 022/854 08 59
www.catalina.com.pl
60-749 Poznań
ul. Wyspiańskiego 10/9
tel: 061/866 13 84
fax: 061/866 17 36
e-mail: [email protected]
Zespół mieszkaniowy wraz z infrastrukturą
techniczną i parkingiem podziemnym przy
ul. Dywizjonu 303 w Warszawie
Faza:
Katalog mieszkań
BranŜa:
Architektura
Data:
czerwiec 2007
1
2
3
mieszkanie
A/B/0/3
2 POK. - 55,95 m2
PARTER