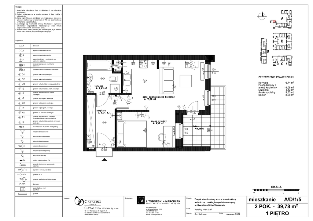
A/D/1/5 1 PIĘTRO mieszkanie 2 POK.

Transkrypt

A/D/1/5 1 PIĘTRO mieszkanie 2 POK.
Uwaga:
1. AranŜacja mieszkania jest przykładowa i ma charakter
poglądowy.
2. Ściany pokazane są w stanie surowym tj. bez tynków i
okładzin itp.
3. Wraz z przykładową aranŜacją wnętrz pokazano zabudowę
gipsowo-kartonową w łazienkach i WC do ewentualnego
wykonania przez lokatora.
4. Zastrzega się moŜliwość zmiany lokalizacji i wymiarów
elementów wyposaŜenia instalacyjnego oraz innych
zaprezentowanych elementów lokalu.
5. Powierzchnia lokalu podana jest orientacyjnie, a jej wartość
moŜe ulec zmianie po pomiarze geodezyjnym.
A
Legenda:
F
wypust ze ściany - oświetlenie nad
lustrem w łazience
D
3
WO
oprawa nastropowa oświetlenia
balkonów
D2
gniazdo w kuchni podwµjne
D3
gniazdo w kuchni dla wyciągu podwµjne
E
gniazdo w łazience dla pralki podwµjne
F
gniazdo w łazience obok lustra
podwµjne
G
gniazdo w pokojach podwµjne
G1
gniazdo w korytarzu podwµjne
H
gniazdo w pokojach podwµjne
H1
gniazdo na balkonie podwµjne
F1
gniazdo w łazience dla zasilania
grzejnika elektrycznego podwµjne
C
3K
H
H
C
C
F
ZESTAWIENIE POWIERZCHNI
A
F
F1
3
łazienka
A: 4,43 m2
PE
A
Korytarz
Pokój dzienny +
aneks kuchenny
Łazienka
Aneks sypialny
Balkon
2
A
1
D2
pokój dzienny+aneks kuchenny
A: 19,08 m2
3
80 1
205
2
ww
H
H
100
240
6,74 m2
19,08 m2
4,43 m2
9,53 m2
8,08 m2
4
korytarz
A: 6,74 m2
G
gniazdo w kuchni dla zasilania zmywarki
podwµjne
100
210
80
240
gniazdo w kuchni podwµjne
D2
WK
G
7#
oprawa ścienna oświetlenia balkonów
K
KS
B2
D1
D3
D2
WŁ
80
205
B1
w.p.30
wypust oświetlenia z sufitu
w.p.0
wypust oświetlenia z sufitu
A
RTV
A
7#
1
dzwonek
G
1
2
w.p.0
aneks sypialny
A: 9,53 m2
A
puszka 3f. dla kuchenki elektrycznej
w.p.85
2
B
A
2
A
1
włącznik świecznikowy
100
155
EDONRQ
$P
B1
4
ww
'
G1
70
włącznik świecznikowy
włącznik jednobiegunowy
A
G
G
100
205
włącznik dwubiegunowy
RTV
włącznik jednobiegunowy
włącznik schodowy
70
tablica mieszkaniowa TM
grzejnik elektryczny ogrzewania
łazienek
ww
osprzęt w ramce podwójnej
RTV
gniazdo RTV
7#
gniazdo telefoniczne / internetowe
'
domofon
SKALA
skrzynka typu mini
DomNet
0
grzejnik
Inwestor:
Projektant:
Projekt:
LITOBORSKI + MARCINIAK
B I U R O A R C H I T E K T O N I C Z N E Sp. z o.o.
C ATALINA AVALON Sp. z o.o.
02-647 Warszawa, ul. Tagore'a 3
tel: 022/854 08 74, fax: 022/854 08 59
www.catalina.com.pl
60-749 Poznań
ul. Wyspiańskiego 10/9
tel: 061/866 13 84
fax: 061/866 17 36
e-mail: [email protected]
Zespół mieszkaniowy wraz z infrastrukturą
techniczną i parkingiem podziemnym przy
ul. Dywizjonu 303 w Warszawie
Faza:
Katalog mieszkań
BranŜa:
Architektura
Data:
czerwiec 2007
1
2
3
mieszkanie
A/D/1/5
2 POK. - 39,78 m2
1 PIĘTRO