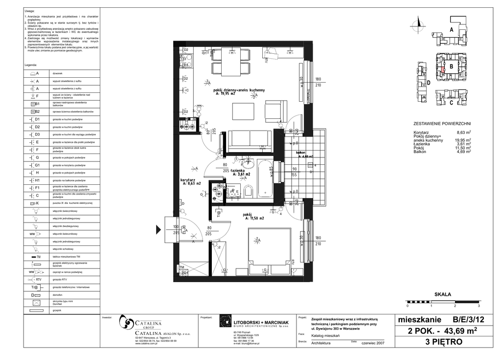
3 PIĘTRO mieszkanie B/E/3/12 2 POK.

Transkrypt

3 PIĘTRO mieszkanie B/E/3/12 2 POK.
Uwaga:
1. AranŜacja mieszkania jest przykładowa i ma charakter
poglądowy.
2. Ściany pokazane są w stanie surowym tj. bez tynków i
okładzin itp.
3. Wraz z przykładową aranŜacją wnętrz pokazano zabudowę
gipsowo-kartonową w łazienkach i WC do ewentualnego
wykonania przez lokatora.
4. Zastrzega się moŜliwość zmiany lokalizacji i wymiarów
elementów wyposaŜenia instalacyjnego oraz innych
zaprezentowanych elementów lokalu.
5. Powierzchnia lokalu podana jest orientacyjnie, a jej wartość
moŜe ulec zmianie po pomiarze geodezyjnym.
D2
K
D3
wypust oświetlenia z sufitu
F
wypust ze ściany - oświetlenie nad
lustrem w łazience
B1
oprawa nastropowa oświetlenia
balkonów
B2
oprawa ścienna oświetlenia balkonów
D1
gniazdo w kuchni podwµjne
D2
gniazdo w kuchni podwµjne
D3
gniazdo w kuchni dla wyciągu podwµjne
E
gniazdo w łazience dla pralki podwµjne
F
gniazdo w łazience obok lustra
podwµjne
G
gniazdo w pokojach podwµjne
G1
gniazdo w korytarzu podwµjne
H
gniazdo w pokojach podwµjne
H1
gniazdo na balkonie podwµjne
F1
gniazdo w łazience dla zasilania
grzejnika elektrycznego podwµjne
C
3K
3
A
2
D2
C
3
WO
WK
1
ZESTAWIENIE POWIERZCHNI
Korytarz
Pokój dzienny+
aneks kuchenny
Łazienka
Pokój
Balkon
w.p.0
H
EDONRQ
$P
F
80
205 łazienka
A
F
A: 3,61 m2
A
korytarz
A: 8,63 m2
G
P E
F1
WO
EI 30
4
włącznik jednobiegunowy
pokój
A: 11,50 m2
G
4
80
205
A
B1
w.p.0
D
D
100
205
19,95 m2
3,61 m2
11,50 m2
4,69 m2
4
90
155
KS
puszka 3f. dla kuchenki elektrycznej
8,63 m2
WŁ
WK
gniazdo w kuchni dla zasilania zmywarki
podwµjne
włącznik świecznikowy
2
A
1
1
A
2
włącznik schodowy
180
210
tablica mieszkaniowa TM
RTV
grzejnik elektryczny ogrzewania
łazienek
TM
osprzęt w ramce podwójnej
RTV
4
2
KS
włącznik dwubiegunowy
ww
D
ww
włącznik jednobiegunowy
70
180
210
pokój dzienny+aneks kuchenny
1
A: 19,95 m2
A
C
włącznik świecznikowy
ww
w.p.30
A
D2
w.p.30
wypust oświetlenia z sufitu
80
240
A
B
80
240
dzwonek
w.p.85
A
7#
1
H
80
205
2
H
3
RTV
Legenda:
D1
7#
A
G
G
G1
gniazdo RTV
7#
gniazdo telefoniczne / internetowe
'
domofon
SKALA
skrzynka typu mini
DomNet
0
1
2
3
grzejnik
Inwestor:
Projektant:
Projekt:
LITOBORSKI + MARCINIAK
B I U R O A R C H I T E K T O N I C Z N E Sp. z o.o.
C ATALINA AVALON Sp. z o.o.
02-647 Warszawa, ul. Tagore'a 3
tel: 022/854 08 74, fax: 022/854 08 59
www.catalina.com.pl
60-749 Poznań
ul. Wyspiańskiego 10/9
tel: 061/866 13 84
fax: 061/866 17 36
e-mail: [email protected]
Zespół mieszkaniowy wraz z infrastrukturą
techniczną i parkingiem podziemnym przy
ul. Dywizjonu 303 w Warszawie
Faza:
Katalog mieszkań
BranŜa:
Architektura
Data:
czerwiec 2007
mieszkanie B/E/3/12
2 POK. - 43,69 m2
3 PIĘTRO