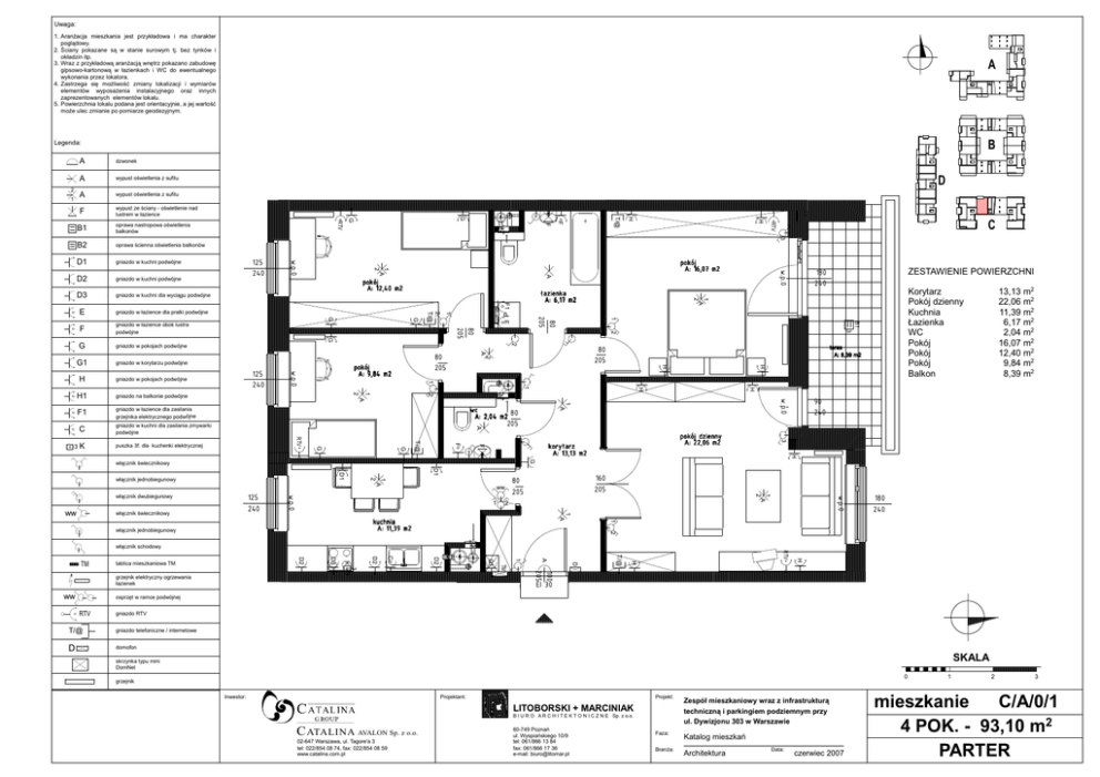
C/A/0/1 PARTER mieszkanie 4 POK.

Transkrypt

C/A/0/1 PARTER mieszkanie 4 POK.
Uwaga:
1. AranŜacja mieszkania jest przykładowa i ma charakter
poglądowy.
2. Ściany pokazane są w stanie surowym tj. bez tynków i
okładzin itp.
3. Wraz z przykładową aranŜacją wnętrz pokazano zabudowę
gipsowo-kartonową w łazienkach i WC do ewentualnego
wykonania przez lokatora.
4. Zastrzega się moŜliwość zmiany lokalizacji i wymiarów
elementów wyposaŜenia instalacyjnego oraz innych
zaprezentowanych elementów lokalu.
5. Powierzchnia lokalu podana jest orientacyjnie, a jej wartość
moŜe ulec zmianie po pomiarze geodezyjnym.
A
Legenda:
1
wypust ze ściany - oświetlenie nad
lustrem w łazience
3
w.p.0
2
A
F1
1
80
205
B1
E
3
2
80
205
2
A
2
H
H
H
H
1
WŁ
KS
w.p.0
1
A
3
F
F
G
7#
G
pokój dzienny
A: 22,06 m2
H
korytarz
A: 13,13 m2
G
włącznik świecznikowy
D1
A
A
w.p.0
1
1
160
205
2
włącznik świecznikowy
ww
2
1
125
240
w.p.0
włącznik dwubiegunowy
80
205
1
2
D1
włącznik jednobiegunowy
2
kuchnia
A: 11,39 m2
włącznik jednobiegunowy
180
240
1
A
ww
90
240
205
A
gniazdo w kuchni dla zasilania zmywarki
podwµjne
puszka 3f. dla kuchenki elektrycznej
13,13 m2
22,06 m2
11,39 m2
6,17 m2
2,04 m2
16,07 m2
12,40 m2
9,84 m2
8,39 m2
Korytarz
Pokój dzienny
Kuchnia
Łazienka
WC
Pokój
Pokój
Pokój
Balkon
WDUDV
$P
80
205
wc
A: 2,04 m2 80
RTV
3K
ZESTAWIENIE POWIERZCHNI
180
240
2
1
gniazdo w łazience dla zasilania
grzejnika elektrycznego podwµjne
łazienka
A: 6,17 m2
A
gniazdo na balkonie podwµjne
F1
pokój
A: 9,84 m2
2
H1
125
240
80
205
1
gniazdo w pokojach podwµjne
G
H
G
gniazdo w pokojach podwµjne
gniazdo w korytarzu podwµjne
w.p.0
G
G1
1
gniazdo w łazience obok lustra
podwµjne
2
7#
gniazdo w łazience dla pralki podwµjne
F
G
E
pokój
A: 12,40 m2
1
gniazdo w kuchni dla wyciągu podwµjne
pokój
A: 16,07 m2
A
D3
125
240
A
gniazdo w kuchni podwµjne
2
gniazdo w kuchni podwµjne
D2
1
oprawa ścienna oświetlenia balkonów
w.p.0
B2
D1
C
C
RTV
H
F
F
G
oprawa nastropowa oświetlenia
balkonów
RTV
B1
H
F
D
7#
wypust oświetlenia z sufitu
KS
wypust oświetlenia z sufitu
A
WŁ
A
G
dzwonek
P
2
B
A
włącznik schodowy
H
RTV
H
D
3
100
205
70
7#
A
1
KS
G1
WK
WO
D2
D2
C
3
grzejnik elektryczny ogrzewania
łazienek
ww
K
tablica mieszkaniowa TM
D3
D2
70
EI 30
osprzęt w ramce podwójnej
RTV
gniazdo RTV
7#
gniazdo telefoniczne / internetowe
'
domofon
SKALA
skrzynka typu mini
DomNet
0
grzejnik
Inwestor:
Projektant:
Projekt:
LITOBORSKI + MARCINIAK
B I U R O A R C H I T E K T O N I C Z N E Sp. z o.o.
C ATALINA AVALON Sp. z o.o.
02-647 Warszawa, ul. Tagore'a 3
tel: 022/854 08 74, fax: 022/854 08 59
www.catalina.com.pl
60-749 Poznań
ul. Wyspiańskiego 10/9
tel: 061/866 13 84
fax: 061/866 17 36
e-mail: [email protected]
Zespół mieszkaniowy wraz z infrastrukturą
techniczną i parkingiem podziemnym przy
ul. Dywizjonu 303 w Warszawie
Faza:
Katalog mieszkań
BranŜa:
Architektura
Data:
czerwiec 2007
1
2
3
mieszkanie
C/A/0/1
4 POK. - 93,10 m2
PARTER