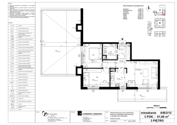
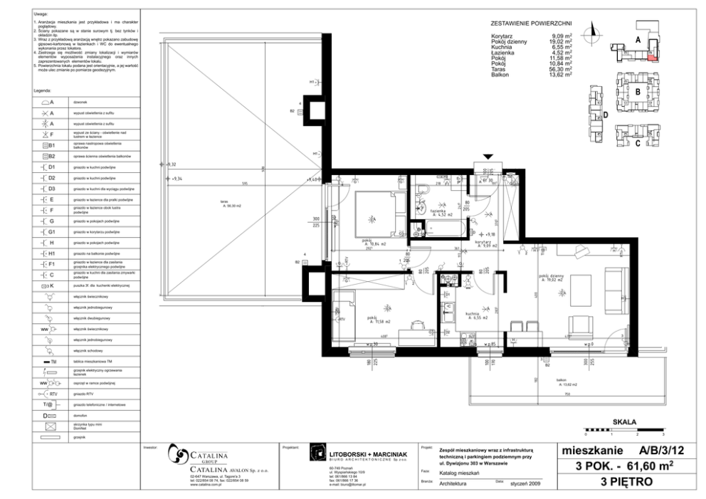
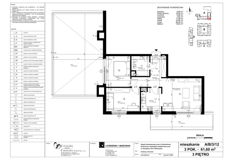
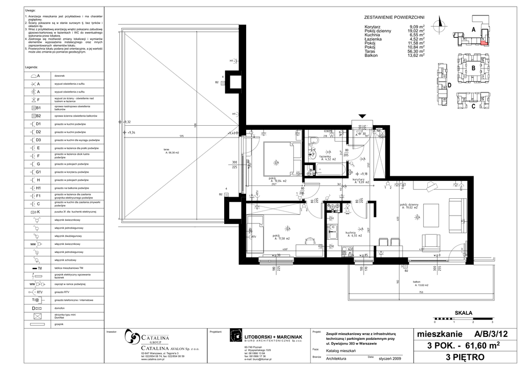
Karta lokalu do wydruku

Transkrypt

Karta lokalu do wydruku
Uwaga:
1. Aranżacja mieszkania jest przykładowa i ma charakter
poglądowy.
2. Ściany pokazane są w stanie surowym tj. bez tynków i
okładzin itp.
3. Wraz z przykładową aranżacją wnętrz pokazano zabudowę
gipsowo-kartonową w łazienkach i WC do ewentualnego
wykonania przez lokatora.
4. Zastrzega się możliwość zmiany lokalizacji i wymiarów
elementów wyposażenia instalacyjnego oraz innych
zaprezentowanych elementów lokalu.
5. Powierzchnia lokalu podana jest orientacyjnie, a jej wartość
może ulec zmianie po pomiarze geodezyjnym.
ZESTAWIENIE POWIERZCHNI
9,09 m2
19,02 m2
6,55 m2
4,52 m2
11,58 m2
10,84 m2
56,30 m2
13,62 m2
Korytarz
Pokój dzienny
Kuchnia
Łazienka
Pokój
Pokój
Taras
Balkon
A
H1
B
Legenda:
B2
oprawa ścienna oświetlenia balkonów
D1
gniazdo w kuchni podw ójne
D2
gniazdo w kuchni podw ójne
C
H1
+9,32
+9,34
+9,40
595
D3
gniazdo w kuchni dla wyciągu podwójne
E
gniazdo w łazience dla pralki podwójne
F
gniazdo w łazience obok lustra
podwójne
G
gniazdo w pokojach podw ójne
G1
gniazdo w korytarzu podwójne
H
gniazdo w pokojach podw ójne
H1
gniazdo na balkonie podw ójne
F1
gniazdo w łazience dla zasilania
grzejnika elektrycznego podwójne
S
1
25
G
4
E
G
218
taras
A: 56,30 m2
F
A
F
300
225
łazienka
A: 4,52 m2
2
A
1
3K
191 5
G1
80
205
A
D
WŁ
pokój
A: 10,84 m2
117
1
gniazdo w kuchni dla zasilania zmywarki
podwójne
WO
1
puszka 3f. dla kuchenki elektrycznej
H
H
G
KS
G
2
80
205
1
A
80
205
G
RTV
B2
80
205
2
+9,18
korytarz
A: 9,09 m2
361
4
pokój dzienny
A: 19,02 m2
WK
2
ww
D1
włącznik świecznikowy
2
A
1
2835
włącznik jednobiegunowy
G
włącznik dwubiegunowy
ww
TM
EI 30
KS
G
2925
C
A
P
F1
RTV
C
G
4085
włącznik jednobiegunowy
A
kuchnia
A: 6,55 m2
pokój
A: 11,58 m2
włącznik świecznikowy
RTV
oprawa nastropowa oświetlenia
balkonów
T/@
B1
H
D2
D3
w.p.30
2
A
1
400
wypust ze ściany - oświetlenie nad
lustrem w łazience
3705
F
D
2835
wypust oświetlenia z sufitu
100
205
A
2415
wypust oświetlenia z sufitu
370
1
A
4
B2
w.p.30
5
2
dzwonek
978
A
2455
K
3
w.p.85
3
4755
H
w.p.0
3
300
255
tablica mieszkaniowa TM
100
170
TM
180
225
włącznik schodowy
B2
ww
182
grzejnik elektryczny ogrzewania
łazienek
osprzęt w ramce podwójnej
RTV
750
gniazdo RTV
T/@
gniazdo telefoniczne / internetowe
D
domofon
balkon
A: 13,62 m2
SKALA
skrzynka typu mini
DomNet
0
grzejnik
Inwestor:
Projektant:
Projekt:
LITOBORSKI + MARCINIAK
B I U R O A R C H I T E K T O N I C Z N E Sp. z o.o.
C ATALINA AVALON Sp. z o.o.
02-647 Warszawa, ul. Tagore'a 3
tel: 022/854 08 74, fax: 022/854 08 59
www.catalina.com.pl
60-749 Poznań
ul. Wyspiańskiego 10/9
tel: 061/866 13 84
fax: 061/866 17 36
e-mail: [email protected]
Zespół mieszkaniowy wraz z infrastrukturą
techniczną i parkingiem podziemnym przy
ul. Dywizjonu 303 w Warszawie
Faza:
Katalog mieszkań
Branża:
Architektura
Data:
styczeń 2009
1
2
3
mieszkanie A/B/3/12
3 POK. - 61,60 m2
3 PIĘTRO