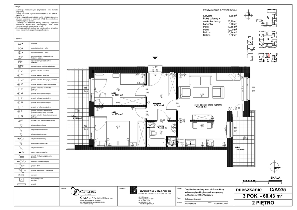
C/A/2/5 2 PIĘTRO mieszkanie 3 POK.

Transkrypt

C/A/2/5 2 PIĘTRO mieszkanie 3 POK.
Uwaga:
1. AranŜacja mieszkania jest przykładowa i ma charakter
poglądowy.
2. Ściany pokazane są w stanie surowym tj. bez tynków i
okładzin itp.
3. Wraz z przykładową aranŜacją wnętrz pokazano zabudowę
gipsowo-kartonową w łazienkach i WC do ewentualnego
wykonania przez lokatora.
4. Zastrzega się moŜliwość zmiany lokalizacji i wymiarów
elementów wyposaŜenia instalacyjnego oraz innych
zaprezentowanych elementów lokalu.
5. Powierzchnia lokalu podana jest orientacyjnie, a jej wartość
moŜe ulec zmianie po pomiarze geodezyjnym.
ZESTAWIENIE POWIERZCHNI
8,38 m2
Korytarz
Pokój dzienny +
aneks kuchenny
Łazienka
Pokój
Pokój
Balkon
Balkon
A
25,79 m2
3,70 m2
12,56 m2
10,00 m2
10,14 m2
6,62 m2
Legenda:
2
1
B
A
dzwonek
A
wypust oświetlenia z sufitu
A
wypust oświetlenia z sufitu
F
wypust ze ściany - oświetlenie nad
lustrem w łazience
oprawa nastropowa oświetlenia
balkonów
B2
oprawa ścienna oświetlenia balkonów
D1
gniazdo w kuchni podwµjne
RTV
H
H
7#
G1
D
70
A
D3
7#
gniazdo w kuchni podwµjne
gniazdo w kuchni dla wyciągu podwµjne
EI 60
G
D2
C
100
205
B1
D
1
gniazdo w łazience dla pralki podwµjne
F
gniazdo w łazience obok lustra
podwµjne
1
A
180
210
1
2
1
A
A
80
210
5
H
ww
80
205
4
2
D1
F
A
w.p.85
F
A
łazienka
A: 3,70 m2
3
A
4
F1
PE
2
1
w.p.0
180
240
3
1
puszka 3f. dla kuchenki elektrycznej
włącznik jednobiegunowy
pokój dzienny+aneks kuchenny
A: 25,79 m2
80
205
pokój
A: 12,56 m2
EDONRQ
$P
włącznik świecznikowy
80
205
korytarz
A: 8,38 m2
G
gniazdo w kuchni dla zasilania zmywarki
podwµjne
G
G
3K
B1
C
G
gniazdo w łazience dla zasilania
grzejnika elektrycznego podwµjne
G
F1
7#
gniazdo na balkonie podwµjne
2
pokój
A: 10,00 m2
3
gniazdo w pokojach podwµjne
3
H
H1
80
205
RTV
gniazdo w pokojach podwµjne
gniazdo w korytarzu podwµjne
w.p.0
G
G1
180
240
w.p.30
2
E
125
155
włącznik dwubiegunowy
5
KS
K
D2
D3
D2
D2
C
WŁ
WO
G
G
RTV
włącznik jednobiegunowy
B1
3
włącznik świecznikowy
WK
ww
3
EDONRQ
$P
włącznik schodowy
70
tablica mieszkaniowa TM
grzejnik elektryczny ogrzewania
łazienek
ww
osprzęt w ramce podwójnej
RTV
gniazdo RTV
7#
gniazdo telefoniczne / internetowe
'
domofon
SKALA
skrzynka typu mini
DomNet
0
grzejnik
Inwestor:
Projektant:
Projekt:
LITOBORSKI + MARCINIAK
B I U R O A R C H I T E K T O N I C Z N E Sp. z o.o.
C ATALINA AVALON Sp. z o.o.
02-647 Warszawa, ul. Tagore'a 3
tel: 022/854 08 74, fax: 022/854 08 59
www.catalina.com.pl
60-749 Poznań
ul. Wyspiańskiego 10/9
tel: 061/866 13 84
fax: 061/866 17 36
e-mail: [email protected]
Zespół mieszkaniowy wraz z infrastrukturą
techniczną i parkingiem podziemnym przy
ul. Dywizjonu 303 w Warszawie
Faza:
Katalog mieszkań
BranŜa:
Architektura
Data:
czerwiec 2007
1
2
3
mieszkanie
C/A/2/5
3 POK. - 60,43 m2
2 PIĘTRO