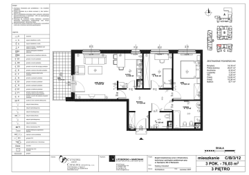
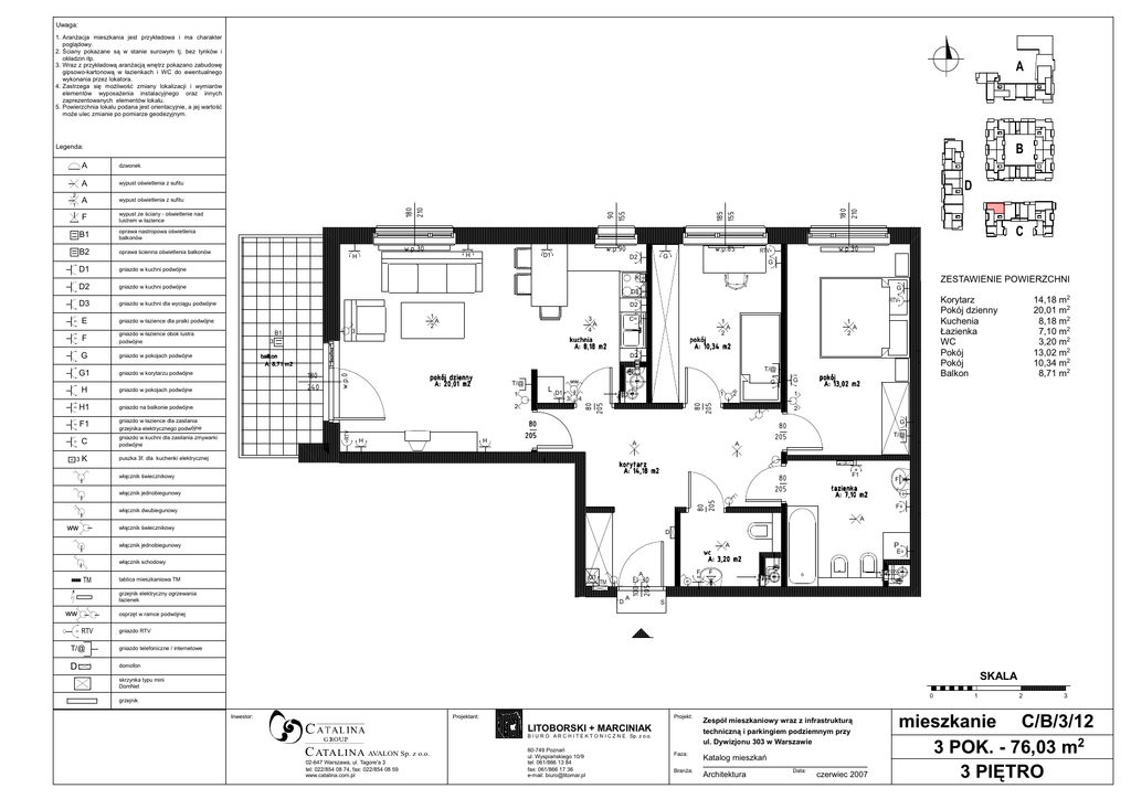
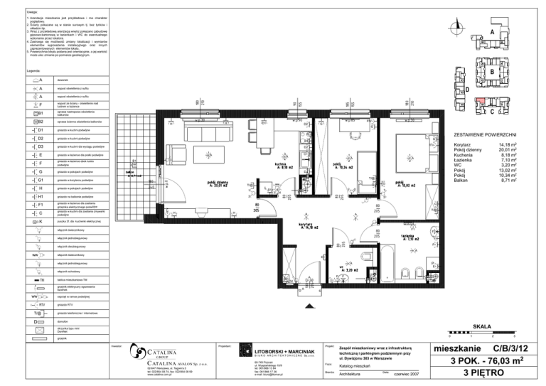
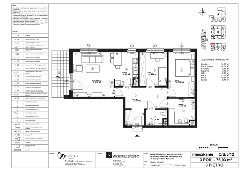
C/B/3/12 3 PIĘTRO mieszkanie 3 POK.

Transkrypt

C/B/3/12 3 PIĘTRO mieszkanie 3 POK.
Uwaga:
1. AranŜacja mieszkania jest przykładowa i ma charakter
poglądowy.
2. Ściany pokazane są w stanie surowym tj. bez tynków i
okładzin itp.
3. Wraz z przykładową aranŜacją wnętrz pokazano zabudowę
gipsowo-kartonową w łazienkach i WC do ewentualnego
wykonania przez lokatora.
4. Zastrzega się moŜliwość zmiany lokalizacji i wymiarów
elementów wyposaŜenia instalacyjnego oraz innych
zaprezentowanych elementów lokalu.
5. Powierzchnia lokalu podana jest orientacyjnie, a jej wartość
moŜe ulec zmianie po pomiarze geodezyjnym.
A
Legenda:
wypust oświetlenia z sufitu
F
wypust ze ściany - oświetlenie nad
lustrem w łazience
B1
D
180
210
wypust oświetlenia z sufitu
A
185
155
A
90
155
1
dzwonek
180
210
2
B
A
w.p.30
w.p.90
w.p.85
w.p.30
C
oprawa nastropowa oświetlenia
balkonów
B2
oprawa ścienna oświetlenia balkonów
D1
gniazdo w kuchni podwµjne
H
H
D1
G
D2
K
E
gniazdo w łazience dla pralki podwµjne
F
gniazdo w łazience obok lustra
podwµjne
G
gniazdo w pokojach podwµjne
G1
gniazdo w korytarzu podwµjne
H
gniazdo w pokojach podwµjne
H1
gniazdo na balkonie podwµjne
F1
gniazdo w łazience dla zasilania
grzejnika elektrycznego podwµjne
C
3K
1
2
3
B1
3
A
4
C
A
3
1
A
A
2
pokój
A: 10,34 m2
D2
EDONRQ
$P
180
240
7#
KS
pokój dzienny
A: 20,01 m2
ww
7#
L D1
1
2
gniazdo w kuchni dla zasilania zmywarki
podwµjne
1
2
kuchnia
A: 8,18 m2
H
H
3
G
WO
1
WK
4
80
205
2
A
korytarz
A: 14,18 m2
włącznik świecznikowy
pokój
A: 13,02 m2
1
2
A
puszka 3f. dla kuchenki elektrycznej
G
G
80
205
7#
F1
80
205
F
łazienka
A: 7,10 m2
80
205
włącznik jednobiegunowy
włącznik dwubiegunowy
14,18 m2
20,01 m2
8,18 m2
7,10 m2
3,20 m2
13,02 m2
10,34 m2
8,71 m2
Korytarz
Pokój dzienny
Kuchenia
Łazienka
WC
Pokój
Pokój
Balkon
RTV
D2
80
205
gniazdo w kuchni dla wyciągu podwµjne
ZESTAWIENIE POWIERZCHNI
G
80
205
D3
3
G
3
D3
w.p.0
gniazdo w kuchni podwµjne
RTV
D2
RTV
F
A
ww
włącznik świecznikowy
D
F
A
F
EI 30
70
D
A
KS
WŁ
WŁ
KS
100
205
G1
tablica mieszkaniowa TM
grzejnik elektryczny ogrzewania
łazienek
ww
E
wc
A: 3,20 m2
włącznik schodowy
70
P
A
włącznik jednobiegunowy
S
osprzęt w ramce podwójnej
RTV
gniazdo RTV
7#
gniazdo telefoniczne / internetowe
'
domofon
SKALA
skrzynka typu mini
DomNet
0
grzejnik
Inwestor:
Projektant:
Projekt:
LITOBORSKI + MARCINIAK
B I U R O A R C H I T E K T O N I C Z N E Sp. z o.o.
C ATALINA AVALON Sp. z o.o.
02-647 Warszawa, ul. Tagore'a 3
tel: 022/854 08 74, fax: 022/854 08 59
www.catalina.com.pl
60-749 Poznań
ul. Wyspiańskiego 10/9
tel: 061/866 13 84
fax: 061/866 17 36
e-mail: [email protected]
Zespół mieszkaniowy wraz z infrastrukturą
techniczną i parkingiem podziemnym przy
ul. Dywizjonu 303 w Warszawie
Faza:
Katalog mieszkań
BranŜa:
Architektura
Data:
czerwiec 2007
1
2
3
mieszkanie C/B/3/12
3 POK. - 76,03 m2
3 PIĘTRO