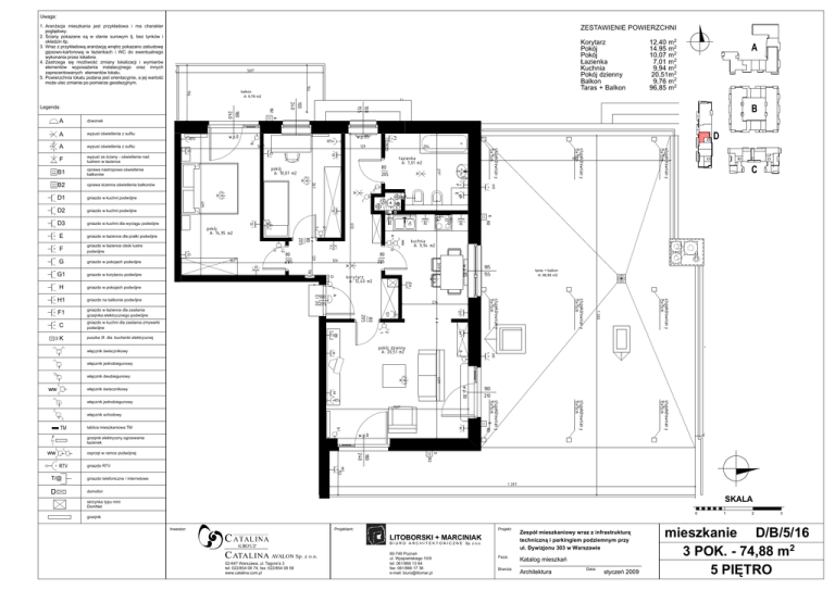
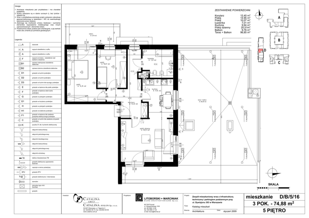
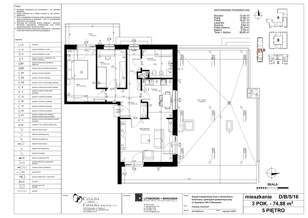
5 PIĘTRO mieszkanie D/B/5/16 3 POK.

Transkrypt

5 PIĘTRO mieszkanie D/B/5/16 3 POK.
Uwaga:
1. Aranżacja mieszkania jest przykładowa i ma charakter
poglądowy.
2. Ściany pokazane są w stanie surowym tj. bez tynków i
okładzin itp.
3. Wraz z przykładową aranżacją wnętrz pokazano zabudowę
gipsowo-kartonową w łazienkach i WC do ewentualnego
wykonania przez lokatora.
4. Zastrzega się możliwość zmiany lokalizacji i wymiarów
elementów wyposażenia instalacyjnego oraz innych
zaprezentowanych elementów lokalu.
5. Powierzchnia lokalu podana jest orientacyjnie, a jej wartość
może ulec zmianie po pomiarze geodezyjnym.
ZESTAWIENIE POWIERZCHNI
509 5
6
8
D3
gniazdo w kuchni dla wyciągu podwójne
E
gniazdo w łazience dla pralki podwójne
F
gniazdo w łazience obok lustra
podwójne
G
gniazdo w pokojach podw ójne
G1
gniazdo w korytarzu podwójne
H
gniazdo w pokojach podw ójne
H1
gniazdo na balkonie podw ójne
F1
gniazdo w łazience dla zasilania
grzejnika elektrycznego podwójne
P
WŁ
1
WŁ
KS
WO
WK
G
D2
D3
4
ww
80
205
kuchnia
A: 9,94 m2
3
G
2
1
120
80
205
326
TM
4
słupekdrewnian y
15x15cm
słupekdrewnian y
15x15cm
B2
słupekdrewnian y
15x15cm
6
H
B2
gniazdo RTV
155
H1
RTV
180
240
osprzęt w ramce podwójnej
180
210
5
ww
balustrada murowana gr. 18 cm
H1
w.p.30
w.p.0
grzejnik elektryczny ogrzewania
łazienek
słupekdrewnian y
15x15cm
6
5
tablica mieszkaniowa TM
1 265
H
1
5015
włącznik schodowy
TM
słupekdrewnian y
15x15cm
słupekdrewnian y
15x15cm
D1
409
A
RTV
włącznik jednobiegunowy
taras + balkon
A: 96,85 m2
A
2
H
tel
.alarmowego windy
D1
2
1
H
pokój dzienny
A: 20,51 m2
h=2,8m - d³. 2m
włącznik dwubiegunowy
G1
80
205
1
włącznik jednobiegunowy
185
155
A
234
T/@
puszka 3f. dla kuchenki elektrycznej
3
korytarz
A: 12,40 m2
D
EI 30
gniazdo w kuchni dla zasilania zmywarki
podwójne
w.p.85
A
G
3695
80
205
100
205
włącznik świecznikowy
6 B2
3
K
D2
C
D2
653
2
1
G
G
3675
włącznik świecznikowy
ww
C
E
A
A
3K
667
H1
F
367
1
2
499
pokój
A: 14,95 m2
G
C
słupekdrewnian y
15x15cm
gniazdo w kuchni podw ójne
słupekdrewnian y
15x15cm
D2
F
gniazdo w kuchni podw ójne
2715
D1
80
205
pokój
A: 10,07 m2
A
oprawa ścienna oświetlenia balkonów
łazienka
A: 7,01 m2
A
B2
294
2
oprawa nastropowa oświetlenia
balkonów
D
129
G
B1
w.p.85
RTV
słupekdrewnian y
15x15cm
wypust ze ściany - oświetlenie nad
lustrem w łazience
w.p.0
5645
F1
F
w.p.0
RTV
100
155
wypust oświetlenia z sufitu
A
B
G
A
12,40 m2
14.95 m2
10,07 m2
7,01 m2
9,94 m2
20,51m2
9,76 m2
96,85 m2
8
wypust oświetlenia z sufitu
100
240
B2
A
G
1
180
240
2
dzwonek
164
196
balkon
A: 9,76 m2
Legenda:
A
Korytarz
Pokój
Pokój
Łazienka
Kuchnia
Pokój dzienny
Balkon
Taras + Balkon
T/@
gniazdo telefoniczne / internetowe
D
domofon
1 287
SKALA
skrzynka typu mini
DomNet
0
grzejnik
Inwestor:
Projektant:
Projekt:
LITOBORSKI + MARCINIAK
B I U R O A R C H I T E K T O N I C Z N E Sp. z o.o.
C ATALINA AVALON Sp. z o.o.
02-647 Warszawa, ul. Tagore'a 3
tel: 022/854 08 74, fax: 022/854 08 59
www.catalina.com.pl
60-749 Poznań
ul. Wyspiańskiego 10/9
tel: 061/866 13 84
fax: 061/866 17 36
e-mail: [email protected]
Zespół mieszkaniowy wraz z infrastrukturą
techniczną i parkingiem podziemnym przy
ul. Dywizjonu 303 w Warszawie
Faza:
Katalog mieszkań
Branża:
Architektura
Data:
styczeń 2009
1
2
3
mieszkanie D/B/5/16
3 POK. - 74,88 m2
5 PIĘTRO