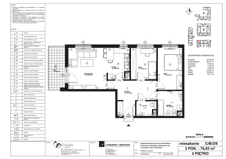
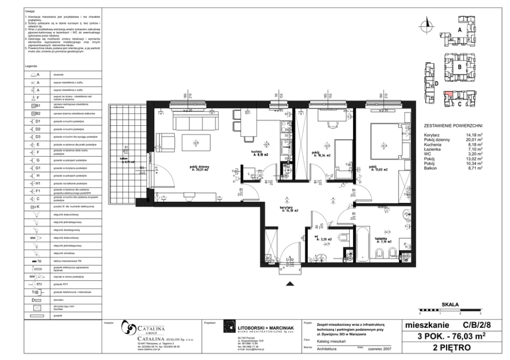
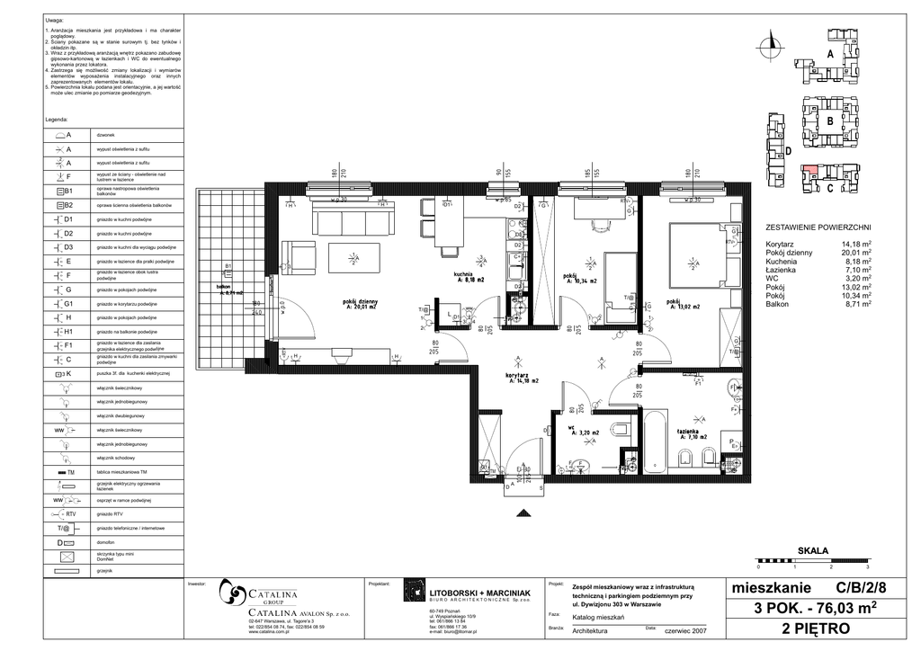
C/B/2/8 2 PIĘTRO mieszkanie 3 POK.

Transkrypt

C/B/2/8 2 PIĘTRO mieszkanie 3 POK.
Uwaga:
1. AranŜacja mieszkania jest przykładowa i ma charakter
poglądowy.
2. Ściany pokazane są w stanie surowym tj. bez tynków i
okładzin itp.
3. Wraz z przykładową aranŜacją wnętrz pokazano zabudowę
gipsowo-kartonową w łazienkach i WC do ewentualnego
wykonania przez lokatora.
4. Zastrzega się moŜliwość zmiany lokalizacji i wymiarów
elementów wyposaŜenia instalacyjnego oraz innych
zaprezentowanych elementów lokalu.
5. Powierzchnia lokalu podana jest orientacyjnie, a jej wartość
moŜe ulec zmianie po pomiarze geodezyjnym.
A
Legenda:
F
wypust ze ściany - oświetlenie nad
lustrem w łazience
B2
oprawa ścienna oświetlenia balkonów
D1
gniazdo w kuchni podwµjne
D2
gniazdo w kuchni podwµjne
D3
w.p.30
w.p.85
w.p.85
C
oprawa nastropowa oświetlenia
balkonów
H
H
F
G
gniazdo w pokojach podwµjne
gniazdo w pokojach podwµjne
gniazdo na balkonie podwµjne
F1
gniazdo w łazience dla zasilania
grzejnika elektrycznego podwµjne
C
2
3
3
A
4
C
A
2
7#
KS
pokój dzienny
A: 20,01 m2
ww
7#
L D1
1
3
H
G
WO
1
WK
4
2
H
1
A
80
205
pokój
A: 13,02 m2
2
A
korytarz
A: 14,18 m2
G
80
205
7#
F1
80
205
włącznik świecznikowy
F
włącznik dwubiegunowy
A
włącznik świecznikowy
wc
A: 3,20 m2
D
włącznik schodowy
F
A
F
EI 30
70
D
A
P
E
KS
WŁ
WŁ
KS
100
205
G1
tablica mieszkaniowa TM
grzejnik elektryczny ogrzewania
łazienek
ww
łazienka
A: 7,10 m2
A
włącznik jednobiegunowy
70
F
80
205
włącznik jednobiegunowy
ww
A
1
2
A
puszka 3f. dla kuchenki elektrycznej
G
14,18 m2
20,01 m2
8,18 m2
7,10 m2
3,20 m2
13,02 m2
10,34 m2
8,71 m2
Korytarz
Pokój dzienny
Kuchenia
Łazienka
WC
Pokój
Pokój
Balkon
pokój
A: 10,34 m2
D2
180
240
gniazdo w kuchni dla zasilania zmywarki
podwµjne
1
2
EDONRQ
$P
ZESTAWIENIE POWIERZCHNI
G
RTV
kuchnia
A: 8,18 m2
RTV
H
3K
B1
3
gniazdo w korytarzu podwµjne
H1
3
D2
w.p.0
gniazdo w łazience dla pralki podwµjne
gniazdo w łazience obok lustra
podwµjne
G
D3
gniazdo w kuchni dla wyciągu podwµjne
E
G
D2
K
1
G1
D1
w.p.30
RTV
80
205
B1
D
180
210
wypust oświetlenia z sufitu
185
155
wypust oświetlenia z sufitu
A
90
155
A
80
205
1
dzwonek
180
210
2
B
A
S
osprzęt w ramce podwójnej
RTV
gniazdo RTV
7#
gniazdo telefoniczne / internetowe
'
domofon
SKALA
skrzynka typu mini
DomNet
0
grzejnik
Inwestor:
Projektant:
Projekt:
LITOBORSKI + MARCINIAK
B I U R O A R C H I T E K T O N I C Z N E Sp. z o.o.
C ATALINA AVALON Sp. z o.o.
02-647 Warszawa, ul. Tagore'a 3
tel: 022/854 08 74, fax: 022/854 08 59
www.catalina.com.pl
60-749 Poznań
ul. Wyspiańskiego 10/9
tel: 061/866 13 84
fax: 061/866 17 36
e-mail: [email protected]
Zespół mieszkaniowy wraz z infrastrukturą
techniczną i parkingiem podziemnym przy
ul. Dywizjonu 303 w Warszawie
Faza:
Katalog mieszkań
BranŜa:
Architektura
Data:
czerwiec 2007
1
2
3
mieszkanie
C/B/2/8
3 POK. - 76,03 m2
2 PIĘTRO