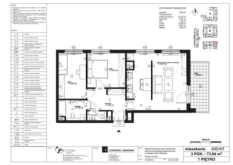
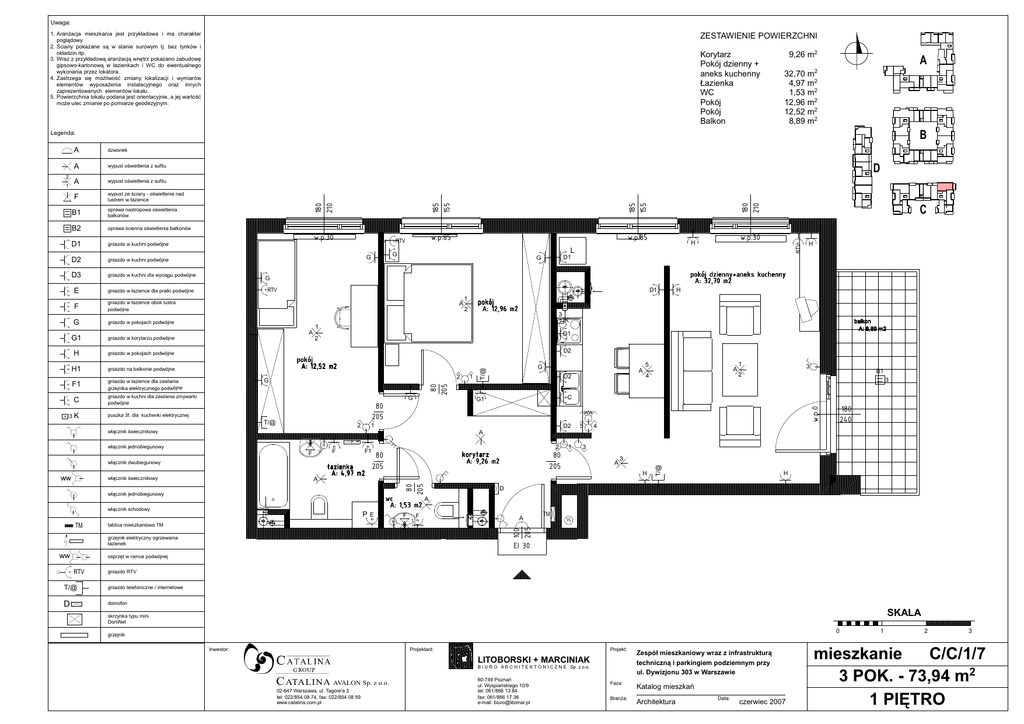
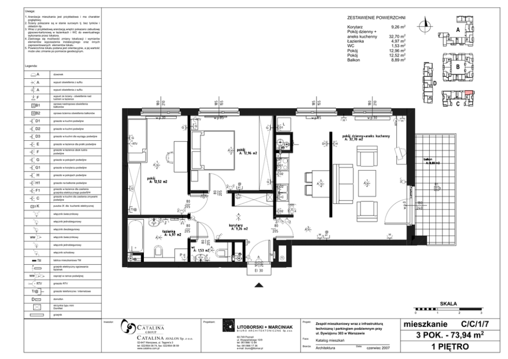
C/C/1/7 1 PIĘTRO mieszkanie 3 POK.

Transkrypt

C/C/1/7 1 PIĘTRO mieszkanie 3 POK.
Uwaga:
1. AranŜacja mieszkania jest przykładowa i ma charakter
poglądowy.
2. Ściany pokazane są w stanie surowym tj. bez tynków i
okładzin itp.
3. Wraz z przykładową aranŜacją wnętrz pokazano zabudowę
gipsowo-kartonową w łazienkach i WC do ewentualnego
wykonania przez lokatora.
4. Zastrzega się moŜliwość zmiany lokalizacji i wymiarów
elementów wyposaŜenia instalacyjnego oraz innych
zaprezentowanych elementów lokalu.
5. Powierzchnia lokalu podana jest orientacyjnie, a jej wartość
moŜe ulec zmianie po pomiarze geodezyjnym.
ZESTAWIENIE POWIERZCHNI
Korytarz
Pokój dzienny +
aneks kuchenny
Łazienka
WC
Pokój
Pokój
Balkon
9,26 m2
A
32,70 m2
4,97 m2
1,53 m2
12,96 m2
12,52 m2
8,89 m2
Legenda:
oprawa ścienna oświetlenia balkonów
gniazdo w kuchni podwµjne
D2
gniazdo w kuchni podwµjne
D3
gniazdo w kuchni dla wyciągu podwµjne
E
gniazdo w łazience dla pralki podwµjne
F
gniazdo w łazience obok lustra
podwµjne
G
gniazdo w pokojach podwµjne
G1
gniazdo w korytarzu podwµjne
H
gniazdo w pokojach podwµjne
H1
gniazdo na balkonie podwµjne
F1
gniazdo w łazience dla zasilania
grzejnika elektrycznego podwµjne
C
3K
w.p.30
G
H
pokój dzienny+aneks kuchenny
A: 32,70 m2
RTV
D1
WK
A
A
1
2
H
KS
pokój
A: 12,96 m2
3
1
K
EDONRQ
$P
D1
2
D2
pokój
A: 12,52 m2
2
G
gniazdo w kuchni dla zasilania zmywarki
podwµjne
G
puszka 3f. dla kuchenki elektrycznej
1
G
7#
2
F
F
włącznik świecznikowy
D2
2
korytarz
A: 9,26 m2
80
205
80
205
A
łazienka
A: 4,97 m2
włącznik jednobiegunowy
PE
WŁ
grzejnik elektryczny ogrzewania
łazienek
F
F
S
1
3
E
B1
2
3
180
240
4
3
A
3
H
H
D
KS
A
WŁ
KS
1
5
80
205
A
wc
A: 1,53 m2
włącznik schodowy
A
4
ww
1
F1
5
C
G1
A
tablica mieszkaniowa TM
A
D2
80
205
włącznik dwubiegunowy
ww
w.p.30
H
D1
G
WO
włącznik jednobiegunowy
70
w.p.85
L
G
włącznik świecznikowy
ww
w.p.85
RTV
G
w.p.0
B2
D1
C
RTV
oprawa nastropowa oświetlenia
balkonów
180
210
B1
7#
wypust ze ściany - oświetlenie nad
lustrem w łazience
185
155
F
D
D
70
RS
100
205
wypust oświetlenia z sufitu
7#
wypust oświetlenia z sufitu
A
185
155
A
80
205
1
dzwonek
180
210
2
B
A
EI 30
osprzęt w ramce podwójnej
RTV
gniazdo RTV
7#
gniazdo telefoniczne / internetowe
'
domofon
SKALA
skrzynka typu mini
DomNet
0
grzejnik
Inwestor:
Projektant:
Projekt:
LITOBORSKI + MARCINIAK
B I U R O A R C H I T E K T O N I C Z N E Sp. z o.o.
C ATALINA AVALON Sp. z o.o.
02-647 Warszawa, ul. Tagore'a 3
tel: 022/854 08 74, fax: 022/854 08 59
www.catalina.com.pl
60-749 Poznań
ul. Wyspiańskiego 10/9
tel: 061/866 13 84
fax: 061/866 17 36
e-mail: [email protected]
Zespół mieszkaniowy wraz z infrastrukturą
techniczną i parkingiem podziemnym przy
ul. Dywizjonu 303 w Warszawie
Faza:
Katalog mieszkań
BranŜa:
Architektura
Data:
czerwiec 2007
1
2
3
mieszkanie
C/C/1/7
3 POK. - 73,94 m2
1 PIĘTRO