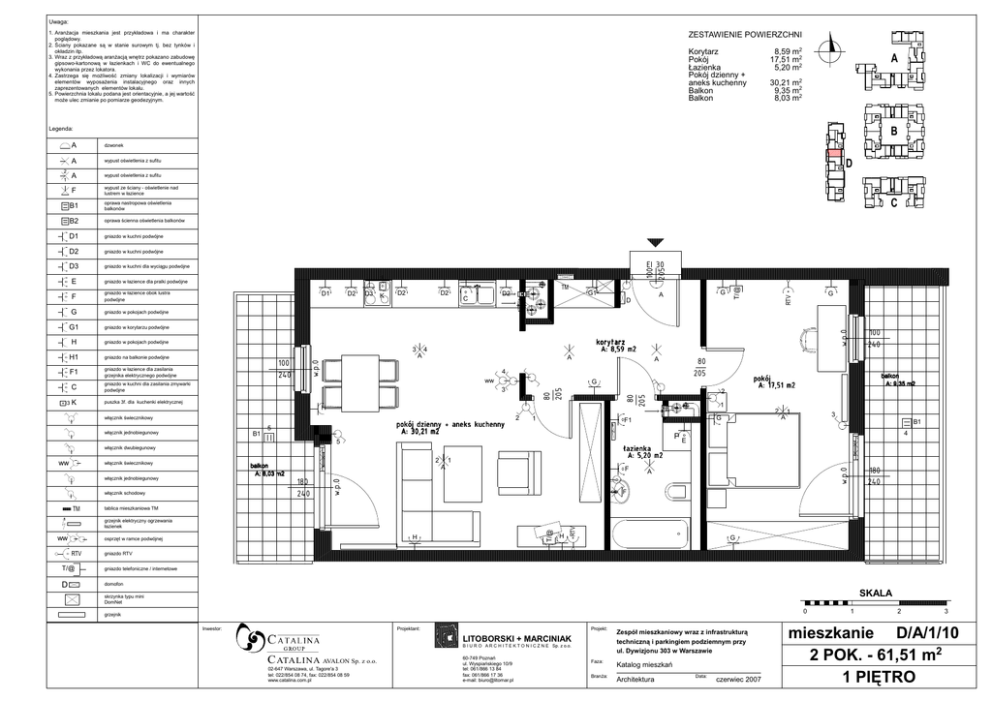
1 PIĘTRO mieszkanie D/A/1/10 2 POK.

Transkrypt

1 PIĘTRO mieszkanie D/A/1/10 2 POK.
Uwaga:
1. AranŜacja mieszkania jest przykładowa i ma charakter
poglądowy.
2. Ściany pokazane są w stanie surowym tj. bez tynków i
okładzin itp.
3. Wraz z przykładową aranŜacją wnętrz pokazano zabudowę
gipsowo-kartonową w łazienkach i WC do ewentualnego
wykonania przez lokatora.
4. Zastrzega się moŜliwość zmiany lokalizacji i wymiarów
elementów wyposaŜenia instalacyjnego oraz innych
zaprezentowanych elementów lokalu.
5. Powierzchnia lokalu podana jest orientacyjnie, a jej wartość
moŜe ulec zmianie po pomiarze geodezyjnym.
ZESTAWIENIE POWIERZCHNI
8,59 m2
17,51 m2
5,20 m2
Korytarz
Pokój
Łazienka
Pokój dzienny +
aneks kuchenny
Balkon
Balkon
A
30,21 m2
9,35 m2
8,03 m2
Legenda:
oprawa nastropowa oświetlenia
balkonów
B2
oprawa ścienna oświetlenia balkonów
D1
gniazdo w kuchni podwµjne
D2
gniazdo w kuchni podwµjne
D3
gniazdo w kuchni dla wyciągu podwµjne
E
gniazdo w łazience dla pralki podwµjne
F
gniazdo w łazience obok lustra
podwµjne
G
gniazdo w pokojach podwµjne
G1
gniazdo w korytarzu podwµjne
H
gniazdo w pokojach podwµjne
gniazdo na balkonie podwµjne
F1
gniazdo w łazience dla zasilania
grzejnika elektrycznego podwµjne
D2
D3
K
D2
D2
D2
C
100
240
A
A
puszka 3f. dla kuchenki elektrycznej
A
ww
pokój dzienny + aneks kuchenny
A: 30,21 m2
5
2
1
włącznik schodowy
180
240
A
WŁ
1
KS
EDONRQ
$P
2
G
A
1
3
B1
4
PE
łazienka
A: 5,20 m2
1
F
w.p.0
EDONRQ
$P
włącznik jednobiegunowy
2
F1
5
2
100
240
pokój
A: 17,51 m2
G
H
B1
80
205
4
3
włącznik świecznikowy
A
180
240
F
tablica mieszkaniowa TM
7#
grzejnik elektryczny ogrzewania
łazienek
H
osprzęt w ramce podwójnej
RTV
G
korytarz
A: 8,59 m2
4
gniazdo w kuchni dla zasilania zmywarki
podwµjne
włącznik dwubiegunowy
ww
G
A
D
WK
włącznik jednobiegunowy
70
G1
WO
WŁ
włącznik świecznikowy
ww
70
KS
D1
H
RTV
3K
EI 30
3
3
H1
C
C
w.p.0
B1
w.p.0
wypust ze ściany - oświetlenie nad
lustrem w łazience
RTV
F
D
7#
wypust oświetlenia z sufitu
100
205
wypust oświetlenia z sufitu
A
80
205
A
80
205
1
dzwonek
w.p.0
2
B
A
G
gniazdo RTV
7#
gniazdo telefoniczne / internetowe
'
domofon
SKALA
skrzynka typu mini
DomNet
0
grzejnik
Inwestor:
Projektant:
Projekt:
LITOBORSKI + MARCINIAK
B I U R O A R C H I T E K T O N I C Z N E Sp. z o.o.
C ATALINA AVALON Sp. z o.o.
02-647 Warszawa, ul. Tagore'a 3
tel: 022/854 08 74, fax: 022/854 08 59
www.catalina.com.pl
60-749 Poznań
ul. Wyspiańskiego 10/9
tel: 061/866 13 84
fax: 061/866 17 36
e-mail: [email protected]
Zespół mieszkaniowy wraz z infrastrukturą
techniczną i parkingiem podziemnym przy
ul. Dywizjonu 303 w Warszawie
Faza:
Katalog mieszkań
BranŜa:
Architektura
Data:
czerwiec 2007
1
2
3
mieszkanie D/A/1/10
2 POK. - 61,51 m2
1 PIĘTRO