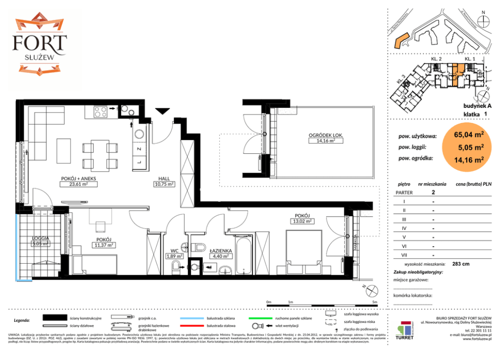
65,04 m2 5,05 m2 14,16 m2

Transkrypt

65,04 m2 5,05 m2 14,16 m2
ul.
N
ul.
Do
ka
lin
ws
aS
no
łu
sy
że
ur
wi
wo
ec
ka
No
KL. 1
KL
.3
KL. 2
N
budynek A
klatka 1
pow. użytkowa:
pow. loggii:
Z
L
OGRÓDEK LOK.
14,16 m2
65,04 m2
5,05 m2
14,16 m2
Z
L
pow. ogródka: POKÓJ + ANEKS
23,61 m2
HALL
10,75 m2
LOGGIA
5,05 m2
MARKIZA
POKÓJ
13,02 m2
POKÓJ
11,37 m2
WC
1,89 m2
ŁAZIENKA
4,40 m2
piętro
nr mieszkania
PARTER
2
I
-
II
-
III
-
IV
-
V
-
VI
-
VII
-
wysokość mieszkania:
cena (bru o) PLN
283 cm
P
Zakup nieobligatoryjny:
miejsce garażowe: N
......................................
komórka lokatorska: 0m
Legenda:
1m
ściany konstrukcyjne
grzejnik c.o.
balustrada szklana
ruchome panele szklane
ściany działowe
grzejniki łazienkowe
drabinkowe
balustrada stalowa
wlot wentylacji
5m
szafa loggiowa wysoka
szafa loggiowa niska
złączka do podlewania
UWAGA: Lokalizację przyborów sanitarnych podano zgodnie z projektem budowlanym. Powierzchnia użytkowa lokalu jest określona na podstawie rozporządzenia Ministra Transportu, Budownictwa i Gospodarki Morskiej z dn. 25.04.2012, w sprawie szczegółowego zakresu i formy projektu
budowlanego (DZ. U. z 2012r. POZ. 462), zgodnie z zasadami zawartymi w polskiej normie PN-ISO 9836: 1997, tj.: powierzchnia użytkowa lokalu jest obliczana w metrach kwadratowych z dokładnością do dwóch miejsc po przecinku, dla wymiarów lokalu w stanie wykończonym, na poziomie
podłogi, nie licząc listew przypodłogowych, progów itp. Karta katalogowa pokazuje przykładową aranżację. Powierzchnie podano w świetle wykończonych ścian. Karta katalogowa ma jedynie charakter informacyjny, podane powierzchnie mogą ulec drobnym korektom na etapie wykonawczym.
......................................
BIURO SPRZEDAŻY FORT SŁUŻEW
ul. Nowoursynowska, róg Doliny Służewieckiej
Warszawa
tel. 22 301 11 11
e-mail: [email protected]
www.fortsluzew.pl