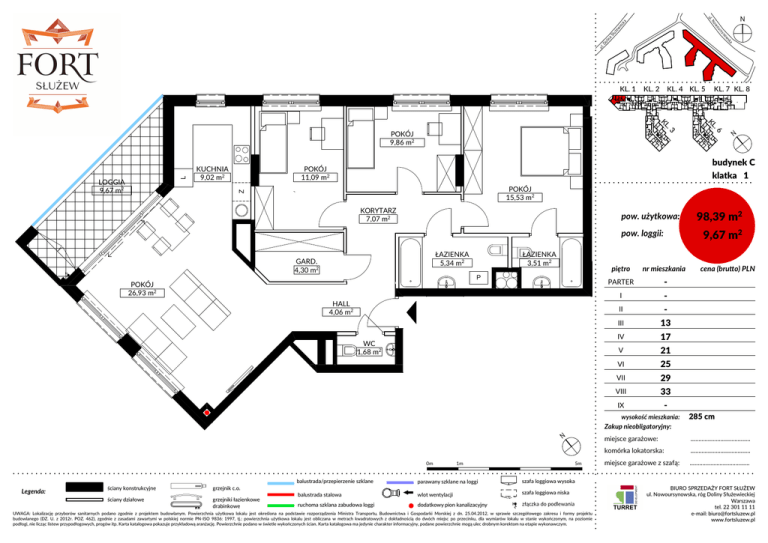
98,39 m2 9,67 m2

Transkrypt

98,39 m2 9,67 m2
ul.
N
ul.
Do
ka
lin
ws
aS
no
łu
sy
że
ur
wi
wo
ec
ka
No
KL. 1
L
Z
POKÓJ
15,53 m2
pow. użytkowa:
pow. loggii:
ŁAZIENKA
5,34 m2
GARD.
4,30 m2
ŁAZIENKA
3,51 m2
P
POKÓJ
26,93 m2
HALL
4,06 m2
WC
1,68 m2
Z
nr mieszkania
PARTER
-
I
-
II
-
III
13
IV
17
V
21
VI
25
VII
29
VIII
33
IX
-
L
0m
ściany działowe
grzejniki łazienkowe
drabinkowe
98,39 m2
9,67 m2
cena (bru o) PLN
285 cm
Zakup nieobligatoryjny:
N
grzejnik c.o.
piętro
wysokość mieszkania:
ściany konstrukcyjne
N
budynek C
klatka 1
POKÓJ
11,09 m2
KORYTARZ
7,07 m2
Legenda:
KL. 7 KL. 8
.6
KL
LOGGIA
9,67 m2
KL. 4 KL. 5
.3
KL
POKÓJ
9,86 m2
KUCHNIA
9,02 m2
KL. 2
0m
1m
miejsce garażowe: 5m
5m
1m
balustrada/przepierzenie szklane
parawany szklane na loggi
szafa loggiowa wysoka
balustrada stalowa
wlot wentylacji
szafa loggiowa niska
ruchoma szklana zabudowa loggi
dodatkowy pion kanalizacyjny
złączka do podlewania
UWAGA: Lokalizację przyborów sanitarnych podano zgodnie z projektem budowlanym. Powierzchnia użytkowa lokalu jest określona na podstawie rozporządzenia Ministra Transportu, Budownictwa i Gospodarki Morskiej z dn. 25.04.2012, w sprawie szczegółowego zakresu i formy projektu
budowlanego (DZ. U. z 2012r. POZ. 462), zgodnie z zasadami zawartymi w polskiej normie PN-ISO 9836: 1997, tj.: powierzchnia użytkowa lokalu jest obliczana w metrach kwadratowych z dokładnością do dwóch miejsc po przecinku, dla wymiarów lokalu w stanie wykończonym, na poziomie
podłogi, nie licząc listew przypodłogowych, progów itp. Karta katalogowa pokazuje przykładową aranżację. Powierzchnie podano w świetle wykończonych ścian. Karta katalogowa ma jedynie charakter informacyjny, podane powierzchnie mogą ulec drobnym korektom na etapie wykonawczym.
......................................
komórka lokatorska: ......................................
miejsce garażowe z szafą:
......................................
BIURO SPRZEDAŻY FORT SŁUŻEW
ul. Nowoursynowska, róg Doliny Służewieckiej
Warszawa
tel. 22 301 11 11
e-mail: [email protected]
www.fortsluzew.pl