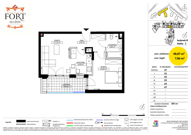
48,87 m2 7,86 m2

Transkrypt

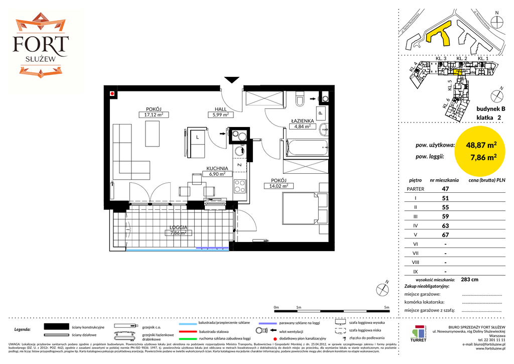
48,87 m2 7,86 m2
ul.
N
ul.
Do
ka
lin
ws
aS
no
łu
sy
że
ur
wi
wo
ec
ka
No
KL. 2
KL. 1
KL. 5
KL
.4
KL. 3
KL
.6
HALL
5,99 m2
budynek B
klatka 2
P
POKÓJ
17,12 m2
N
ŁAZIENKA
4,84 m2
L
pow. użytkowa:
KUCHNIA
6,90 m2
POKÓJ
14,02 m2
LOGGIA
7,86 m2
N
piętro
nr mieszkania
PARTER
47
I
51
II
55
III
59
IV
63
V
67
VI
-
VII
-
VIII
-
IX
-
wysokość mieszkania:
0m
ściany konstrukcyjne
grzejnik c.o.
ściany działowe
grzejniki łazienkowe
drabinkowe
7,86 m2
1m
5m
balustrada/przepierzenie szklane
parawany szklane na loggi
szafa loggiowa wysoka
balustrada stalowa
wlot wentylacji
szafa loggiowa niska
ruchoma szklana zabudowa loggi
dodatkowy pion kanalizacyjny
złączka do podlewania
UWAGA: Lokalizację przyborów sanitarnych podano zgodnie z projektem budowlanym. Powierzchnia użytkowa lokalu jest określona na podstawie rozporządzenia Ministra Transportu, Budownictwa i Gospodarki Morskiej z dn. 25.04.2012, w sprawie szczegółowego zakresu i formy projektu
budowlanego (DZ. U. z 2012r. POZ. 462), zgodnie z zasadami zawartymi w polskiej normie PN-ISO 9836: 1997, tj.: powierzchnia użytkowa lokalu jest obliczana w metrach kwadratowych z dokładnością do dwóch miejsc po przecinku, dla wymiarów lokalu w stanie wykończonym, na poziomie
podłogi, nie licząc listew przypodłogowych, progów itp. Karta katalogowa pokazuje przykładową aranżację. Powierzchnie podano w świetle wykończonych ścian. Karta katalogowa ma jedynie charakter informacyjny, podane powierzchnie mogą ulec drobnym korektom na etapie wykonawczym.
cena (bru o) PLN
283 cm
Zakup nieobligatoryjny:
miejsce garażowe: Legenda:
48,87 m2
Z
pow. loggii:
......................................
komórka lokatorska: ......................................
miejsce garażowe z szafą:
......................................
BIURO SPRZEDAŻY FORT SŁUŻEW
ul. Nowoursynowska, róg Doliny Służewieckiej
Warszawa
tel. 22 301 11 11
e-mail: [email protected]
www.fortsluzew.pl