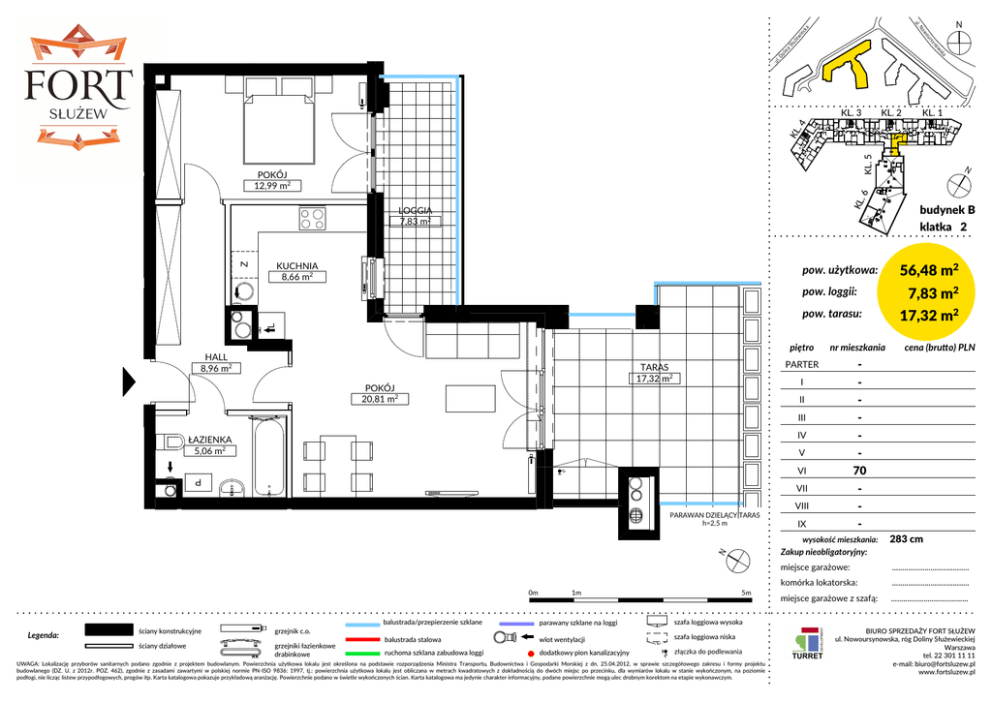
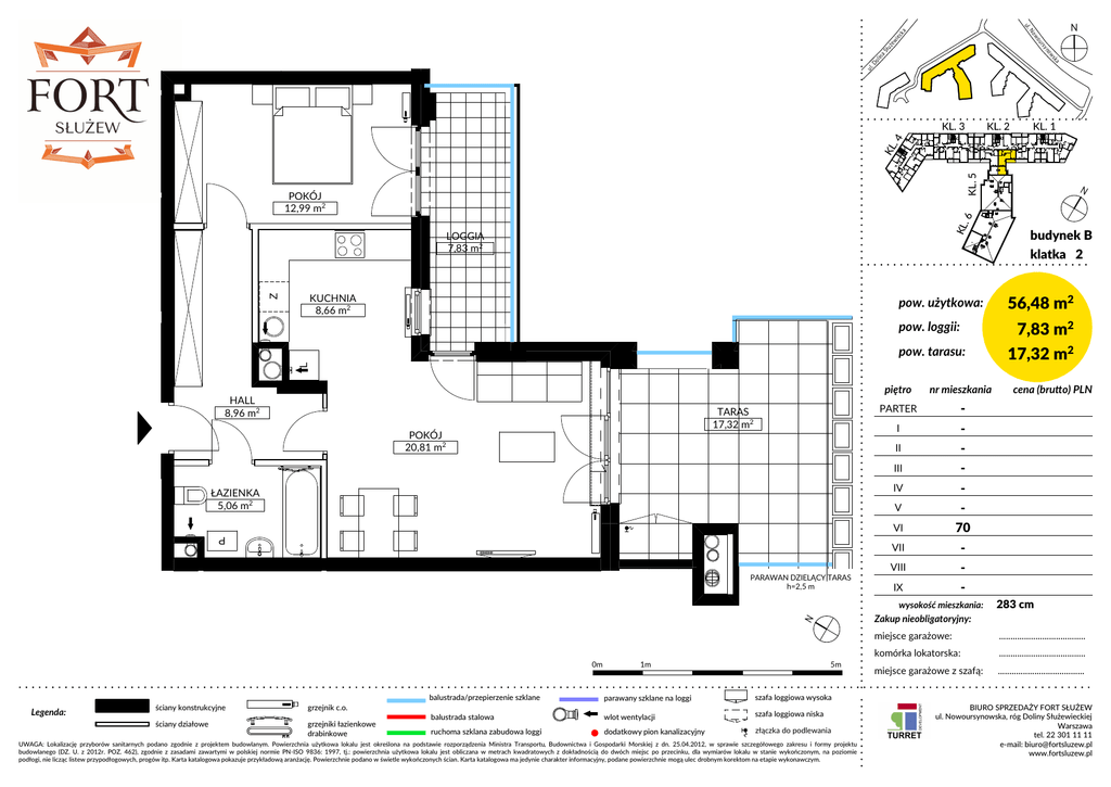
56,48 m2 7,83 m2 17,32 m2

Transkrypt

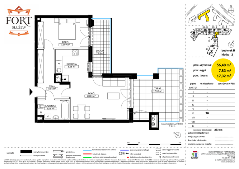
56,48 m2 7,83 m2 17,32 m2
ul.
N
ul.
Do
ka
lin
ws
aS
no
łu
sy
że
ur
wi
wo
ec
ka
No
KL. 2
KL. 1
KL. 5
KL
.4
KL. 3
LOGGIA
7,83 m2
KUCHNIA
8,66 m2
Z
N
KL
.6
POKÓJ
12,99 m2
pow. użytkowa:
pow. loggii:
budynek B
klatka 2
L
pow. tarasu: HALL
8,96 m2
TARAS
17,32 m2
POKÓJ
20,81 m2
ŁAZIENKA
5,06 m2
P
PARAWAN DZIELĄCY TARAS
h=2,5 m
piętro
nr mieszkania
PARTER
-
I
-
II
-
III
-
IV
-
V
-
VI
70
VII
-
VIII
-
IX
-
P
wysokość mieszkania:
N
Legenda:
ściany konstrukcyjne
grzejnik c.o.
ściany działowe
grzejniki łazienkowe
drabinkowe
1m
7,83 m2
17,32 m2
cena (bru o) PLN
283 cm
Zakup nieobligatoryjny:
miejsce garażowe: 0m
56,48 m2
5m
balustrada/przepierzenie szklane
parawany szklane na loggi
szafa loggiowa wysoka
balustrada stalowa
wlot wentylacji
szafa loggiowa niska
ruchoma szklana zabudowa loggi
dodatkowy pion kanalizacyjny
złączka do podlewania
UWAGA: Lokalizację przyborów sanitarnych podano zgodnie z projektem budowlanym. Powierzchnia użytkowa lokalu jest określona na podstawie rozporządzenia Ministra Transportu, Budownictwa i Gospodarki Morskiej z dn. 25.04.2012, w sprawie szczegółowego zakresu i formy projektu
budowlanego (DZ. U. z 2012r. POZ. 462), zgodnie z zasadami zawartymi w polskiej normie PN-ISO 9836: 1997, tj.: powierzchnia użytkowa lokalu jest obliczana w metrach kwadratowych z dokładnością do dwóch miejsc po przecinku, dla wymiarów lokalu w stanie wykończonym, na poziomie
podłogi, nie licząc listew przypodłogowych, progów itp. Karta katalogowa pokazuje przykładową aranżację. Powierzchnie podano w świetle wykończonych ścian. Karta katalogowa ma jedynie charakter informacyjny, podane powierzchnie mogą ulec drobnym korektom na etapie wykonawczym.
......................................
komórka lokatorska: ......................................
miejsce garażowe z szafą:
......................................
BIURO SPRZEDAŻY FORT SŁUŻEW
ul. Nowoursynowska, róg Doliny Służewieckiej
Warszawa
tel. 22 301 11 11
e-mail: [email protected]
www.fortsluzew.pl