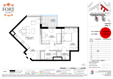
70,16 m2 6,37 m2

Transkrypt

70,16 m2 6,37 m2
ul.
N
ul.
Do
ka
lin
ws
aS
no
łu
sy
że
ur
wi
wo
ec
ka
No
KL. 1
KL. 2
KL. 4 KL. 5
.6
KL
.3
KL
LOGGIA
6,37 m2
KL. 7 KL. 8
N
budynek C
klatka 3
pow. użytkowa:
pow. loggii:
Z
POKÓJ + ANEKS
25,41 m2
70,16 m2
6,37 m2
POKÓJ
11,18 m2
L
POKÓJ
15,17 m2
HALL
10,00 m2
ŁAZIENKA
4,75 m2
ŁAZIENKA
3,65 m2
P
piętro
nr mieszkania
PARTER
-
I
-
II
-
III
-
IV
-
V
115
VI
-
VII
-
VIII
-
IX
-
wysokość mieszkania:
cena (bru o) PLN
285cm
cm
282
Zakup nieobligatoryjny:
N
miejsce garażowe: 0m
Legenda:
ściany konstrukcyjne
grzejnik c.o.
ściany działowe
grzejniki łazienkowe
drabinkowe
1m
5m
balustrada/przepierzenie szklane
parawany szklane na loggi
szafa loggiowa wysoka
balustrada stalowa
wlot wentylacji
szafa loggiowa niska
ruchoma szklana zabudowa loggi
dodatkowy pion kanalizacyjny
złączka do podlewania
UWAGA: Lokalizację przyborów sanitarnych podano zgodnie z projektem budowlanym. Powierzchnia użytkowa lokalu jest określona na podstawie rozporządzenia Ministra Transportu, Budownictwa i Gospodarki Morskiej z dn. 25.04.2012, w sprawie szczegółowego zakresu i formy projektu
budowlanego (DZ. U. z 2012r. POZ. 462), zgodnie z zasadami zawartymi w polskiej normie PN-ISO 9836: 1997, tj.: powierzchnia użytkowa lokalu jest obliczana w metrach kwadratowych z dokładnością do dwóch miejsc po przecinku, dla wymiarów lokalu w stanie wykończonym, na poziomie
podłogi, nie licząc listew przypodłogowych, progów itp. Karta katalogowa pokazuje przykładową aranżację. Powierzchnie podano w świetle wykończonych ścian. Karta katalogowa ma jedynie charakter informacyjny, podane powierzchnie mogą ulec drobnym korektom na etapie wykonawczym.
......................................
komórka lokatorska: ......................................
miejsce garażowe z szafą:
......................................
BIURO SPRZEDAŻY FORT SŁUŻEW
ul. Nowoursynowska, róg Doliny Służewieckiej
Warszawa
tel. 22 301 11 11
e-mail: [email protected]
www.fortsluzew.pl