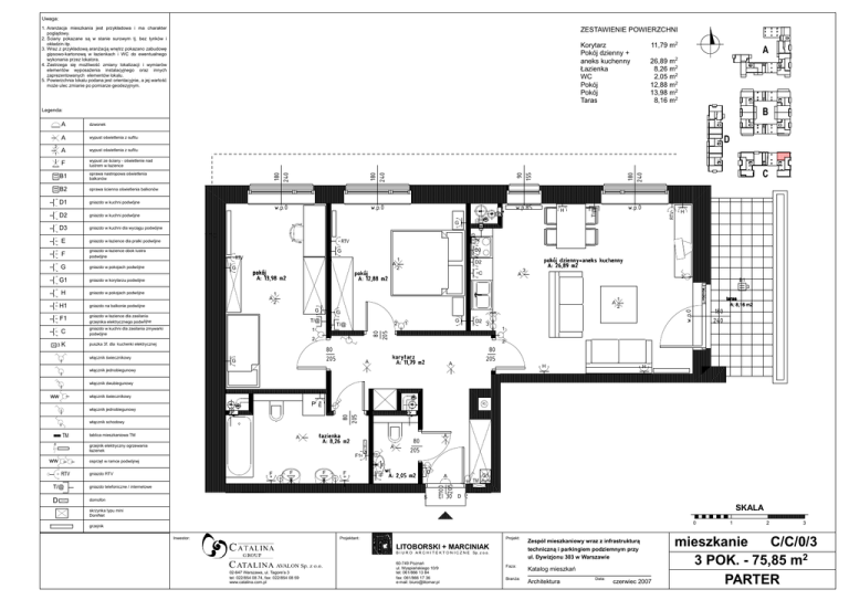
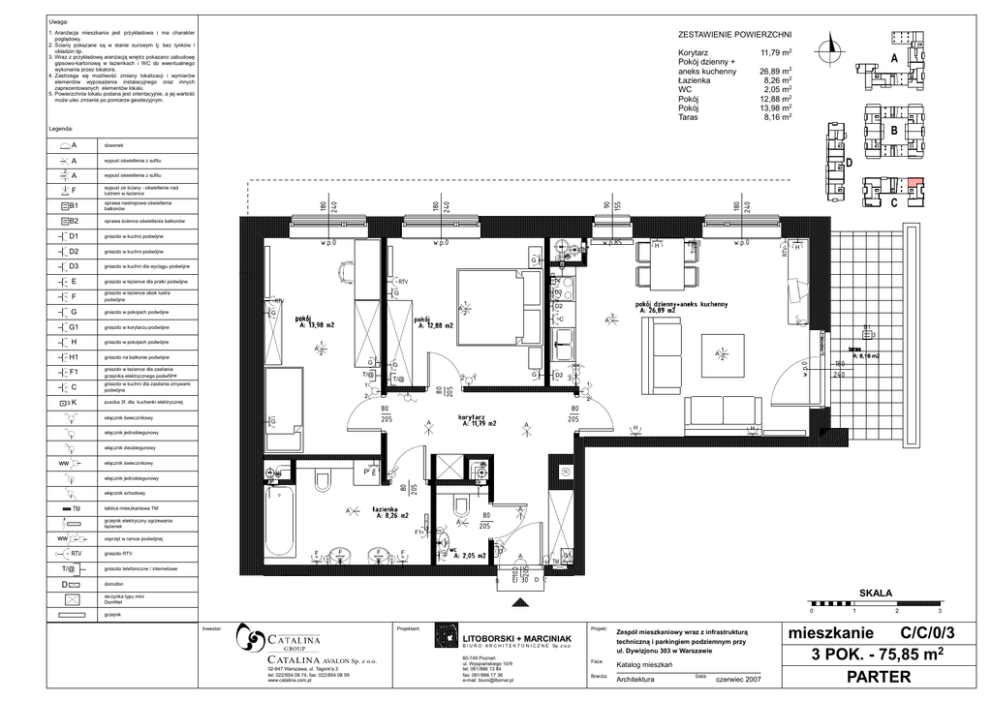
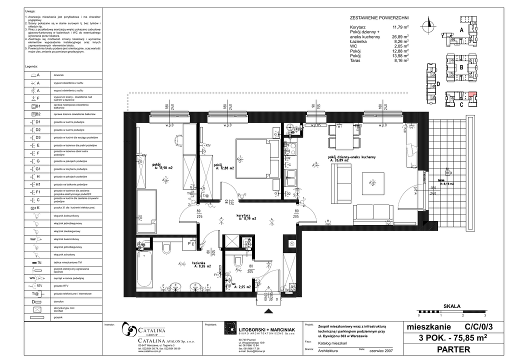
C/C/0/3 PARTER mieszkanie 3 POK.

Transkrypt

C/C/0/3 PARTER mieszkanie 3 POK.
Uwaga:
1. AranŜacja mieszkania jest przykładowa i ma charakter
poglądowy.
2. Ściany pokazane są w stanie surowym tj. bez tynków i
okładzin itp.
3. Wraz z przykładową aranŜacją wnętrz pokazano zabudowę
gipsowo-kartonową w łazienkach i WC do ewentualnego
wykonania przez lokatora.
4. Zastrzega się moŜliwość zmiany lokalizacji i wymiarów
elementów wyposaŜenia instalacyjnego oraz innych
zaprezentowanych elementów lokalu.
5. Powierzchnia lokalu podana jest orientacyjnie, a jej wartość
moŜe ulec zmianie po pomiarze geodezyjnym.
ZESTAWIENIE POWIERZCHNI
11,79 m2
Korytarz
Pokój dzienny +
aneks kuchenny
Łazienka
WC
Pokój
Pokój
Taras
A
26,89 m2
8,26 m2
2,05 m2
12,88 m2
13,98 m2
8,16 m2
Legenda:
wypust ze ściany - oświetlenie nad
lustrem w łazience
B1
oprawa nastropowa oświetlenia
balkonów
B2
oprawa ścienna oświetlenia balkonów
D1
gniazdo w kuchni podwµjne
D2
gniazdo w kuchni podwµjne
w.p.0
w.p.85
WO
G
gniazdo w kuchni dla wyciągu podwµjne
H
WK
w.p.0
KS
H
E
gniazdo w łazience dla pralki podwµjne
F
gniazdo w łazience obok lustra
podwµjne
gniazdo w korytarzu podwµjne
H
gniazdo w pokojach podwµjne
A
G
pokój
A: 13,98 m2
pokój
A: 12,88 m2
1
D2
2
C
A
3
pokój dzienny+aneks kuchenny
A: 26,89 m2
3
B1
3
gniazdo na balkonie podwµjne
F1
gniazdo w łazience dla zasilania
grzejnika elektrycznego podwµjne
A
1
2
G
G
7#
gniazdo w kuchni dla zasilania zmywarki
podwµjne
ww
7#
1
2
2
G
1
D2
3
80
205
G
korytarz
A: 11,79 m2
A
180
240
1
2
puszka 3f. dla kuchenki elektrycznej
włącznik świecznikowy
WDUDV
$P
1
A
2
w.p.0
H1
3K
D3
RTV
gniazdo w pokojach podwµjne
G1
C
RTV
G
80
205
G
K
3
D3
w.p.0
C
RTV
F
D
180
240
wypust oświetlenia z sufitu
7#
wypust oświetlenia z sufitu
A
90
155
A
180
240
1
dzwonek
180
240
2
B
A
80
205
A
H
włącznik jednobiegunowy
H
włącznik dwubiegunowy
ww
włącznik świecznikowy
KS
WŁ
P E
KS
włącznik schodowy
70
tablica mieszkaniowa TM
A
grzejnik elektryczny ogrzewania
łazienek
ww
A
łazienka
A: 8,26 m2
A
F1
osprzęt w ramce podwójnej
F
F
gniazdo RTV
7#
gniazdo telefoniczne / internetowe
'
domofon
F
F
F
F
80
205
wc
A: 2,05 m2
D
A
100
205
RTV
RS
WŁ
80
205
włącznik jednobiegunowy
S
EI 30
70
G1
D
SKALA
skrzynka typu mini
DomNet
0
grzejnik
Inwestor:
Projektant:
Projekt:
LITOBORSKI + MARCINIAK
B I U R O A R C H I T E K T O N I C Z N E Sp. z o.o.
C ATALINA AVALON Sp. z o.o.
02-647 Warszawa, ul. Tagore'a 3
tel: 022/854 08 74, fax: 022/854 08 59
www.catalina.com.pl
60-749 Poznań
ul. Wyspiańskiego 10/9
tel: 061/866 13 84
fax: 061/866 17 36
e-mail: [email protected]
Zespół mieszkaniowy wraz z infrastrukturą
techniczną i parkingiem podziemnym przy
ul. Dywizjonu 303 w Warszawie
Faza:
Katalog mieszkań
BranŜa:
Architektura
Data:
czerwiec 2007
1
2
3
mieszkanie
C/C/0/3
3 POK. - 75,85 m2
PARTER