KARTA MIESZKANIA

Transkrypt

KARTA MIESZKANIA
517
KARTA MIESZKANIA
401
N
PK
237
180
sufit gk
h=250cm
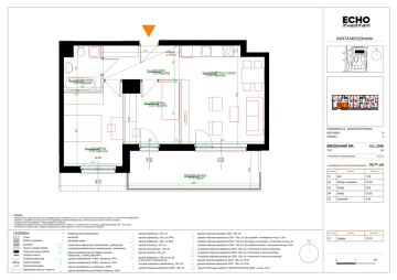
H.L.3340.01Hol
7,20 m2szlichta
H.L.3340.02Pokój z aneksem
21,99 m2szlichta
H.L.3340.05Łazienka
4,24 m2szlichta
9
9
8
8
10
7
11
12
13
4
14
3
11
6
12
5
13
14
18 x 17 = 310
10
7
6
5
4
3
2
2
1
1
18 x 17 = 310
12
523
198
15
16
17
15
16
17
269
331
H.L.3340.03Pokój
8,82 m2szlichta
391
WARSZAWA UL. KONSTRUKTORSKA
287
12
BUDYNEK -
H
PIĘTRO -
3
441
MIESZKANIE NR.
H.L.3340.04Pokój
12,52 m2szlichta
H.L.3340
TYP
3P
100
223
312
273 cm
270
223
WYSOKOŚĆ POMIESZCZENIA
hp 90
200
POWIERZCHNIA UŻYTKOWA MIESZKANIA
Numer strefy
180
133
H.B.3340.01Loggia
13,75 m2gres
695
Nazwa strefy
54,77 m2
Powierzchnia
01
Hol
7,20
02
Pokój z aneksem
21,99
03
Pokój
8,82
04
Pokój
12,52
05
Łazienka
4,24
UWAGI:
- Powierzchnia użytkowa mieszkań uwzględnia tynki wewnętrzne gr 1,5 cm. Powierzchnia liczona jest zgodnie z normą PN-ISO 9836:1997.
- Wymiary i wysokości pomieszczeń nie uwzględniają tynków wewnętrznych, odnoszą się do ścian w stanie surowym.
- Niniejsze dane są poglądowe i mogą odbiegać od realizacji.
- Podłączenia kanalizacji od pionu do urzadzeń sanitarnych w łazience - po ścianach lub w wylewce, podłączenie istalacji WC - po ścianie.
- Pomiarów pod zakup mebli, urządzeń i wyposażenia należy dokonać z natury, po zakończeniu realizacji.
LEGENDA:
Trawa
Rośliny okrywowe
Żywopłot
hp 90
/
wentylacja
wentylacja okapu
RE, RE.1
RT
Ściany bez opcji rozbiórki
Grzejnik ścienny
Zawór czerpalny
dodatkowy pion kanalizacyjny
W
O
Ściany z opcją rozbiórki
Grzejnik drabinkowy
PK
PF
BW
M
łącznik pojedyńczy, 10A, p/t
n/t
2
gniazdo wtykowe podwójne 230V, 16A, p/t
łącznik pojedyńczy, 10A, p/t, IP44
z
gniazdo wtykowe pojedyńcze 230V, 16A, p/t, dla zmywarki, montowane na wys. 0,3m
łącznik pojedyńczy, 10A, n/t, IP44
o
gniazdo wtykowe pojedyńcze 230V, 16A, p/t, dla okapu kuchennego, montowane na wys. 2m
rozdzielnica elektryczna mieszkaniowa - podtynkowa
rozdzielnica teletechniczna mieszkaniowa - podtynkowa
łącznik schodowy, 10A, p/t
łącznik świecznikowy, 10A, p/t
x2
2x gniazdo wtykowe pojedyńcze 230V, 16A, p/t, montowane w ramce podwójnej
oprawa oświetleniowa ze źródłem żarowym,
nastropowa, z kratką, biała IP44
oprawa świetlówkowa 1x18W, naścienna, IP44
łącznik krzyżowy, 10A, p/t
x3
3x gniazdo wtykowe pojedyńcze 230V, 16A, p/t, montowane w ramce potrójnej
oprawa oświetleniowa 1x26W, naścienna, IP44
Wysokość parapetu
wypust oświetleniowy w mieszkaniu, 230V
Nawietrzaki okienne / ścienne
wypust oświetleniowy pod kinkiet w łazience, 230V
W
łącznik pojedyńczy, 10A, p/t do zał.
w kuchniach, łazienkach itp.
przycisk pojedyńczy (dzwonkowy), 10A, p/t
gniazdo wtykowe pojedyńcze 230V, 16A, p/t
L
x4
3f
N
Nazwa strefy
01
Powierzchnia
Loggia
13,75
gniazdo wtykowe pojedyńcze 230V, 16A, p/t, dla zasilania lodówki, montowane na wys. 0,3m
4x gniazdo wtykowe pojedyńcze 230V, 16A, p/t, montowane w ramce poczwórnej
gniazdo wtykowe pojedyńcze 230V, 16A, p/t, IP44
n/t
Numer strefy
gniazdo wtykowe pojedyńcze 230V, 16A, n/t, IP44
wypust 3-fazowego zasilania 16A/400V kuchenek elektr. na wys. 0,3m
0
1
2m