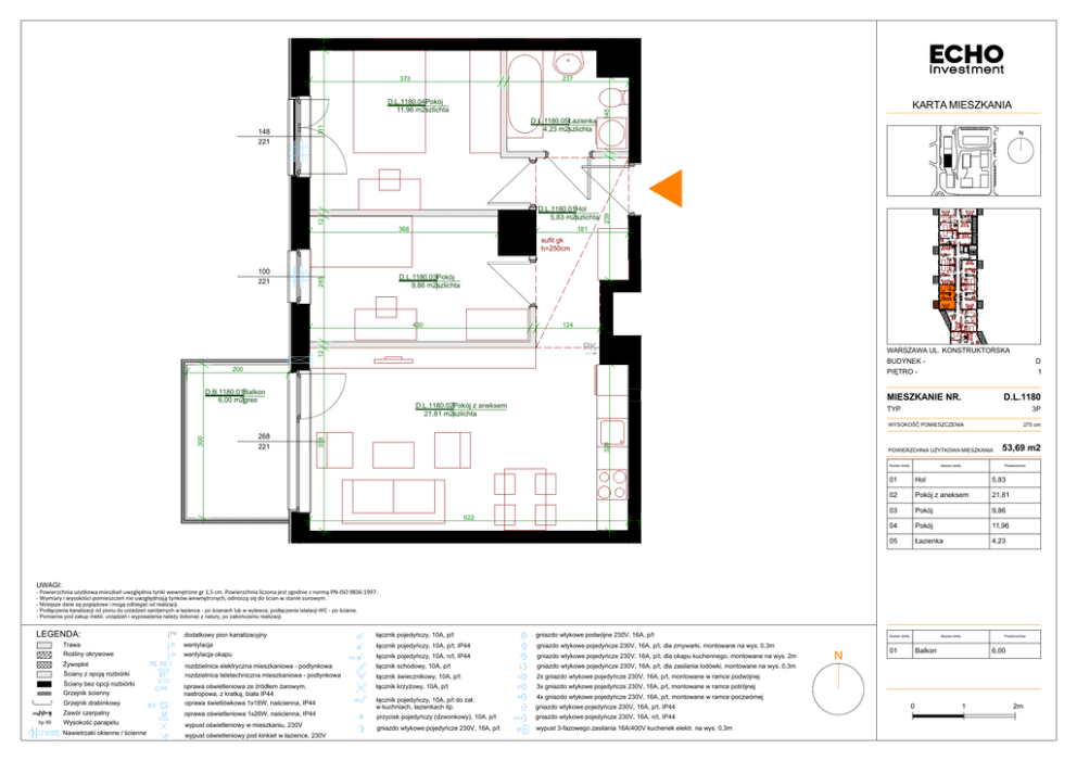
KARTA MIESZKANIA

Transkrypt

KARTA MIESZKANIA
237
311
D.L.1180.05Łazienka
4,23 m2szlichta
181
9
sufit gk
h=250cm
10
11
12
15
16
17
3
2
1
D.L.1180.03Pokój
9,86 m2szlichta
245
100
221
8
7
6
5
4
18 x 17 = 310
368
14
12
D.L.1180.01Hol
5,83 m2szlichta
N
13
148
221
KARTA MIESZKANIA
145
D.L.1180.04Pokój
11,96 m2szlichta
239
373
430
124
12
PK
WARSZAWA UL. KONSTRUKTORSKA
BUDYNEK -
200
D
PIĘTRO -
D.B.1180.01Balkon
6,00 m2gres
1
MIESZKANIE NR.
D.L.1180.02Pokój z aneksem
21,81 m2szlichta
D.L.1180
TYP
3P
326
268
221
358
300
WYSOKOŚĆ POMIESZCZENIA
275 cm
POWIERZCHNIA UŻYTKOWA MIESZKANIA
Numer strefy
622
Nazwa strefy
53,69 m2
Powierzchnia
01
Hol
5,83
02
Pokój z aneksem
21,81
03
Pokój
9,86
04
Pokój
11,96
05
Łazienka
4,23
UWAGI:
- Powierzchnia użytkowa mieszkań uwzględnia tynki wewnętrzne gr 1,5 cm. Powierzchnia liczona jest zgodnie z normą PN-ISO 9836:1997.
- Wymiary i wysokości pomieszczeń nie uwzględniają tynków wewnętrznych, odnoszą się do ścian w stanie surowym.
- Niniejsze dane są poglądowe i mogą odbiegać od realizacji.
- Podłączenia kanalizacji od pionu do urzadzeń sanitarnych w łazience - po ścianach lub w wylewce, podłączenie istalacji WC - po ścianie.
- Pomiarów pod zakup mebli, urządzeń i wyposażenia należy dokonać z natury, po zakończeniu realizacji.
LEGENDA:
Trawa
Rośliny okrywowe
Żywopłot
hp 90
/
łącznik pojedyńczy, 10A, p/t
2
gniazdo wtykowe podwójne 230V, 16A, p/t
wentylacja
wentylacja okapu
łącznik pojedyńczy, 10A, p/t, IP44
z
gniazdo wtykowe pojedyńcze 230V, 16A, p/t, dla zmywarki, montowane na wys. 0,3m
łącznik pojedyńczy, 10A, n/t, IP44
o
gniazdo wtykowe pojedyńcze 230V, 16A, p/t, dla okapu kuchennego, montowane na wys. 2m
RE, RE.1
RT
Ściany bez opcji rozbiórki
Grzejnik ścienny
Zawór czerpalny
dodatkowy pion kanalizacyjny
W
O
Ściany z opcją rozbiórki
Grzejnik drabinkowy
PK
PF
BW
M
n/t
rozdzielnica elektryczna mieszkaniowa - podtynkowa
rozdzielnica teletechniczna mieszkaniowa - podtynkowa
łącznik schodowy, 10A, p/t
łącznik świecznikowy, 10A, p/t
x2
2x gniazdo wtykowe pojedyńcze 230V, 16A, p/t, montowane w ramce podwójnej
oprawa oświetleniowa ze źródłem żarowym,
nastropowa, z kratką, biała IP44
oprawa świetlówkowa 1x18W, naścienna, IP44
łącznik krzyżowy, 10A, p/t
x3
3x gniazdo wtykowe pojedyńcze 230V, 16A, p/t, montowane w ramce potrójnej
oprawa oświetleniowa 1x26W, naścienna, IP44
Wysokość parapetu
wypust oświetleniowy w mieszkaniu, 230V
Nawietrzaki okienne / ścienne
wypust oświetleniowy pod kinkiet w łazience, 230V
W
łącznik pojedyńczy, 10A, p/t do zał.
w kuchniach, łazienkach itp.
przycisk pojedyńczy (dzwonkowy), 10A, p/t
gniazdo wtykowe pojedyńcze 230V, 16A, p/t
L
x4
3f
N
Nazwa strefy
01
Powierzchnia
Balkon
6,00
gniazdo wtykowe pojedyńcze 230V, 16A, p/t, dla zasilania lodówki, montowane na wys. 0,3m
4x gniazdo wtykowe pojedyńcze 230V, 16A, p/t, montowane w ramce poczwórnej
gniazdo wtykowe pojedyńcze 230V, 16A, p/t, IP44
n/t
Numer strefy
gniazdo wtykowe pojedyńcze 230V, 16A, n/t, IP44
wypust 3-fazowego zasilania 16A/400V kuchenek elektr. na wys. 0,3m
0
1
2m