2 2 ab x4 2 2 2 2 2 3f o x3 x2 x3 z x2 x2 L x2 add 2 deecbc

Transkrypt

2 2 ab x4 2 2 2 2 2 3f o x3 x2 x3 z x2 x2 L x2 add 2 deecbc
2
237
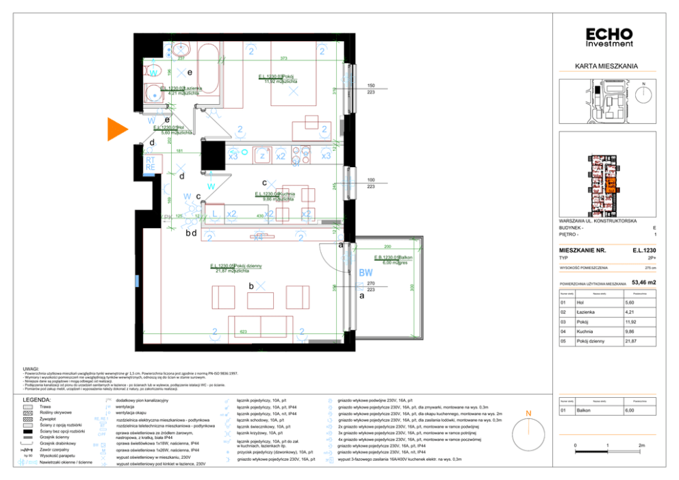
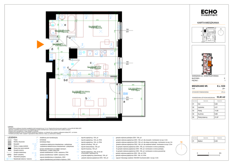
KARTA MIESZKANIA
196
e
E.L.1230.03Pokój
11,92 m2szlichta
e
2
9
5
4
18 x 17 = 310
O
12
8
7
6
3
2
1
245
100
223
E.L.1230.04Kuchnia
9,86 m2szlichta
9
x2
8
7
11
6
18 x 17 = 310
5
4
15
x2
10
430
14
x2
13
L
12
12
3
RT
RE
x4
2
2
a
623
a
270
223
E
PIĘTRO -
1
E.L.1230
TYP
2P+
WYSOKOŚĆ POMIESZCZENIA
BW
b
BUDYNEK -
MIESZKANIE NR.
E.B.1230.01Balkon
6,00 m2gres
E.L.1230.05Pokój dzienny
21,87 m2szlichta
2
200
275 cm
POWIERZCHNIA UŻYTKOWA MIESZKANIA
300
bd
12
WARSZAWA UL. KONSTRUKTORSKA
358
169
W c
125
3f
x3
c
W
PK
o
11
d
x2
17
z
16
x3
15
RT
RE
14
181
13
d
2
202
E.L.1230.01Hol
5,60 m2szlichta
10
W
N
150
223
310
E.L.1230.02Łazienka
4,21 m2szlichta
12
W
2
373
Numer strefy
2
Nazwa strefy
53,46 m2
Powierzchnia
01
Hol
5,60
02
Łazienka
4,21
03
Pokój
11,92
04
Kuchnia
9,86
05
Pokój dzienny
21,87
UWAGI:
- Powierzchnia użytkowa mieszkań uwzględnia tynki wewnętrzne gr 1,5 cm. Powierzchnia liczona jest zgodnie z normą PN-ISO 9836:1997.
- Wymiary i wysokości pomieszczeń nie uwzględniają tynków wewnętrznych, odnoszą się do ścian w stanie surowym.
- Niniejsze dane są poglądowe i mogą odbiegać od realizacji.
- Podłączenia kanalizacji od pionu do urzadzeń sanitarnych w łazience - po ścianach lub w wylewce, podłączenie istalacji WC - po ścianie.
- Pomiarów pod zakup mebli, urządzeń i wyposażenia należy dokonać z natury, po zakończeniu realizacji.
LEGENDA:
Trawa
Rośliny okrywowe
Żywopłot
hp 90
/
łącznik pojedyńczy, 10A, p/t
2
gniazdo wtykowe podwójne 230V, 16A, p/t
wentylacja
wentylacja okapu
łącznik pojedyńczy, 10A, p/t, IP44
z
gniazdo wtykowe pojedyńcze 230V, 16A, p/t, dla zmywarki, montowane na wys. 0,3m
łącznik pojedyńczy, 10A, n/t, IP44
o
gniazdo wtykowe pojedyńcze 230V, 16A, p/t, dla okapu kuchennego, montowane na wys. 2m
RE, RE.1
RT
Ściany bez opcji rozbiórki
Grzejnik ścienny
Zawór czerpalny
dodatkowy pion kanalizacyjny
W
O
Ściany z opcją rozbiórki
Grzejnik drabinkowy
PK
PF
BW
M
n/t
rozdzielnica elektryczna mieszkaniowa - podtynkowa
rozdzielnica teletechniczna mieszkaniowa - podtynkowa
łącznik schodowy, 10A, p/t
łącznik świecznikowy, 10A, p/t
x2
2x gniazdo wtykowe pojedyńcze 230V, 16A, p/t, montowane w ramce podwójnej
oprawa oświetleniowa ze źródłem żarowym,
nastropowa, z kratką, biała IP44
oprawa świetlówkowa 1x18W, naścienna, IP44
łącznik krzyżowy, 10A, p/t
x3
3x gniazdo wtykowe pojedyńcze 230V, 16A, p/t, montowane w ramce potrójnej
oprawa oświetleniowa 1x26W, naścienna, IP44
Wysokość parapetu
wypust oświetleniowy w mieszkaniu, 230V
Nawietrzaki okienne / ścienne
wypust oświetleniowy pod kinkiet w łazience, 230V
W
łącznik pojedyńczy, 10A, p/t do zał.
w kuchniach, łazienkach itp.
przycisk pojedyńczy (dzwonkowy), 10A, p/t
gniazdo wtykowe pojedyńcze 230V, 16A, p/t
L
x4
3f
N
Nazwa strefy
01
Powierzchnia
Balkon
6,00
gniazdo wtykowe pojedyńcze 230V, 16A, p/t, dla zasilania lodówki, montowane na wys. 0,3m
4x gniazdo wtykowe pojedyńcze 230V, 16A, p/t, montowane w ramce poczwórnej
gniazdo wtykowe pojedyńcze 230V, 16A, p/t, IP44
n/t
Numer strefy
gniazdo wtykowe pojedyńcze 230V, 16A, n/t, IP44
wypust 3-fazowego zasilania 16A/400V kuchenek elektr. na wys. 0,3m
0
1
2m