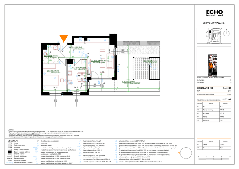
KARTA MIESZKANIA BW BW

Transkrypt

KARTA MIESZKANIA BW BW
KARTA MIESZKANIA
2
2
2
2
PK
e
2
n/t
9
b
BW
E.B.3190.01Taras
35,45 m2płyty bet./żwir
18 x 17 = 310
BUDYNEK -
E
PIĘTRO -
3
154
270
204
100
204
hp 19
PF
337
BW
2
b
b 430
d
d
o
3f
3
WARSZAWA UL. KONSTRUKTORSKA
367
552
MIESZKANIE NR.
252
x2
18 x 17 = 310
513
b
x4
L
9
c e
W
d
W
x2
108
hp 90
c
181
W
W
c
11
4
15
a
a
z
10
2
8
7
6
5
14
2
355
13
hp 90
E.B.3160.02
12
2
E.B.3190.02Schowek
3,36 m2płyty bet.
3
2
1
17
E.L.3190.02Pokój dzienny
17,35 m2szlichta
hp 19
12
11
16
E.L.3190.03Kuchnia
10,16 m2szlichta
hp 90
310
15
O
5
4
14
196
8
7
6
13
378
100
133
10
237
E.L.3190.01Hol
8,13 m2szlichta
E.L.3190.05Lazienka
4,21 m2szlichta
E.L.3190.04Pokój
11,92 m2szlichta
obudowa
instalacji
12
VMR90 149
RE
RT
W
RE
RT
PK
N
E.L.3190
TYP
2P+
275 cm
51,77 m2
POWIERZCHNIA UŻYTKOWA MIESZKANIA
100
133
150
133
WYSOKOŚĆ POMIESZCZENIA
Numer strefy
Nazwa strefy
Powierzchnia
01
Hol
8,13
02
Pokój dzienny
17,35
03
Kuchnia
10,16
04
Pokój
11,92
05
Lazienka
4,21
UWAGI:
- Powierzchnia użytkowa mieszkań uwzględnia tynki wewnętrzne gr 1,5 cm. Powierzchnia liczona jest zgodnie z normą PN-ISO 9836:1997.
- Wymiary i wysokości pomieszczeń nie uwzględniają tynków wewnętrznych, odnoszą się do ścian w stanie surowym.
- Niniejsze dane są poglądowe i mogą odbiegać od realizacji.
- Podłączenia kanalizacji od pionu do urzadzeń sanitarnych w łazience - po ścianach lub w wylewce, podłączenie istalacji WC - po ścianie.
- Pomiarów pod zakup mebli, urządzeń i wyposażenia należy dokonać z natury, po zakończeniu realizacji.
LEGENDA:
Trawa
Rośliny okrywowe
Żywopłot
hp 90
/
łącznik pojedyńczy, 10A, p/t
2
gniazdo wtykowe podwójne 230V, 16A, p/t
wentylacja
wentylacja okapu
łącznik pojedyńczy, 10A, p/t, IP44
z
gniazdo wtykowe pojedyńcze 230V, 16A, p/t, dla zmywarki, montowane na wys. 0,3m
łącznik pojedyńczy, 10A, n/t, IP44
o
gniazdo wtykowe pojedyńcze 230V, 16A, p/t, dla okapu kuchennego, montowane na wys. 2m
RE, RE.1
RT
Ściany bez opcji rozbiórki
Grzejnik ścienny
Grzejnik drabinkowy
dodatkowy pion kanalizacyjny
W
O
Ściany z opcją rozbiórki
Zawór czerpalny
PK
PF
BW
M
n/t
rozdzielnica elektryczna mieszkaniowa - podtynkowa
rozdzielnica teletechniczna mieszkaniowa - podtynkowa
łącznik schodowy, 10A, p/t
łącznik świecznikowy, 10A, p/t
x2
2x gniazdo wtykowe pojedyńcze 230V, 16A, p/t, montowane w ramce podwójnej
oprawa oświetleniowa ze źródłem żarowym,
nastropowa, z kratką, biała IP44
oprawa świetlówkowa 1x18W, naścienna, IP44
łącznik krzyżowy, 10A, p/t
x3
3x gniazdo wtykowe pojedyńcze 230V, 16A, p/t, montowane w ramce potrójnej
x4
4x gniazdo wtykowe pojedyńcze 230V, 16A, p/t, montowane w ramce poczwórnej
oprawa oświetleniowa 1x26W, naścienna, IP44
Wysokość parapetu
wypust oświetleniowy w mieszkaniu, 230V
Nawietrzaki okienne / ścienne
wypust oświetleniowy pod kinkiet w łazience, 230V
W
łącznik pojedyńczy, 10A, p/t do zał.
w kuchniach, łazienkach itp.
przycisk pojedyńczy (dzwonkowy), 10A, p/t
gniazdo wtykowe pojedyńcze 230V, 16A, p/t
L
gniazdo wtykowe pojedyńcze 230V, 16A, p/t, dla zasilania lodówki, montowane na wys. 0,3m
gniazdo wtykowe pojedyńcze 230V, 16A, p/t, IP44
n/t
3f
Numer strefy
gniazdo wtykowe pojedyńcze 230V, 16A, n/t, IP44
wypust 3-fazowego zasilania 16A/400V kuchenek elektr. na wys. 0,3m
Nazwa strefy
Powierzchnia
01
Taras
35,45
02
Schowek
3,36
0
1
N
2
3
4m