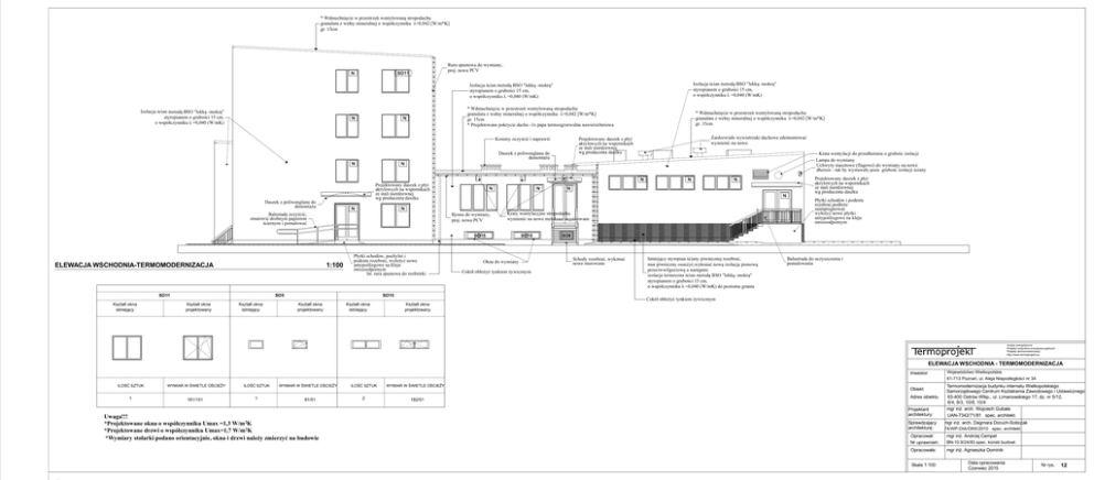
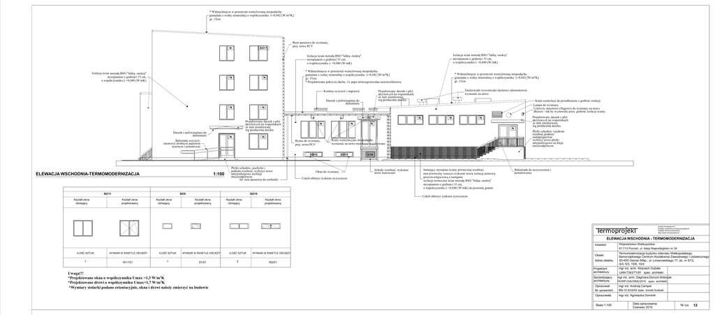
ELEWACJA WSCHODNIA-TERMOMODERNIZACJA 1:100

Transkrypt

ELEWACJA WSCHODNIA-TERMOMODERNIZACJA 1:100
* Wdmuchnięcie w przestrzeń wentylowaną stropodachu
granulatu z wełny mineralnej o współczynniku λ=0,042 [W/m*K]
gr. 15cm
N
Rura spustowa do wymiany,
proj. nowa PCV
SO11
Izolacja ścian metodą BSO "lekką -mokrą"
styropianem o grubości 15 cm,
o współczynniku λ =0,040 (W/mK)
Izolacja ścian metodą BSO "lekką -mokrą"
styropianem o grubości 15 cm,
o współczynniku λ =0,040 (W/mK)
Izolacja ścian metodą BSO "lekką -mokrą"
styropianem o grubości 15 cm,
o współczynniku λ =0,040 (W/mK)
N
* Wdmuchnięcie w przestrzeń wentylowaną stropodachu
granulatu z wełny mineralnej o współczynniku λ=0,042 [W/m*K]
gr. 15cm
* Projektowane pokrycie dachu -1x papa termozgrzewalna nawierzchniowa
N
Kominy oczyścić i naprawić
Zardzewiałe wywietrzaki dachowe zdemontować
wymienić na nowe
Projektowany daszek z płyt
akrylowych na wspornikach
ze stali nierdzewnej
wg producenta daszku
Daszek z poliwenglanu do
demontażu
N
* Wdmuchnięcie w przestrzeń wentylowaną stropodachu
granulatu z wełny mineralnej o współczynniku λ=0,042 [W/m*K]
gr. 15cm
Krata wentylacji do przedłużenia o grubośc izolacji
Lampa do wymiany
Uchwyty masztowe (flagowe) do wymiany na nowe
dłuższe - tak by wystawały poza grubość izolacji ściany
N
N
Projektowany daszek z płyt
akrylowych na wspornikach
ze stali nierdzewnej
wg producenta daszku
Daszek z poliwenglanu do
demontażu
N
N
N
Kształt okna
istniejący
Płytki schodów, pochylni i
podestu rozebrać, wyłożyć nowe
antypoślizgowe na kleju
mrozoodpornym
Ist. rura spustowa do rozbiórki
SO5
Kształt okna
projektowany
Kształt okna
istniejący
SO15
Kształt okna
projektowany
Kształt okna
istniejący
SO15
Okna do wymiany
Cokół obłożyć tynkiem żywicznym
Projektowany daszek z płyt
akrylowych na wspornikach
ze stali nierdzewnej
wg producenta daszku
Płytki schodów i podestu
rozebrać,podłoże
zaimpregnować
wyłożyć nowe płytki
antypoślizgowe na kleju
mrozoodpornym
Kraty wentylacyjne stropodachu
wymienić na nowe metalowe ocynkowane
SO15
SO11
N
N
Rynna do wymiany,
proj. nowa PCV
1:100
N
N
Balustadę oczyścić,
zmatowić drobnym papierem
ściernym i pomalować
ELEWACJA WSCHODNIA-TERMOMODERNIZACJA
N
SO5
Schody rozebrać, wykonać
nowe murowane
Istniejący styropian ściany piwnicznej rozebrać,
mur piwniczny osuszyć,wykonać nową izolację pionową
przeciwwilgociową a następnie
izolacja termoczna ścian metodą BSO "lekką -mokrą"
styropianem o grubości 15 cm,
o współczynniku λ =0,040 (W/mK) do poziomu gruntu
Balustrada do oczyszczenia i
pomalowania
Cokół obłożyć tynkiem żywicznym
Kształt okna
projektowany
Audyty energetyczne
Projekty budynków energooszczędnych
Projekty termomodernizacji
http://www.termoprojekt.eu
ELEWACJA WSCHODNIA - TERMOMODERNIZACJA
Inwestor
ILOŚĆ SZTUK
1
WYMIAR W ŚWIETLE OŚCIEŻY
181/151
ILOŚĆ SZTUK
1
WYMIAR W ŚWIETLE OŚCIEŻY
91/51
Uwaga!!!
*Projektowane okna o współczynniku Umax =1,3 W/m 2K
*Projektowane drzwi o współczynniku Umax=1,7 W/m 2K
*Wymiary stolarki podano orientacyjnie, okna i drzwi należy zmierzyć na budowie
ILOŚĆ SZTUK
2
WYMIAR W ŚWIETLE OŚCIEŻY
182/51
Obiekt
Adres obiektu
Projektant
architektury:
Sprawdzający
architekturę:
Województwo Wielkopolskie
61-713 Poznań, ul. Aleja Niepodległości nr 34
Termomodernizacja budynku internatu Wielkopolskiego
Samorządowego Centrum Kształcenia Zawodowego i Ustawicznego
63-400 Ostrów Wlkp., ul. Limanowskiego 17, dz. nr 5/12,
6/4, 9/3, 10/8, 10/4
mgr inż. arch. Wojciech Gubała
UAN-7342/71/81 spec. architekt.
mgr inż. arch. Dagmara Doruch-Sobczak
74/WP-OIA/OKK/2010 spec. architekt.
Opracował:
Nr uprawnień:
mgr inż. Andrzej Cempel
Opracowała:
mgr inż. Agnieszka Dominik
Skala 1:100
BN-10.9/24/83 spec. konstr.budowl.
Data opracowania
Czerwiec 2015
Nr rys.
12