ELEWACJA ZACHODNIA-TERMOMODERNIZACJA 1:100

Transkrypt

ELEWACJA ZACHODNIA-TERMOMODERNIZACJA 1:100
SO13
Kształt okna
istniejący
SO5
Kształt okna
projektowany
Kształt okna
istniejący
SO10
Kształt okna
projektowany
Kształt okna
istniejący
SO9
Kształt okna
projektowany
Kształt luksfera
istniejący
SO6
Kształt okna
projektowany
SD1
Kształt luksfera
istniejący
Kształt okna
projektowany
Kształt drzwi
istniejący
SD2
Kształt drzwi
projektowany
Kształt drzwi
istniejący
Drzwi na kl. schod.
- blaszane
Kształt drzwi
projektowany
Drzwi techniczne blaszane
brak
w otworze okiennym
osadzona płyta
pilśniowa
ILOŚĆ SZTUK
1
WYMIAR W ŚWIETLE OŚCIEŻY
240/221
ILOŚĆ SZTUK
WYMIAR W ŚWIETLE OŚCIEŻY
3
ILOŚĆ SZTUK
WYMIAR W ŚWIETLE OŚCIEŻY
1
91/51
ILOŚĆ SZTUK
WYMIAR W ŚWIETLE OŚCIEŻY
3
241/51
ILOŚĆ SZTUK
2
81/51
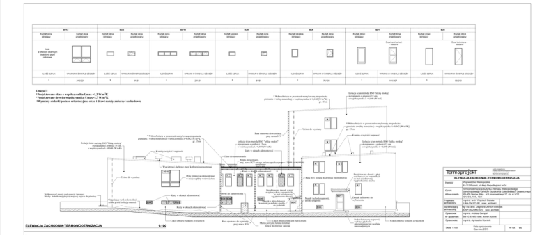
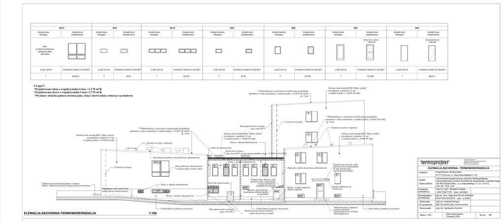
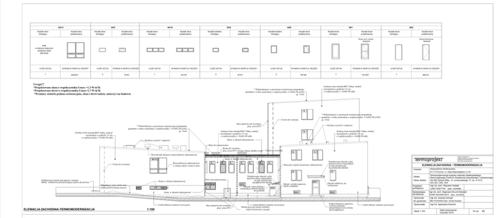
Uwaga!!!
*Projektowane okna o współczynniku Umax =1,3 W/m 2K
*Projektowane drzwi o współczynniku Umax=1,7 W/m 2K
*Wymiary stolarki podano orientacyjnie, okna i drzwi należy zmierzyć na budowie
WYMIAR W ŚWIETLE OŚCIEŻY
ILOŚĆ SZTUK
WYMIAR W ŚWIETLE OŚCIEŻY
1
75/100
ILOŚĆ SZTUK
101/207
WYMIAR W ŚWIETLE OŚCIEŻY
1
90/210
Izolacja ścian metodą BSO "lekką -mokrą"
styropianem o grubości 15 cm,
o współczynniku λ =0,040 (W/mK)
* Wdmuchnięcie w przestrzeń wentylowaną stropodachu
granulatu z wełny mineralnej o współczynniku λ=0,042 [W/m*K]
gr. 15cm
N
* Wdmuchnięcie w przestrzeń wentylowaną stropodachu
granulatu z wełny mineralnej o współczynniku λ=0,042 [W/m*K]
gr. 15cm
Uziom do wymiany
Izolacja ścian metodą BSO "lekką -mokrą"
styropianem o grubości 15 cm,
o współczynniku λ =0,040 (W/mK)
Rura spustowa do wymiany,
proj. nowa PCV
* Wdmuchnięcie w przestrzeń wentylowaną stropodachu
granulatu z wełny mineralnej o współczynniku λ=0,042 [W/m*K]
gr. 15cm
Kominy oczyścić i naprawić
Izolacja ścian metodą BSO "lekką -mokrą"
styropianem o grubości 15 cm,
o współczynniku λ =0,040 (W/mK)
Izolacja ścian metodą BSO "lekką -mokrą"
styropianem o grubości 15 cm,
o współczynniku λ =0,040 (W/mK)
N
Kraty w oknach zdemontować
Kominy oczyścić i naprawić
Okno do zamurowania
Rynna do wymiany,
proj. nowa PCV-uwaga zmiana spadku rynny
Wywietrzaki dachowe starej kotłowni zdemontować
0,5%
Uziom do wymiany
N
N
0,5%
Płyte pilśniową zdemontować,
w miejscu płyty wstawić okno
Uziom do wymiany
N
N
N
N
N
N
N
Rurę przy zejściu do piwnicy zdemontować
N
Nadmurować murek pod oparcie i montaż
blachy żeberkowej przykrywającej zejście do piwnicy
Kraty w oknach zdemontować
Odpadający tynk cokołu skuć
ściane przed izolacją osuszyć
Kraty w oknach zdemontować
ELEWACJA ZACHODNIA-TERMOMODERNIZACJA
1:100
SO5
Daszek z płyty falistej i
konstrukcja stalowa daszku
do rozbiórki
SO10
Cokół obłożyć tynkiem żywicznym
Projektowany daszek z płyt
akrylowych na wspornikach
ze stali nierdzewnej
wg producenta daszku
Drzwi do zamurowania
SO6 SO6
SO9
Audyty energetyczne
Projekty budynków energooszczędnych
Projekty termomodernizacji
http://www.termoprojekt.eu
Kraty w oknach zdemontować
SO13
Rura spustowa do wymiany,
proj. nowa PCV
SO5
Projektowany daszek z płyt
akrylowych na wspornikach
ze stali nierdzewnej
wg producenta daszku
ELEWACJA ZACHODNIA - TERMOMODERNIZACJA
Inwestor
N
Obiekt
SD1
Murek i schody naprawić,
ubytki uzupełnić
Cokół obłożyć tynkiem żywicznym
Murek powyżej terenu rozebrać,
zejście do piwnicy zasypać
SO5
Adres obiektu
Daszek żelbetowy do
wyburzenia
Projektant
architektury:
Sprawdzający
architekturę:
SO5
Podest betonowy naprawić,
wyłożyć płytkami
antypoślizgowymi na kleju
mrozoodpornym
Cokół obłożyć tynkiem żywicznym
Województwo Wielkopolskie
61-713 Poznań, ul. Aleja Niepodległości nr 34
Termomodernizacja budynku internatu Wielkopolskiego
Samorządowego Centrum Kształcenia Zawodowego i Ustawicznego
63-400 Ostrów Wlkp., ul. Limanowskiego 17, dz. nr 5/12,
6/4, 9/3, 10/8, 10/4
mgr inż. arch. Wojciech Gubała
UAN-7342/71/81 spec. architekt.
mgr inż. arch. Dagmara Doruch-Sobczak
74/WP-OIA/OKK/2010 spec. architekt.
Opracował:
Nr uprawnień:
mgr inż. Andrzej Cempel
Opracowała:
mgr inż. Agnieszka Dominik
Skala 1:100
BN-10.9/24/83 spec. konstr.budowl.
Data opracowania
Czerwiec 2015
Nr rys.
11