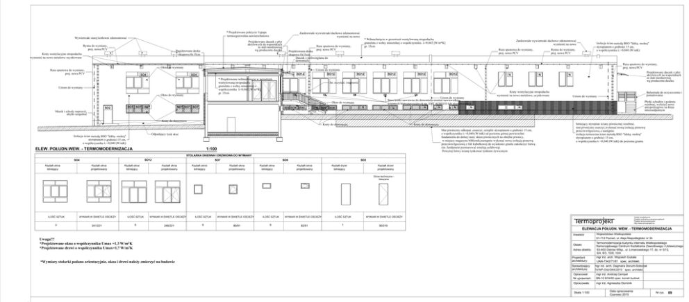
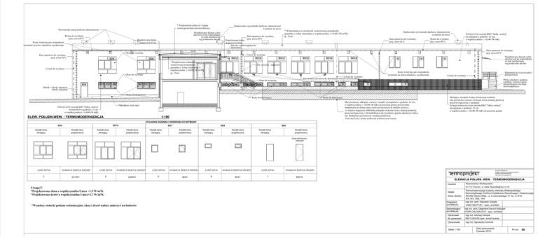
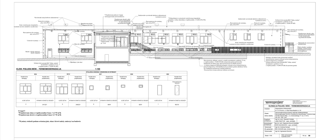
09 680x300

Transkrypt

09 680x300
* Projektowane pokrycie 1xpapa
termozgrzewalna nawierzchniowa
Wywietrzaki starej kotłowni zdemontować
Rynna do wymiany,
proj. nowa PCV
Projektowany daszek z płyt
akrylowych na wspornikach
ze stali nierdzewnej
wg producenta daszku
Projektowana deska
okapowa 8x15cm
Kraty wentylacyjne stropodachu
wymienić na nowe metalowe ocynkowane
Zardzewiałe wywietrzaki dachowe zdemontować
wymienić na nowe
Rura spustowa do wymiany,
proj. nowa PCV
Rura spustowa do wymiany,
proj. nowa PCV
SO12
SO4
Okno do wymiany
SO12
SO12
SO7 SO7
SO7
SO12
SO12
N
N
Projektowany daszek z płyt
akrylowych na wspornikach
ze stali nierdzewnej
wg producenta daszku
N
Ist. oczyścić i naprawić
Uziom do wymiany
Stare kratki nawiewne do demontażu-montaż nawiewników
ściennych higrosterowalnych np. EHT AERECO lub równoważnych
Okno do wymiany
SD2
Rynna do wymiany,
proj. nowa PCV
Rura spustowa do wymiany,
proj. nowa PCV
SO12
* Projektowane wdmuchnięcie w przestrzeń
wentylowaną stropodachu
granulatu z wełny mineralnej o
współczynniku λ=0,042 [W/m*K]
gr. 15cm
Uziom do wymiany
SO7
Izolacja ścian metodą BSO "lekką -mokrą"
styropianem o grubości 15 cm,
o współczynniku λ =0,040 (W/mK)
Uziom do wymiany
SO4
SO7 SO7
Zardzewiałe wywietrzaki dachowe zdemontować
wymienić na nowe
Projektowana deska
okapowa 8x15cm
Daszek z poliwenglanu do
demontażu
Okno do wymiany
Rura spustowa do wymiany,
proj. nowa PCV
* Wdmuchnięcie w przestrzeń wentylowaną stropodachu
granulatu z wełny mineralnej o współczynniku λ=0,042 [W/m*K]
gr. 15cm
SO8 SO8 SO8
Murek i schody naprawić,
ubytki uzupełnić
SO8
9x1
5
35
N
SO8 SO8
N
N
N
N
N
Kraty wentylacyjne stropodachu
wymienić na nowe metalowe, ocynkowane
Balustrada do oczyszczenia i
pomalowania
Uziom do wymiany
Płytki schodów i podestu
rozebrać, wyłożyć nowe
antypoślizgowe na kleju
mrozoodpornym
N
Kraty do demontażu
Kraty do demontażu
Kraty do demontażu
Mur piwniczny odkopać ,osuszyć, ocieplić styropianem o grubości 15 cm,
o współczynniku λ =0,040 (W/mK) od poziomu górnej powierzchni
fundamentu do dolnej ramy okien piwnicznych na obrębie piwnicy,
w miejscu magazynu biblioteki,następnie wykonać nową izolację pionową
przeciwwilgociową z foli kubełkowej do wysokości gruntu zakończyć listwą
(ist. fundament pozmarować emulsją asfaltową).
Powyżej listwy ścianę tynkować tynkiem żywicznym
Odpadający tynk skuć
Izolacja ścian metodą BSO "lekką -mokrą"
styropianem o grubości 15 cm,
o współczynniku λ =0,040 (W/mK)
ELEW. POŁUDN.WEW. - TERMOMODERNIZACJA
1:100
Istniejący styropian ściany piwnicznej rozebrać,
mur piwniczny osuszyć,wykonać nową izolację pionową
przeciwwilgociową a następnie
izolacja termoczna ścian metodą BSO "lekką -mokrą"
styropianem o grubości 15 cm,
o współczynniku λ =0,040 (W/mK) do poziomu gruntu
STOLARKA OKIENNA I DRZWIOWA DO WYMIANY
SO12
SO4
Kształt okna
istniejący
Kształt okna
projektowany
Kształt okna
istniejący
SO7
Kształt okna
projektowany
Kształt okna
istniejący
SO8
Kształt okna
projektowany
Kształt okna
istniejący
SD2
Kształt okna
projektowany
Kształt drzwi
istniejący
Kształt drzwi
projektowany
Drzwi techniczne blaszane
ILOŚĆ SZTUK
2
WYMIAR W ŚWIETLE OŚCIEŻY
ILOŚĆ SZTUK
241/221
6
WYMIAR W ŚWIETLE OŚCIEŻY
248/221
ILOŚĆ SZTUK
6
WYMIAR W ŚWIETLE OŚCIEŻY
80/91
ILOŚĆ SZTUK
6
WYMIAR W ŚWIETLE OŚCIEŻY
82/51
ILOŚĆ SZTUK
1
WYMIAR W ŚWIETLE OŚCIEŻY
Audyty energetyczne
Projekty budynków energooszczędnych
Projekty termomodernizacji
http://www.termoprojekt.eu
90/210
ELEWACJA POŁUDN. WEW. - TERMOMODERNIZACJA
Inwestor
Uwaga!!!
*Projektowane okna o współczynniku Umax =1,3 W/m2K
*Projektowane drzwi o współczynniku Umax=1,7 W/m2K
*Wymiary stolarki podano orientacyjnie, okna i drzwi należy zmierzyć na budowie
Obiekt
Adres obiektu
Projektant
architektury:
Sprawdzający
architekturę:
Województwo Wielkopolskie
61-713 Poznań, ul. Aleja Niepodległości nr 34
Termomodernizacja budynku internatu Wielkopolskiego
Samorządowego Centrum Kształcenia Zawodowego i Ustawicznego
63-400 Ostrów Wlkp., ul. Limanowskiego 17, dz. nr 5/12,
6/4, 9/3, 10/8, 10/4
mgr inż. arch. Wojciech Gubała
UAN-7342/71/81 spec. architekt.
mgr inż. arch. Dagmara Doruch-Sobczak
74/WP-OIA/OKK/2010 spec. architekt.
Opracował:
Nr uprawnień:
mgr inż. Andrzej Cempel
Opracowała:
mgr inż. Agnieszka Dominik
Skala 1:100
BN-10.9/24/83 spec. konstr.budowl.
Data opracowania
Czerwiec 2015
Nr rys.
09