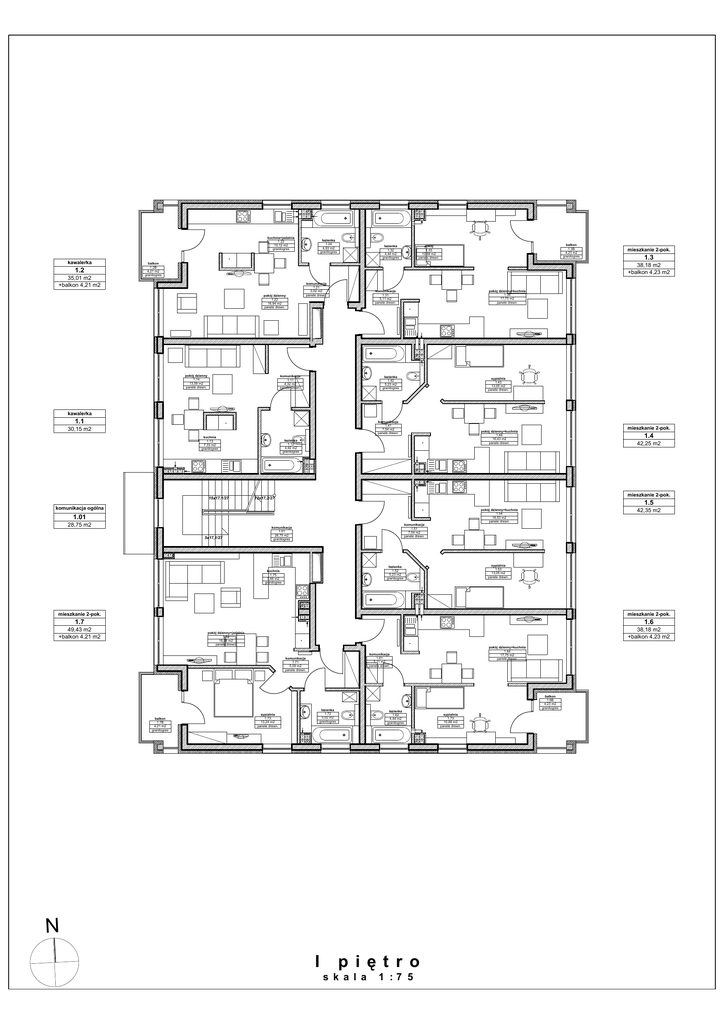
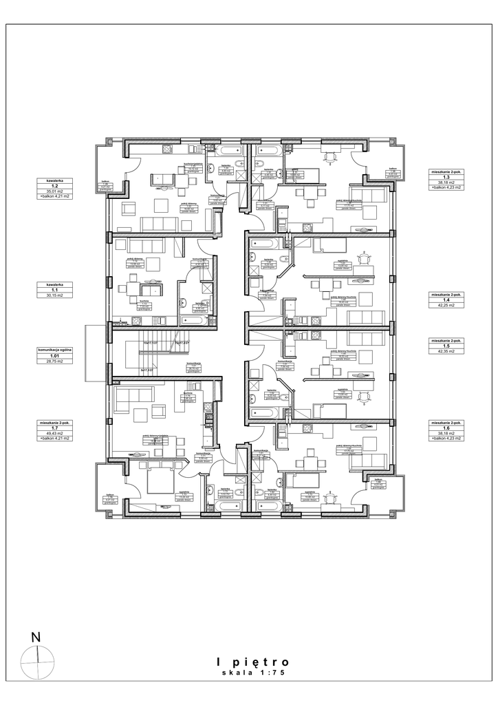
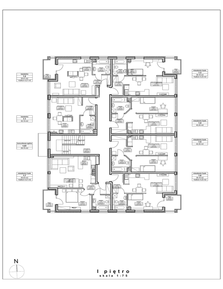
I pi ę tro

Transkrypt

I pi ę tro
1
K
K -1
1
1
0
kuchnia+jadalnia
1.23
10,12 m2
granitogres
kawalerka
1.2
35,01 m2
+balkon 4,21 m2
łazienka
1.24
4,93 m2
granitogres
łazienka
1.32
4,44 m2
granitogres
*
balkon
1.2B
4,21 m2
granitogres
1
balkon
1.3B
4,23 m2
granitogres
pokój
1.33
10,88 m2
panele drewn.
mieszkanie 2-pok.
1.3
38,18 m2
+balkon 4,23 m2
komunikacja
1.21
3,02 m2
panele drewn.
pokój dzienny
1.14
13,58 m2
panele drewn.
pokój dzienny+kuchnia
1.34
17,75 m2
panele drewn.
komunikacja
1.31
5,11 m2
panele drewn.
*
pokój dzienny
1.22
16,94 m2
panele drewn.
komunikacja
1.11
4,32 m2
panele drewn.
1
1
K
1
łazienka
1.42
5,23 m2
granitogres
sypialnia
1.43
13,05 m2
panele drewn.
kawalerka
1.1
komunikacja
1.41
7,54 m2
panele drewn.
*
30,15 m2
kuchnia
1.13
7,33 m2
granitogres
*
łazienka
1.12
4,92 m2
granitogres
mieszkanie 2-pok.
pokój dzienny+kuchnia
1.44
16,43 m2
panele drewn.
1.4
42,25 m2
1
K
-1
0
1
1
1
0
-1
15x17,1/27
K
1
1
1
mieszkanie 2-pok.
12x17,2/27
1.5
1.01
28,75 m2
5x17,1/27
-1
komunikacja
1.51
7,54 m2
panele drewn.
komunikacja
1.01
28,75 m2
granitogres
0
mieszkanie 2-pok.
1.7
K
0
1
1
K
1
1
1
mieszkanie 2-pok.
1.6
38,18 m2
+balkon 4,23 m2
*
*
pokój dzienny+jadalnia
1.74
18,58 m2
panele drewn.
pokój dzienny+kuchnia
1.64
17,75 m2
panele drewn.
komunikacja
1.61
5,11 m2
panele drewn.
komunikacja
1.71
5,09 m2
panele drewn.
balkon
1.7B
4,21 m2
granitogres
sypialnia
1.53
13,05 m2
panele drewn.
łazienka
1.52
5,23 m2
granitogres
kuchnia
1.75
7,46 m2
granitogres
49,43 m2
+balkon 4,21 m2
42,35 m2
pokój dzienny+kuchnia
1.54
16,53 m2
panele drewn.
*
komunikacja ogólna
łazienka
1.72
5,02 m2
granitogres
sypialnia
1.73
13,24 m2
panele drewn.
balkon
1.6B
4,23 m2
granitogres
łazienka
1.62
4,44 m2
granitogres
sypialnia
1.73
10,88 m2
panele drewn.
1
0
-1
1
0
K
K
-1
N
I
p i ę t r o
s k a l a
1 :7 5