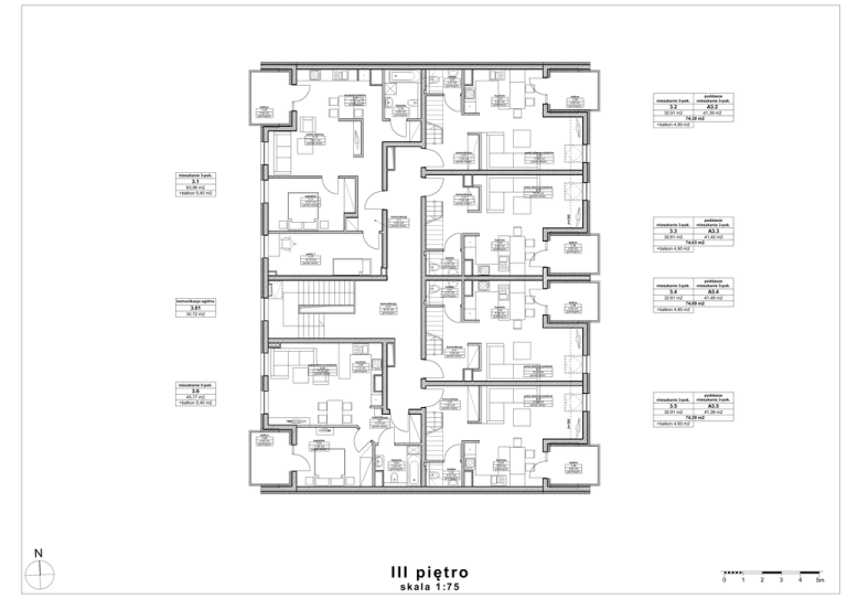
III piętro

Transkrypt

III piętro
*
toaleta
3.22
2,37 m2
granitogres
kuchnia+jadalnia
3.15
11,44 m2
granitogres
łazienka
3.16
4,90 m2
granitogres
balkon
3.1B
5,40 m2
granitogres
*
kuchnia
3.23
5,05 m2
granitogres
balkon
3.2B
4,90 m2
granitogres
mieszkanie 3-pok.
poddasze
mieszkania 3-pok.
3.2
A3.2
32,91 m2
41,39 m2
74,30 m2
+balkon 4,90 m2
pokój dzienny
3.14
13,01 m2
panele drewn.
pokój dzienny+jadalnia
3.24
17,86 m2
panele drewn.
komunikacja
3.21
7,63 m2
panele drewn.
mieszkanie 3-pok.
3.1
pokój dzienny+jadalnia
3.34
18,40 m2
panele drewn.
komunikacja
3.31
7,26 m2
panele drewn.
sypialnia
3.13
12,07 m2
panele drewn.
h=190
63,96 m2
+balkon 5,40 m2
komunikacja
3.11
9,44 m2
panele drewn.
*
pokój 1
3.12
13,10 m2
panele drewn.
mieszkanie 3-pok.
poddasze
mieszkania 3-pok.
3.3
A3.3
32,61 m2
kuchnia
3.33
4,58 m2
granitogres
balkon
3.3B
4,90 m2
granitogres
41,42 m2
74,03 m2
+balkon 4,90 m2
toaleta
3.32
2,37 m2
granitogres
toaleta
3.42
2,37 m2
granitogres
komunikacja ogólna
komunikacja
3.01
30,72 m2
granitogres
3.01
30,72 m2
mieszkanie 3-pok.
poddasze
mieszkania 3-pok.
3.4
A3.4
32,61 m2
*
balkon
3.4B
4,90 m2
granitogres
kuchnia
3.43
4,58 m2
granitogres
41,48 m2
74,09 m2
+balkon 4,90 m2
komunikacja
3.41
7,26 m2
panele drewn.
pokój dzienny+jadalnia
3.64
17,14 m2
panele drewn.
kuchnia
3.65
7,10 m2
granitogres
pokój dzienny+jadalnia
3.44
18,40 m2
panele drewn.
mieszkanie 2-pok.
3.6
pokój dzienny+jadalnia
3.54
17,86 m2
panele drewn.
komunikacja
3.51
7,63 m2
panele drewn.
*
45,77 m2
+balkon 5,40 m2
mieszkanie 3-pok.
poddasze
mieszkania 3-pok.
3.5
A3.5
32,91 m2
sypialnia
3.63
11,96 m2
panele drewn.
*
balkon
3.6B
5,40 m2
granitogres
h=190
komunikacja
3.61
4,73 m2
panele drewn.
41,38 m2
74,29 m2
+balkon 4,90 m2
łazienka
3.62
4,83 m2
granitogres
toaleta
3.52
2,37 m2
granitogres
kuchnia
3.53
5,05 m2
granitogres
balkon
3.5B
4,90 m2
granitogres
N
III piętro
s k a l a 1 :7 5
0
1
2
3
4
5m
poddasze
mieszkania 3-pok.
h=190
h=190
łazienka
A3.23
6,03 m2
granitogres
pokój 1
A3.22
10,67 m2
panele drewn.
A3.2
41,39 m2
sypialnia
A3.24
16,93 m2
panele drewn.
komunikacja
A 3.21
7,76 m2
panele drewn.
h=190
komunikacja
A3.31
7,76 m2
panele drewn.
pokój 1
A3.32
10,67 m2
panele drewn.
sypialnia
A3.34
16,57 m2
panele drewn.
poddasze
mieszkania 3-pok.
A3.3
41,42 m2
łazienka
A3.33
6,42 m2
granitogres
poddasze
mieszkania 3-pok.
A3.4
łazienka
A3.43
6,66 m2
granitogres
h=190
h=190
41,48 m2
pokój 1
A3.42
10,49 m2
panele drewn.
sypialnia
A3.44
16,57 m2
panele drewn.
komunikacja
A3.41
7,76 m2
panele drewn.
komunikacja
A3.51
7,76 m2
panele drewn.
poddasze
mieszkania 3-pok.
syialnia
A3.54
16,93 m2
panele drewn.
A3.5
41,38 m2
h=190
pokój 1
A3.52
10,49 m2
panele drewn.
h=190
łazienka
A3.53
6,20 m2
granitogres
N
poddasze
s k a l a 1 :7 5
0
1
2
3
4
5m