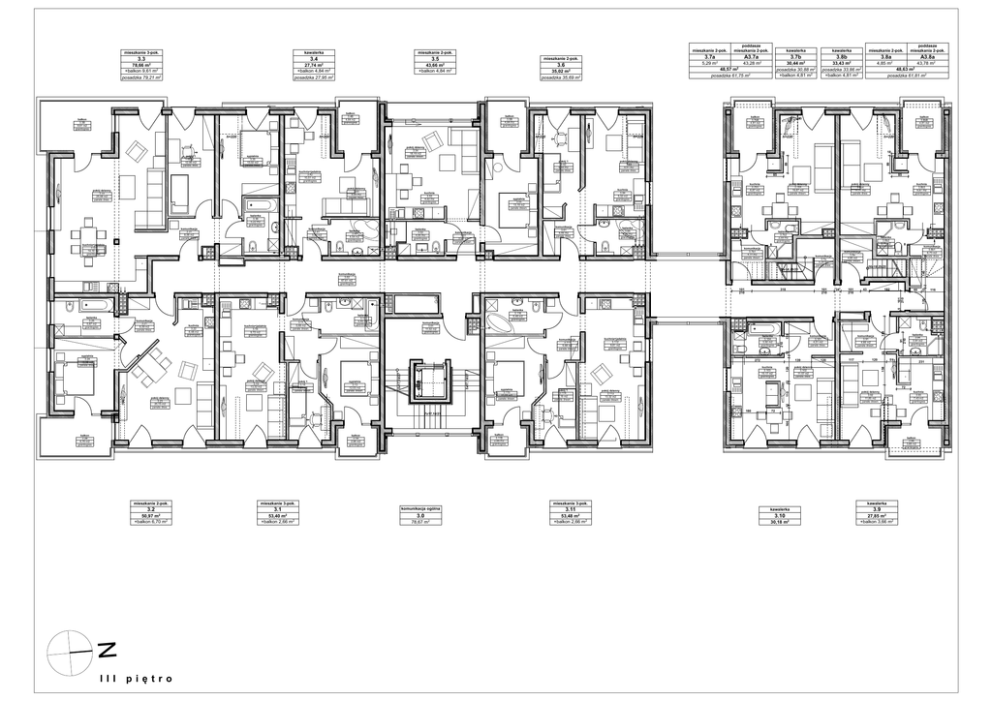
Pobierz PDF piętra

Transkrypt

Pobierz PDF piętra
mieszkanie 2-pok.
3.3
3.4
3.5
mieszkanie 2-pok.
78,66 m2
+balkon 9,61 m2
posadzka 79,21 m2
27,74 m2
+balkon 4,84 m2
posadzka 27,95 m2
43,66 m2
+balkon 4,84 m2
3.6
h=220
33,43 m2
posadzka 33,86 m2
+balkon 4,81 m2
balkon
3.8bB
4,81 m2
granitogres
h=220
h=220
h=220
18
89
*
kuchnia
3.64
5,32 m2
granitogres
pokój dzienny
3.8b4
17,11 m2
panele drew.
kuchnia
3.8b3
6,87 m2
granitogres
*
101
210
43
182
60
0
120
2
101
210
3
1
5
12
120
117
120
51
231
158
pokój dzienny
3.102
11,57 m2
panele drew.
12
120
kuchnia
3.103
10,17 m2
granitogres
72
110
pokój dzienny
3.113
13,32 m2
panele drewn.
pokój dzienny
3.92
11,85 m2
panele drewn.
180
kuchnia
3.93
7,43 m2
granitogres
72
166
7x17,18/27
181
pokój 1
3.114
7,19 m2
panele drewn.
12
sypialnia
3.115
12,03 m2
panele drewn.
*
5x17,18/27
5x17,18/27
pokój dzienny
3.23
20,15 m2
panele drew.
balkon
3.2B
6,70 m2
granitogres
balkon
3.11B
2,66 m2
granitogres
balkon
3.1B
2,66 m2
granitogres
mieszkanie 2-pok.
mieszkanie 3-pok.
3.2
3.1
2
50,97 m
+balkon 6,70 m2
N
III
piętro
53,40 m
+balkon 2,66 m2
balkon
3.9B
3,66 m2
granitogres
mieszkanie 3-pok.
komunikacja ogólna
2
3.0
78,67 m
3.11
2
2
1
K
2
2
3
3
2
91
210
170
12
91
210
139
łazienka
3.94
3,91 m2
granitogres
28
1
3
8
180
0
2
9
komunikacja
3.91
4,66 m2
panele drewn.
*
sypialnia
3.13
12,03 m2
panele drewn.
3
0
1
K
2
8
komunikacja
3.101
4,51 m2
panele drew.
*
pokój 1
3.14
7,21 m2
panele drewn.
116
2
łazienka
3.104
3,92 m2
granitogres
kuchnia+jadalnia
3.112
9,81 m2
granitogres
272
pokój dzienny
3.15
13,32 m2
panele drewn.
0
140
34
0
3
8
3
3
2
K
1
2
-1 0
łazienka
3.116
5,45 m2
granitogres
komunikacja
3.111
5,68 m2
panele drewn.
sypialnia
3.24
12,38 m2
panele drew.
101
210
2
komunikacja
3.01
11,02 m2
granitogres
-1 0
kuchnia+jadalnia
3.16
9,72 m2
granitogres
łazienka
3.12
5,45 m2
granitogres
3
kuchnia
3.22
6,48 m2
granitogres
komunikacja
3.11
5,68 m2
panele drewn.
0
komunikacja
3.21
6,09 m2
panele drew.
318
k
łazienka
3.25
5,87 m2
granitogres
3
0
1
8
k
8
3
3
*
3
3
1
2
2
2
2
k
0
0
0
1
1
2
*
3
0
0
1
K
1
0
k
3
3
101
210
1
1
16x18,25/25
16x18,25/25
komunikacja
3.02
67,61 m2
granitogres
-1
2
12
komunikacja
3.7a
5,29 m2
panele drew.
K
3
komunikacja
3.8b1
6,73 m2
panele drew.
komunikacja
3.8a
4,85 m2
panele drewn.
12
3
3
3
2
2
2
K
3
2
1
k
8
2
2
łazienka
3.8b2
2,71 m2
granitogres
8
komunikacja
3.7b1
4,11 m2
panele drewn.
3
0
3
1
3
3
0
2
2
3
1
K
łazienka
3.7b2
2,59 m2
granitogres
8
8
3
łazienka
3.65
4,22 m2
granitogres
3
3
2
2
komunikacja
3.61
6,48 m2
panele drew.
komunikacja
3.51
2,92 m2
panele drewn.
2
k
1
8
85
pokój dzienny
3.7b4
16,87 m2
panele drewn.
kuchnia
3.7b3
6,87 m2
granitogres
1
*
3
2
3
K
1
3
8
pokój dzienny
3.63
9,41 m2
panele drew.
sypialnia
3.55
13,19 m2
panele drewn.
łazienka
3.52
4,85 m2
granitogres
0
2
2
1
48,63 m
posadzka 61,81 m2
85
łazienka
3.44
4,54 m2
granitogres
43,78 m2
2
balkon
3.7bB
4,81 m2
granitogres
*
komunikacja
3.41
3,84 m2
panele drew.
A3.8a
4,85 m2
18
kuchnia
3.53
4,50 m2
granitogres
poddasze
mieszkania 2-pok.
*
komunikacja
3.31
8,58 m2
panele drew.
2
30,44 m2
posadzka 30,88 m2
+balkon 4,81 m2
48,57 m
posadzka 61,75 m2
pokój 1
3.62
9,58 m2
panele drew.
łazienka
3.36
5,22 m2
granitogres
2
43,28 m2
2
h=220
pokój dzienny
3.43
8,85 m2
panele drew.
pokój dzienny
3.33
25,68 m2
panele drew.
1
3.8a
pokój dzienny
3.54
18,19 m2
panele drewn.
kuchnia+jadalnia
3.42
10,51 m2
granitogres
k
mieszkanie 2-pok.
3.8b
balkon
3.5B
4,84 m2
granitogres
sypialnia
3.35
13,02 m2
panele drew.
kuchnia+jadalnia
3.32
14,10 m2
granitogres
kawalerka
3.7b
*
pokój 1
3.34
12,06 m2
panele drew.
kawalerka
A3.7a
2
h=220
poddasze
mieszkania 2-pok.
3.7a
5,29 m2
35,02 m2
posadzka 35,69 m2
balkon
3.4B
4,84 m2
granitogres
balkon
3.3B
9,61 m2
granitogres
mieszkanie 2-pok.
89
kawalerka
K
mieszkanie 3-pok.
53,48 m
+balkon 2,66 m2
kawalerka
kawalerka
3.9
3.10
27,85 m2
+balkon 3,66 m2
2
30,18 m