Posadzka z płytek

Transkrypt

Posadzka z płytek
A
A
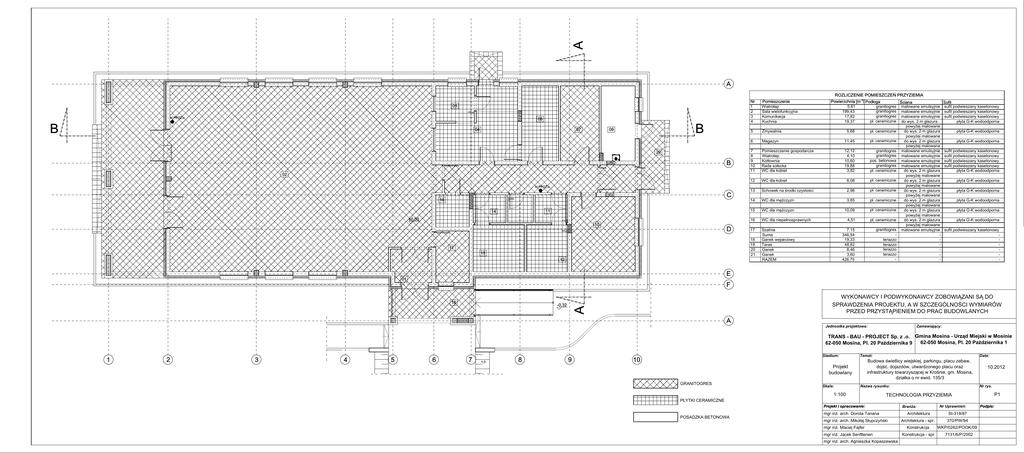
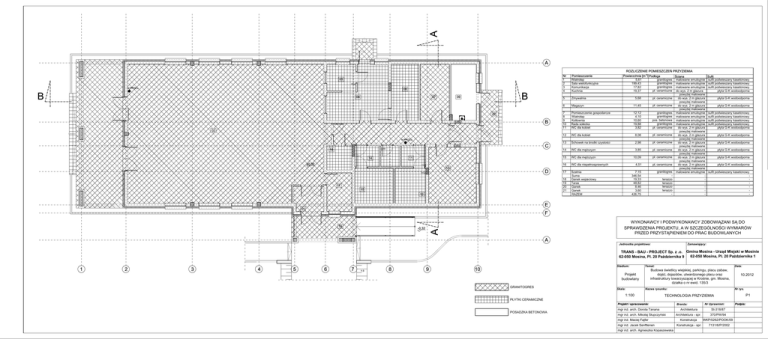
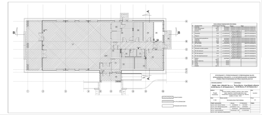
Nr
Pomieszczenie
05
17x12
25
06
B
07
B
09
drzwi ewakuacyjne
04
20
2
3
4
Sala wielofunkcyjna
Komunikacja
Kuchnia
5
Zmywalnia
6
Powierzchnia [m
5,61
199,43
17,82
19,37
02
malowane emulsyjnie
malowane emulsyjnie
malowane emulsyjnie
do wys. 2 m glazura
5,68
do wys. 2 m glazura
Magazyn
11,45
do wys. 2 m glazura
7
Pomieszczenie gospodarcze
11
WC dla kobiet
12,12
4,10
10,60
19,88
3,82
12
WC dla kobiet
8,08
do wys. 2 m glazura
2,98
do wys. 2 m glazura
3,85
do wys. 2 m glazura
10,09
do wys. 2 m glazura
4,51
do wys. 2 m glazura
B
EI60
granitogres
granitogres
granitogres
granitogres
granitogres
pos. betonowa
granitogres
malowane emulsyjnie
malowane emulsyjnie
malowane emulsyjnie
malowane emulsyjnie
do wys. 2 m glazura
Sufit
sufit podwieszany kasetonowy
sufit podwieszany kasetonowy
sufit podwieszany kasetonowy
sufit podwieszany kasetonowy
sufit podwieszany kasetonowy
sufit podwieszany kasetonowy
sufit podwieszany kasetonowy
25
C
EI60
17x12
16
11
14
17x12
10
D
17x12
17
15
12
17
Szatnia
Suma
19
20
21
Taras
Ganek
Ganek
RAZEM
granitogres
terazzo
terazzo
terazzo
terazzo
-
7,15
346,54
19,33
48,82
8,46
3,60
426,75
malowane emulsyjnie sufit podwieszany kasetonowy
-
E
01
F
18
A
-0,32
A
Jednostka projektowa:
TRANS - BAU - PROJECT Sp. z .o.
1
2
3
4
5
6
7
1:3
8
9
Stadium:
10
Temat:
Data:
Projekt
budowlany
GRANITOGRES
Skala:
10.2012
Nazwa rysunku:
1:100
Nr rys.
Projekt i opracowanie:
POSADZKA BETONOWA
P1
TECHNOLOGIA PRZYZIEMIA
Podpis:
Architektura
St-318/87
Architektura - spr.
370/PW/94
Konstrukcja
WKP/0262/POOK/09
Konstrukcja - spr.
7131/6/P/2002