Pełna koncepcja domu TYP 2 (plik , 421 kB)

Transkrypt

Pełna koncepcja domu TYP 2 (plik , 421 kB)
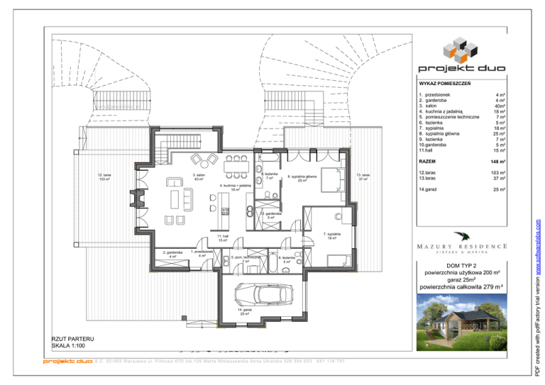
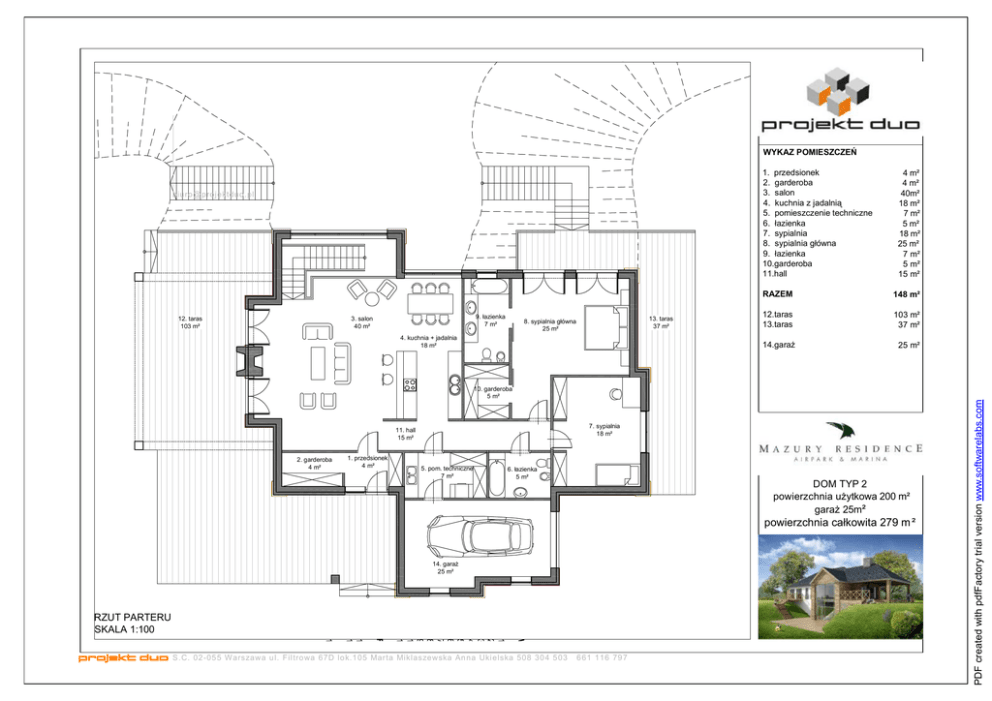
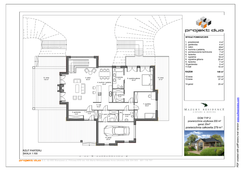
WYKAZ POMIESZCZEŃ
[email protected]
12. taras
103 m²
9. łazienka
7 m²
3. salon
40 m²
13. taras
37 m²
8. sypialnia główna
25 m²
4. kuchnia + jadalnia
18 m²
4 m²
4 m²
40m²
18 m²
7 m²
5 m²
18 m²
25 m²
7 m²
5 m²
15 m²
RAZEM
148 m²
12.taras
13.taras
103 m²
37 m²
14.garaż
25 m²
10. garderoba
5 m²
7. sypialnia
18 m²
11. hall
15 m²
2. garderoba
4 m²
1. przedsionek
4 m²
5. pom. techniczne
7 m²
6. łazienka
5 m²
DOM TYP 2
powierzchnia użytkowa 200 m²
garaż 25m²
powierzchnia całkowita 279 m ²
14. garaż
25 m²
RZUT PARTERU
SKALA 1:100
W
1
2
3
4
5
6
7
8
9
1
1
R
1
1
1
S .C. 02 -05 5 W arszawa u l. Fil tro wa 67D lo k.1 05 Mar ta Miklaszewska An na Uki elska 508 30 4 5 03
6 61 116 79 7
PDF created with pdfFactory trial version www.softwarelabs.com
1. przedsionek
2. garderoba
3. salon
4. kuchnia z jadalnią
5. pomieszczenie techniczne
6. łazienka
7. sypialnia
8. sypialnia główna
9. łazienka
10.garderoba
11.hall
WYKAZ POMIESZCZEŃ
15.łazienka
16.sypialnia
17.pokoj rodzinny
[email protected]
RAZEM
4 m²
12 m²
36 m²
52 m²
16. sypialnia /
pracownia
12 m²
15. łazienka
4 m²
DOM TYP 2
powierzchnia użytkowa 200 m²
garaż 25m²
powierzchnia całkowita 279 m ²
RZUT PARTERU
SKALA 1:100
S .C. 02 -05 5 W arszawa u l. Fil tro wa 67D lo k.1 05 Mar ta Miklaszewska An na Uki elska 508 30 4 5 03
6 61 116 79 7
PDF created with pdfFactory trial version www.softwarelabs.com
17. pokój rodzinny
36 m²
DOM TYP 2
powierzchnia użytkowa 200 m²
garaż 25m²
powierzchnia całkowita 279 m ²
ELWACJE FRONTOWA I TYLNIA
SKALA 1:100
S .C. 02 -05 5 W arszawa u l. Fil tro wa 67D lo k.1 05 Mar ta Miklaszewska An na Uki elska 508 30 4 5 03
6 61 116 79 7
PDF created with pdfFactory trial version www.softwarelabs.com
[email protected]
DOM TYP 2
powierzchnia użytkowa 200 m²
garaż 25m²
powierzchnia całkowita 279 m ²
ELEWACJE BOCZNE
SKALA 1:100
S .C. 02 -05 5 W arszawa u l. Fil tro wa 67D lo k.1 05 Mar ta Miklaszewska An na Uki elska 508 30 4 5 03
6 61 116 79 7
PDF created with pdfFactory trial version www.softwarelabs.com
[email protected]
DOM TYP 2
powierzchnia użytkowa 200 m²
garaż 25m²
powierzchnia całkowita 279 m ²
WIDOK OD FRONTU
S .C. 02 -05 5 W arszawa u l. Fil tro wa 67D lo k.1 05 Mar ta Miklaszewska An na Uki elska 508 30 4 5 03
6 61 116 79 7
PDF created with pdfFactory trial version www.softwarelabs.com
[email protected]
DOM TYP 2
powierzchnia użytkowa 200 m²
garaż 25m²
powierzchnia całkowita 279 m ²
WIDOK OD TYŁU
S .C. 02 -05 5 W arszawa u l. Fil tro wa 67D lo k.1 05 Mar ta Miklaszewska An na Uki elska 508 30 4 5 03
6 61 116 79 7
PDF created with pdfFactory trial version www.softwarelabs.com
[email protected]