Pełna koncepcja domu TYP 1

Transkrypt

Pełna koncepcja domu TYP 1
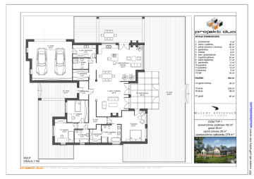
WYKAZ POMIESZCZEŃ
17. garaż
46 m²
[email protected]
6. pom. techniczne
9 m²
5. toaleta
5 m²
3. pokój rodzinny z
kuchnią
42 m²
4. garderoba
5 m²
RAZEM:
14.ogród zimowy
15. taras
58 m²
2. salon z jadalnią
38 m²
1. przedsionek
5 m²
14. ogród zimowy
28 m²
16. taras
225m²
5 m²
38 m²
42 m²
5 m²
5 m²
9 m²
24 m²
11 m²
5 m²
13 m²
13 m²
5 m²
18 m²
193 m²
28 m²
15.taras
16.taras
225 m²
58 m²
17.garaż
46 m²
11. sypiania
13 m²
13. hall
18 m²
DOM TYP 1
powierzchnia użytkowa 193 m²
garaż 46 m²
ogród zimowy 28 m ²
7. sypiania
24 m²
10. sypiania
13 m²
12. łazienka
5 m²
9. garderoba
5 m²
8. salon kąpielowy
11 m²
powierzchnia całkowita 279 m ²
RZUT
SKALA 1:100
S .C. 02 -05 5 W arszawa u l. Fil tro wa 67D lo k.1 05 Mar ta Miklaszewska An na Uki elska 508 30 4 5 03
6 61 116 79 7
PDF created with pdfFactory trial version www.softwarelabs.com
1. przedsionek
2. salon z jadalnią
3. pokój rodzinny z kuchnią
4. garderoba
5. toaleta
6. pom. gospodarcze
7. sypialnia główna
8. salon kąpielowy
9. garderoba
10.sypialnia
11.sypialnia
12.łazienka
13.hall
[email protected]
DOM TYP 1
powierzchnia użytkowa 193 m²
garaż 46 m²
ogród zimowy 28 m ²
powierzchnia całkowita 279 m ²
ELEWACJA TYLNA
SKALA 1:100
S .C. 02 -05 5 W arszawa u l. Fil tro wa 67D lo k.1 05 Mar ta Miklaszewska An na Uki elska 508 30 4 5 03
6 61 116 79 7
PDF created with pdfFactory trial version www.softwarelabs.com
ELEWACJA FRONTOWA
SKALA 1:100
[email protected]
DOM TYP 1
powierzchnia użytkowa 193 m²
garaż 46 m²
ogród zimowy 28 m ²
powierzchnia całkowita 279 m ²
ELEWACJA BOCZNA
SKALA 1:100
S .C. 02 -05 5 W arszawa u l. Fil tro wa 67D lo k.1 05 Mar ta Miklaszewska An na Uki elska 508 30 4 5 03
6 61 116 79 7
PDF created with pdfFactory trial version www.softwarelabs.com
ELEWACJA BOCZNA
SKALA 1:100
DOM TYP 1
powierzchnia użytkowa 193 m²
garaż 46 m²
ogród zimowy 28 m ²
powierzchnia całkowita 279 m ²
WIDOK Z PRZODU
S .C. 02 -05 5 W arszawa u l. Fil tro wa 67D lo k.1 05 Mar ta Miklaszewska An na Uki elska 508 30 4 5 03
6 61 116 79 7
PDF created with pdfFactory trial version www.softwarelabs.com
[email protected]
DOM TYP 1
powierzchnia użytkowa 193 m²
garaż 46 m²
ogród zimowy 28 m ²
powierzchnia całkowita 279 m ²
WIDOK Z TYŁU
S .C. 02 -05 5 W arszawa u l. Fil tro wa 67D lo k.1 05 Mar ta Miklaszewska An na Uki elska 508 30 4 5 03
6 61 116 79 7
PDF created with pdfFactory trial version www.softwarelabs.com
[email protected]