Pełna koncepcja domu TYP 6 (plik , 486 kB)

Transkrypt

Pełna koncepcja domu TYP 6 (plik , 486 kB)
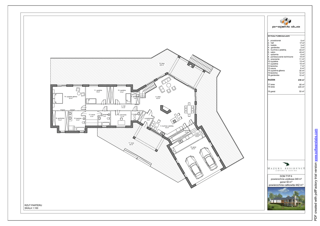
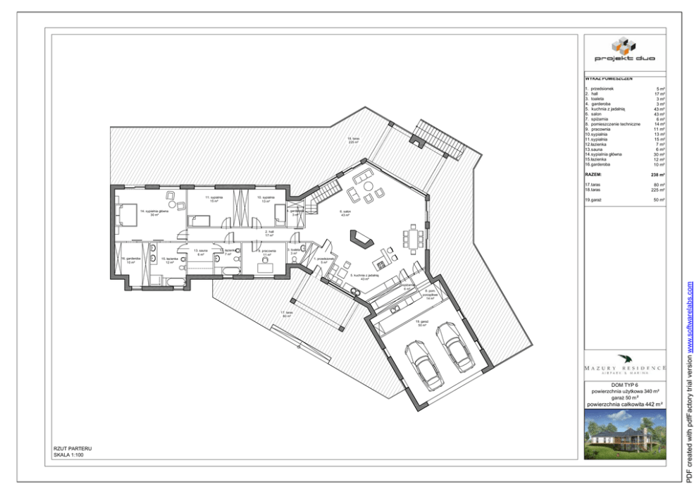
WYKAZ POMIESZCZEŃ
1. przedsionek
2. hall
3. toaleta
4. garderoba
5. kuchnia z jadalnią
6. salon
7. spiżarnia
8. pomieszczenie techniczne
9. pracownia
10.sypialnia
11.sypialnia
12.łazienka
13.sauna
14.sypialnia główna
15.łazienka
16.garderoba
18. taras
225 m²
11. sypialnia
15 m²
10. sypialnia
13 m²
4. garderoba
3 m²
14. sypialnia główna
30 m²
5 m²
17 m²
3 m²
3 m²
43 m²
43 m²
6 m²
14 m²
11 m²
13 m²
15 m²
7 m²
6 m²
30 m²
12 m²
10 m²
RAZEM:
238 m²
17.taras
18.taras
80 m²
225 m²
19.garaż
50 m²
6. salon
43 m²
2. hall
17 m²
13. sauna
6 m²
16. garderoba
10 m²
12. łazienka
7 m²
9. pracownia
11 m²
3. toaleta
3 m²
15. łazienka
12 m²
1. przedsionek
5 m²
7. spiżarnia
6 m²
8. pom.
porządkwe
14 m²
17. taras
80 m²
19. garaż
50 m²
DOM TYP 6
powierzchnia użytkowa 340 m²
garaż 50 m ²
powierzchnia całkowita 442 m²
RZUT PARTERU
SKALA 1:100
PDF created with pdfFactory trial version www.softwarelabs.com
5. kuchnia z jadalnią
43 m²
WYKAZ POMIESZCZEŃ
20.pokój rodzinny z aneksem
kuchennym
21.łazienka
taras
94,26 m²
[email protected]
RAZEM:
97 m²
5 m²
102 m²
21. łazienka
5 m²
DOM TYP 6
powierzchnia użytkowa 340 m²
garaż 50 m²
powierzchnia całkowita 442 m ²
RZUT KONDYGNACJI -I
SKALA 1:100
S .C. 02 -05 5 W arszawa u l. Fil tro wa 67D lo k.1 05 Mar ta Miklaszewska An na Uki elska 508 30 4 5 03
6 61 116 79 7
PDF created with pdfFactory trial version www.softwarelabs.com
20. pokój rodzinny z
aneksem kuchennym
97 m²
DOM TYP 6
powierzchnia użytkowa 340 m²
garaż 50 m²
powierzchnia całkowita 442 m ²
ELEWACJA BOCZNA
SKALA 1:100
PDF created with pdfFactory trial version www.softwarelabs.com
ELEWACJA BOCZNA
SKALA 1:100
DOM TYP 6
powierzchnia użytkowa 340 m²
garaż 50 m²
powierzchnia całkowita 442 m ²
ELEWACJA TYLNIA
SKALA 1:100
PDF created with pdfFactory trial version www.softwarelabs.com
ELEWACJA FRONTOWA
SKALA 1:100
DOM TYP 6
powierzchnia użytkowa 340 m²
garaż 50 m²
powierzchnia całkowita 442 m ²
WIDOK Z PRZODU
S .C. 02 -05 5 W arszawa u l. Fil tro wa 67D lo k.1 05 Mar ta Miklaszewska An na Uki elska 508 30 4 5 03
6 61 116 79 7
PDF created with pdfFactory trial version www.softwarelabs.com
[email protected]
DOM TYP 6
powierzchnia użytkowa 340 m²
garaż 50 m²
powierzchnia całkowita 442 m ²
WIDOK Z TYŁU
S .C. 02 -05 5 W arszawa u l. Fil tro wa 67D lo k.1 05 Mar ta Miklaszewska An na Uki elska 508 30 4 5 03
6 61 116 79 7
PDF created with pdfFactory trial version www.softwarelabs.com
[email protected]