Wariant 1 - HomeKONCEPT

Transkrypt

Wariant 1 - HomeKONCEPT
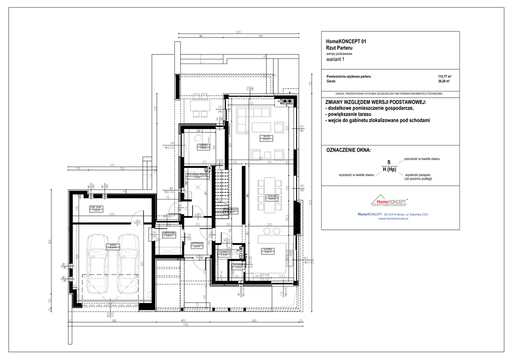
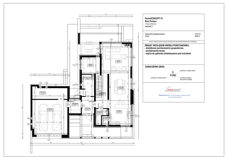
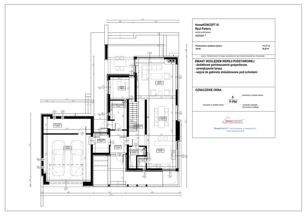
HomeKONCEPT 01
Rzut Parteru
wersja podstawowa
wariant 1
Powierzchnia użytkowa parteru:
Garaż:
113,77 m²
36,28 m²
UWAGA: PREZENTOWANY RYSUNEK SZCZEGÓŁOWY NIE STANOWI DOKUMENTACJI TECHNICZNEJ
ZMIANY WZGLĘDEM WERSJI PODSTAWOWEJ:
- dodatkowe pomieszczenie gospodarcze,
- powiększenie tarasu
- wejcie do gabinetu zlokalizowane pod schodami
SALON
28,09 m²
GABINET
8,98 m²
OZNACZENIE OKNA:
S
H (Hp)
wysokość w świetle otworu
KOTŁOWNIA/ PRALNIA
7,76 m²
szerokość w świetle otworu
wysokość parapetu
(od poziomu podłogi)
JADALNIA
16,87m²
POM. GOSP.
11,62 m²
KOMUNIKACJA
10,86 m²
Home KONCEPT
30-314 Kraków, ul. Dworska 23/1
www.homekoncept.pl
GARDEROBA
4,89 m²
GARAŻ
36,28 m²
WIATROŁAP
6,23 m²
KUCHNIA
12,95 m²
ŁAZIENKA
3,79 m²
SPIŻARNIA
1,73 m²
HomeKONCEPT 01
Rzut PODDASZA
wersja podstawowa
wariant 1
Powierzchnia użytkowa poddasza:
Powierzchnia podłogi:
91,59 m²
110,77 m²
UWAGA: PREZENTOWANY RYSUNEK SZCZEGÓŁOWY NIE STANOWI DOKUMENTACJI TECHNICZNEJ
SYPIALNIA
20,61 m² (23,15 m² )
GARDEROBA
3,90 m² (5,68 m²)
ZMIANY WZGLĘDEM WERSJI PODSTAWOWEJ:
- dodatkowe pomieszczenie gospodarcze,
- powiększenie tarasu
- wejcie do gabinetu zlokalizowane pod schodami
ŁAZIENKA
3,79 m² (5,52m² )
SYPIALNIA
12,90 m² (16,01 m² )
Powierzchnia użytkowa liczona:
<140
~ 0%
140-220 ~ 50%
> 220 ~ 100%
KOMUNIKACJA
11,54 m²
ŁAZIENKA
6,76 m² (9,91m² )
HomeKONCEPT
30-314 Kraków, ul. Dworska 23/1
www.homekoncept.pl
SYPIALNIA
16,15 m² (19,12m² )
SYPIALNIA
15,94 m² (19,84m² )