Wariant 1 - HomeKONCEPT

Transkrypt

Wariant 1 - HomeKONCEPT
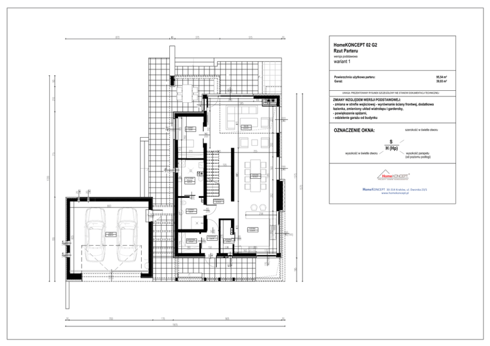
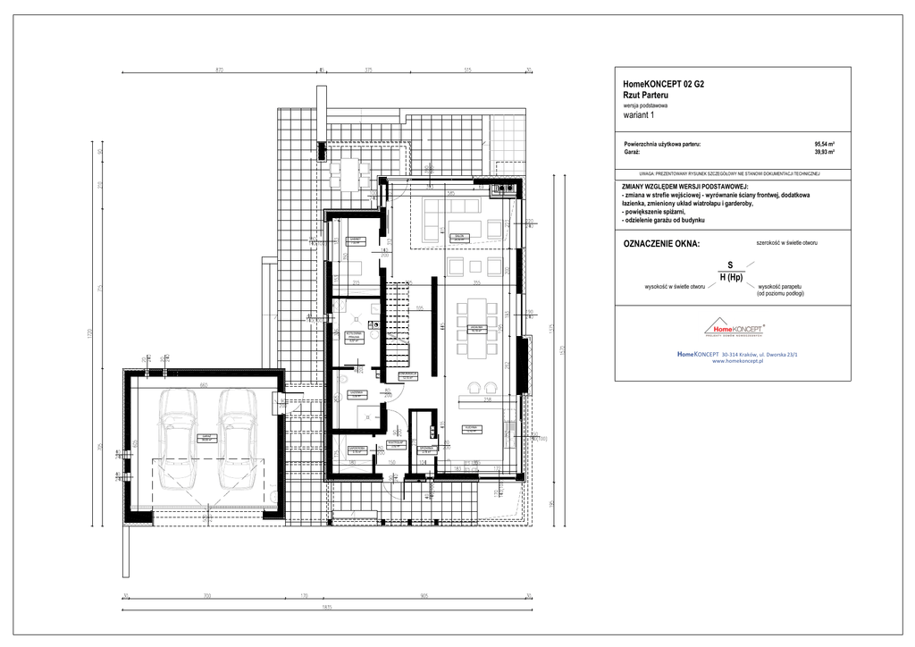
HomeKONCEPT 02 G2
Rzut Parteru
wersja podstawowa
wariant 1
Powierzchnia użytkowa parteru:
Garaż:
95,54 m²
39,93 m²
UWAGA: PREZENTOWANY RYSUNEK SZCZEGÓŁOWY NIE STANOWI DOKUMENTACJI TECHNICZNEJ
ZMIANY WZGLĘDEM WERSJI PODSTAWOWEJ:
- zmiana w strefie wejściowej - wyrównanie ściany frontwej, dodatkowa
łazienka, zmieniony układ wiatrołapu i garderoby,
- powiększenie spiżarni,
- odzielenie garażu od budynku
SALON
26,50 m²
GABINET
7,53 m²
OZNACZENIE OKNA:
szerokość w świetle otworu
S
H (Hp)
wysokość w świetle otworu
wysokość parapetu
(od poziomu podłogi)
JADALNIA
16,19 m²
KOTŁOWNIA
PRALNIA
6,57 m²
Home KONCEPT
30-314 Kraków, ul. Dworska 23/1
www.homekoncept.pl
KOMUNIKACJA
12,10 m²
ŁAZIENKA
5,69 m²
KUCHNIA
12,43 m²
GARAŻ
39,93 m²
GARDEROBA
3,15 m²
WIATROŁAP
2,62 m²
SPIŻARNIA
2,76 m²
HomeKONCEPT 02 G2
Rzut Parteru
wersja podstawowa
wariant 1
Powierzchnia użytkowa poddasza:
Powierzchnia podłogi:
68,66 m²
84,62 m²
GARDEROBA
2,93 m² (4,26) m²
UWAGA: PREZENTOWANY RYSUNEK SZCZEGÓŁOWY NIE STANOWI DOKUMENTACJI TECHNICZNEJ
ZMIANY WZGLĘDEM WERSJI PODSTAWOWEJ:
- zmiana w strefie wejściowej - wyrównanie ściany frontwej, dodatkowa
łazienka, zmieniony układ wiatrołapu i garderoby,
- powiększenie spiżarni,
- odzielenie garażu od budynku
ŁAZIENKA
6,72 m² (9,90) m²
POKÓJ 1-os.
12,25 m² (15,36) m²
KOMUNIKACJA
12,31 m²
Powierzchnia użytkowa liczona:
<140
~ 0%
140-220 ~ 50%
> 220 ~ 100%
ŁAZIENKA
3,22 m² (4,69) m²
HomeKONCEPT
30-314 Kraków, ul. Dworska 23/1
www.homekoncept.pl
POKÓJ 1-os.
15,34 m² (19,24) m²
SYPIALNIA 2-os.
15,89 m² (18,86) m²
TARAS
46,82 m²