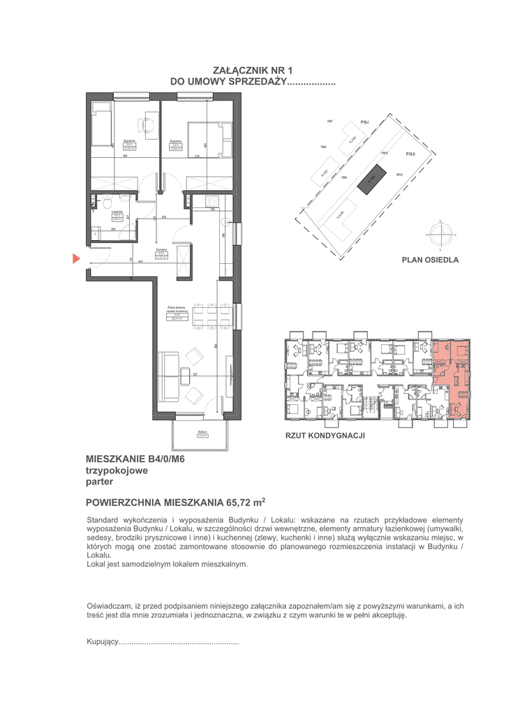
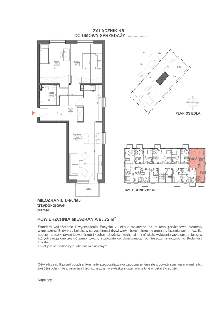
MIESZKANIE B4/0/M6 trzypokojowe parter POWIERZCHNIA

Transkrypt

MIESZKANIE B4/0/M6 trzypokojowe parter POWIERZCHNIA
ZAŁĄCZNIK NR 1
DO UMOWY SPRZEDAŻY..................
/B 2
P19-I
2 /I
Sypialnia
0.6.4
12,62 m2
PL
Sypialnia
0.6.3
12,03 m2
400
400
758/7
305
758/8
758/10
P19-II
/B 1
319
PL
1 /I
1951/2
PL
1 /I
I/B
4
758/9
k
k
234
PL
215
3 /I
I/B
3
182
207
Łazienka
0.6.2
3,69 m2
N
W
151
368
P
200
Korytarz
0.6.1
11,37 m2
E
S
PLAN OSIEDLA
442
20
L
584
Pokój dzienny
+aneks kuchenny
0.6.6
26,01 m2
k
P
k
L
L
337
k
P
L
k
P
k
k
P
k
L
L
G
k
G
P
G
L
k
W
L
P
k
k
P
k
P
k
L
k
Balkon
3,03 m2
RZUT KONDYGNACJI
MIESZKANIE B4/0/M6
trzypokojowe
parter
POWIERZCHNIA MIESZKANIA 65,72 m2
Standard wykończenia i wyposażenia Budynku / Lokalu: wskazane na rzutach przykładowe elementy
wyposażenia Budynku / Lokalu, w szczególności drzwi wewnętrzne, elementy armatury łazienkowej (umywalki,
sedesy, brodziki prysznicowe i inne) i kuchennej (zlewy, kuchenki i inne) służą wyłącznie wskazaniu miejsc, w
których mogą one zostać zamontowane stosownie do planowanego rozmieszczenia instalacji w Budynku /
Lokalu.
Lokal jest samodzielnym lokalem mieszkalnym.
Oświadczam, iż przed podpisaniem niniejszego załącznika zapoznałem/am się z powyższymi warunkami, a ich
treść jest dla mnie zrozumiała i jednoznaczna, w związku z czym warunki te w pełni akceptuję.
Kupujący........................................................