geodezyjna inwentaryzacja lokali

Transkrypt

geodezyjna inwentaryzacja lokali
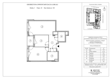
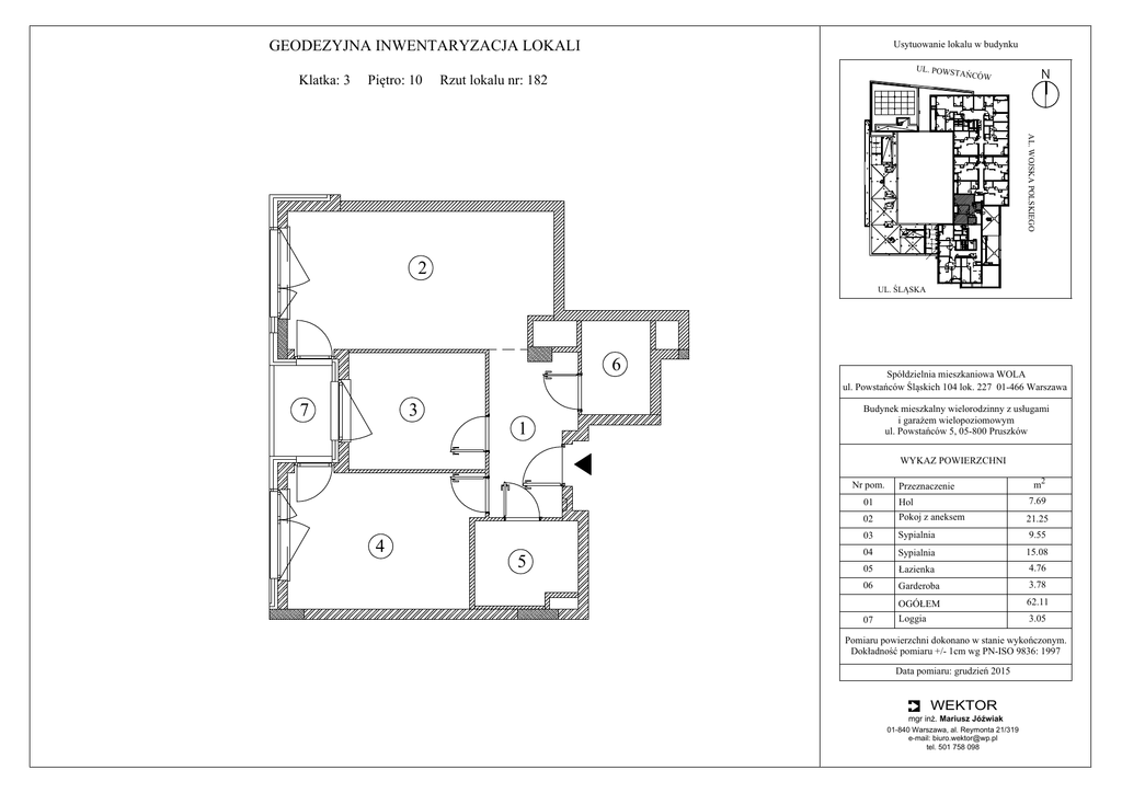
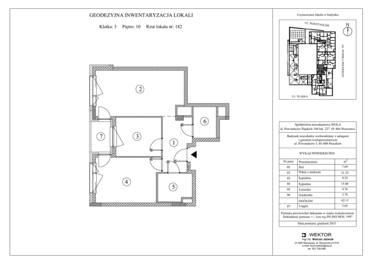
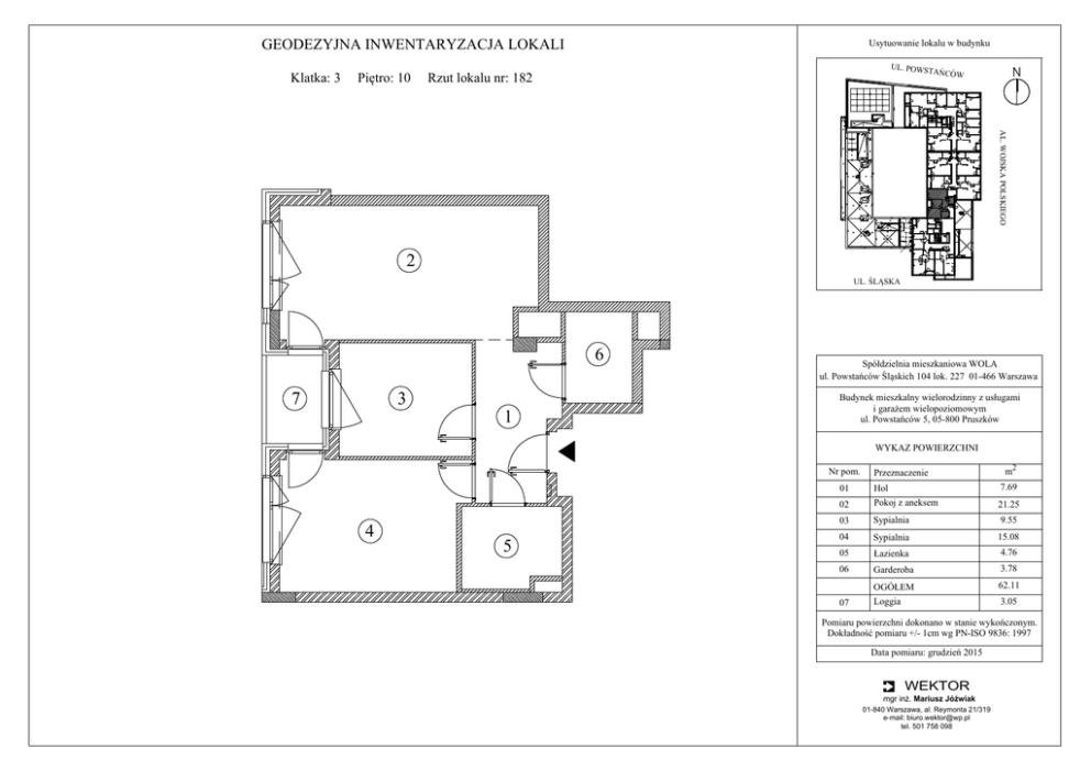
GEODEZYJNA INWENTARYZACJA LOKALI
Piętro: 10
UL. POWST
Rzut lokalu nr: 182
AŃCÓW
AL. WOJSKA POLSKIEGO
F
Klatka: 3
Usytuowanie lokalu w budynku
2
UL. ŚLĄSKA
6
3
7
1
Spółdzielnia mieszkaniowa WOLA
ul. Powstańców Śląskich 104 lok. 227 01-466 Warszawa
Budynek mieszkalny wielorodzinny z usługami
i garażem wielopoziomowym
ul. Powstańców 5, 05-800 Pruszków
WYKAZ POWIERZCHNI
Nr pom.
4
5
Przeznaczenie
m2
01
Hol
7.69
02
Pokoj z aneksem
21.25
03
Sypialnia
9.55
04
Sypialnia
15.08
05
Łazienka
4.76
06
Garderoba
3.78
OGÓŁEM
62.11
Loggia
3.05
07
Pomiaru powierzchni dokonano w stanie wykończonym.
Dokładność pomiaru +/- 1cm wg PN-ISO 9836: 1997
Data pomiaru: grudzień 2015
WEKTOR
mgr inż. Mariusz Jóźwiak
01-840 Warszawa, al. Reymonta 21/319
e-mail: [email protected]
tel. 501 758 098