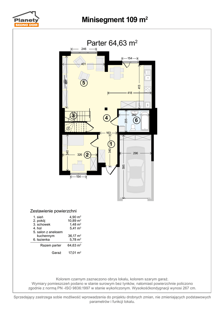
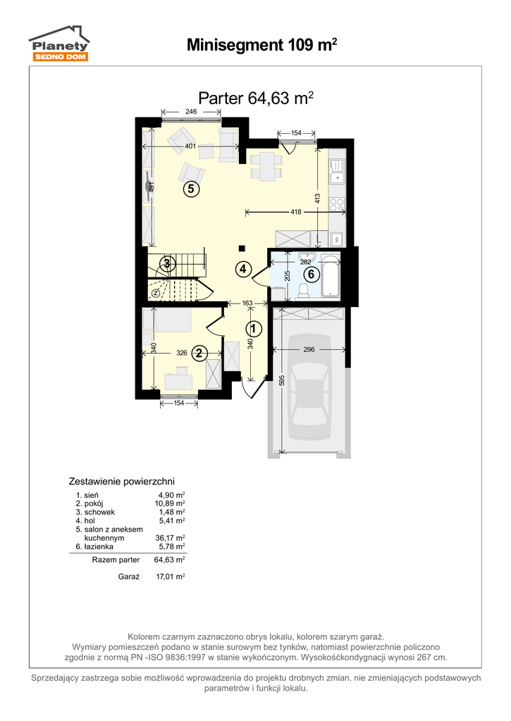
Parter 64,63 m2 Minisegment 109 m2

Transkrypt

Parter 64,63 m2 Minisegment 109 m2
Minisegment 109 m2
246
Parter 64,63 m2
154
401
413
491
5
418
3
282
205
4
6
z
163
2
296
595
326
340
340
1
154
Zestawienie powierzchni
1. sień 2. pokój
3. schowek
4. hol
5. s alon z aneksem
kuchennym
6. łazienka
4,90 m2
10,89 m2
1,48 m2
5,41 m2
Razem parter
64,63 m2
Garaż
17,01 m2
36,17 m2
5,78 m2
Kolorem czarnym zaznaczono obrys lokalu, kolorem szarym garaż.
Wymiary pomieszczeń podano w stanie surowym bez tynków, natomiast powierzchnie policzono
zgodnie z normą PN -ISO 9836:1997 w stanie wykończonym. Wysokośćkondygnacji wynosi 267 cm.
Sprzedający zastrzega sobie możliwość wprowadzenia do projektu drobnych zmian, nie zmieniających podstawowych
parametrów i funkcji lokalu.
Minisegment 109 m2
Piętro 31,39 m2
154
353
384
10
11
205
8
353
9
326
154
Zestawienie powierzchni
8. pokój 9. pokój 10. hol
11. schody
13,30 m2
11,30 m2
3,19 m2
3,60 m2
Razem piętro
31,39 m2
Kolorem czarnym zaznaczono obrys lokalu, kolorem szarym garaż.
Wymiary pomieszczeń podano w stanie surowym bez tynków, natomiast powierzchnie policzono
zgodnie z normą PN -ISO 9836:1997 w stanie wykończonym. Wysokośćkondygnacji wynosi 267 cm.
Sprzedający zastrzega sobie możliwość wprowadzenia do projektu drobnych zmian, nie zmieniających podstawowych
parametrów i funkcji lokalu.
Minisegment 109 m2
Poddasze 13,36 m2
154
h<190 cm
365
h=54 cm
384
13
200
h<220 cm
h<220 cm
12
353
h<190 cm
326
h=54 cm
154
Zestawienie powierzchni
12. łazienka
13. pokój
5,00 m2 (7,64 m2 podłogi)
8,36 m2 (16,68 m2 podłogi)
Razem poddasze 13,36 m2 (24,32 m2 podłogi)
Kolorem czarnym zaznaczono obrys lokalu, kolorem szarym garaż.
Wymiary pomieszczeń podano w stanie surowym bez tynków, natomiast powierzchnie policzono
zgodnie z normą PN -ISO 9836:1997 w stanie wykończonym. Wysokośćkondygnacji wynosi 267 cm.
Sprzedający zastrzega sobie możliwość wprowadzenia do projektu drobnych zmian, nie zmieniających podstawowych
parametrów i funkcji lokalu.