Pi m plus poddasze 16,50 m i gara m ętro

Transkrypt

Pi m plus poddasze 16,50 m i gara m ętro
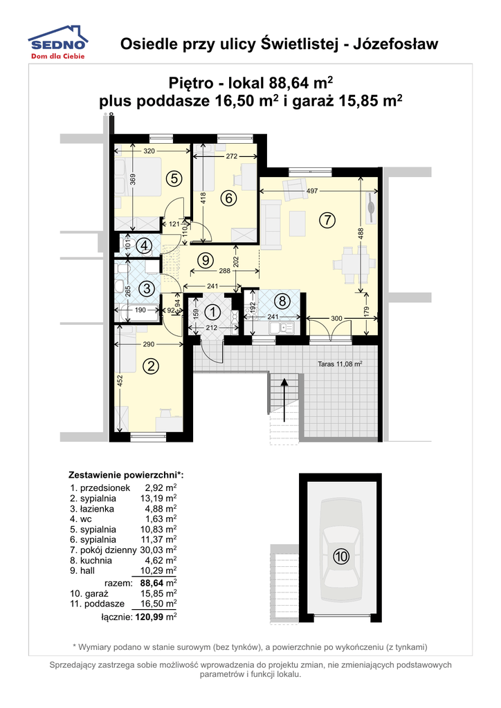
Osiedle przy ulicy Świetlistej - Józefosław
Piętro - lokal 88,64 m2
plus poddasze 16,50 m2 i garaż 15,85 m2
320
272
418
369
5
101
7
488
110
121
497
6
4
202
9
1
8
192
92
159
190
241
300
179
241
3
94
265
288
212
290
Taras 11,08 m2
452
2
Zestawienie powierzchni*:
1. przedsionek
2,92 m2
2. sypialnia
13,19 m2
3. łazienka
4,88 m2
4. wc
1,63 m2
5. sypialnia
10,83 m2
6. sypialnia
11,37 m2
7. pokój dzienny 30,03 m2
8. kuchnia
4,62 m2
9. hall
10,29 m2
razem: 88,64 m2
10. garaż
15,85 m2
11. poddasze
16,50 m2
łącznie: 120,99 m2
10
* Wymiary podano w stanie surowym (bez tynków), a powierzchnie po wykończeniu (z tynkami)
Sprzedający zastrzega sobie możliwość wprowadzenia do projektu zmian, nie zmieniających podstawowych
parametrów i funkcji lokalu.
Osiedle przy ulicy Świetlistej - Józefosław
Poddasze lokalu 88,64 m2
(powierzchnia o wys.od 150 cm do 200 cm = 16,50 m2)
h = 0 cm
601
260
powierzchnia: 15,60 m2
okno 80 x 120 cm
h = 200 cm
powierzchnia: 16,50 m2
280
h = 152 cm
wyłaz strychowy
h = 200 cm
powierzchnia: 15,35 m2
260
h = 152 cm
h = 0 cm
* Wymiary podano w stanie surowym (bez tynków), a powierzchnie po wykończeniu (z tynkami)
Sprzedający zastrzega sobie możliwość wprowadzenia do projektu zmian, nie zmieniających podstawowych
parametrów i funkcji lokalu.