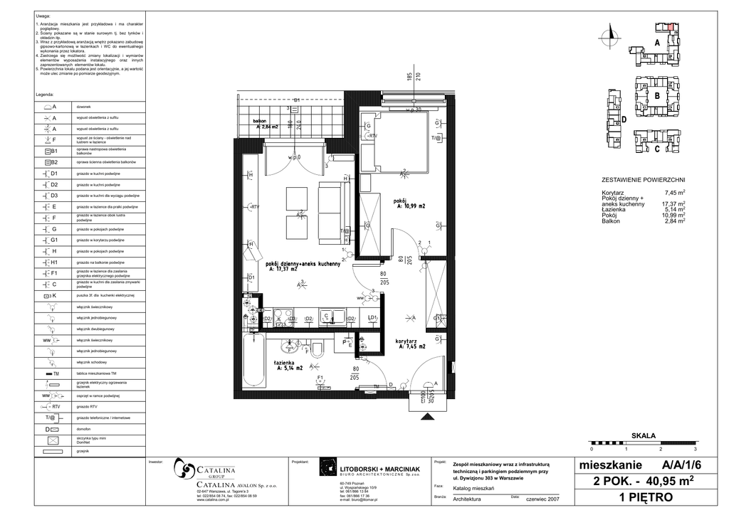
A/A/1/6 1 PIĘTRO mieszkanie 2 POK.

Transkrypt

A/A/1/6 1 PIĘTRO mieszkanie 2 POK.
Uwaga:
1. AranŜacja mieszkania jest przykładowa i ma charakter
poglądowy.
2. Ściany pokazane są w stanie surowym tj. bez tynków i
okładzin itp.
3. Wraz z przykładową aranŜacją wnętrz pokazano zabudowę
gipsowo-kartonową w łazienkach i WC do ewentualnego
wykonania przez lokatora.
4. Zastrzega się moŜliwość zmiany lokalizacji i wymiarów
elementów wyposaŜenia instalacyjnego oraz innych
zaprezentowanych elementów lokalu.
5. Powierzchnia lokalu podana jest orientacyjnie, a jej wartość
moŜe ulec zmianie po pomiarze geodezyjnym.
185
210
A
Legenda:
B
B1
A
wypust oświetlenia z sufitu
A
wypust oświetlenia z sufitu
F
wypust ze ściany - oświetlenie nad
lustrem w łazience
B1
B2
oprawa ścienna oświetlenia balkonów
gniazdo w kuchni podwµjne
D2
gniazdo w kuchni podwµjne
D3
gniazdo w kuchni dla wyciągu podwµjne
E
gniazdo w łazience dla pralki podwµjne
F
gniazdo w łazience obok lustra
podwµjne
G
gniazdo w pokojach podwµjne
G1
gniazdo w korytarzu podwµjne
gniazdo na balkonie podwµjne
F1
gniazdo w łazience dla zasilania
grzejnika elektrycznego podwµjne
3K
w.p.30
D
G
G
RTV
7#
C
w.p.0
3
H
A
H
RTV
2
1
ZESTAWIENIE POWIERZCHNI
Korytarz
Pokój dzienny +
aneks kuchenny
Łazienka
Pokój
Balkon
pokój
A: 10,99 m2
2
A
1
G
7#
G
H
H
2
7,45 m2
17,37 m2
5,14 m2
10,99 m2
2,84 m2
1
1
gniazdo w pokojach podwµjne
H1
C
EDONRQ
$P
oprawa nastropowa oświetlenia
balkonów
D1
H
3
pokój dzienny+aneks kuchenny
A: 17,37 m2
D1
gniazdo w kuchni dla zasilania zmywarki
podwµjne
A
80
205
1
dzwonek
180
240
2
A
2
80
205
3
3
puszka 3f. dla kuchenki elektrycznej
ww
WK
włącznik świecznikowy
WO
KS
włącznik jednobiegunowy
WŁ
D2
C
D2
P E
F
włącznik jednobiegunowy
włącznik schodowy
KS
tablica mieszkaniowa TM
A
F1
80
205
70
G
A
'
osprzęt w ramce podwójnej
RTV
G1
korytarz
A: 7,45 m2
WŁ
F
łazienka
A: 5,14 m2
grzejnik elektryczny ogrzewania
łazienek
ww
A
100
205
włącznik świecznikowy
70
LD1
D2
3
włącznik dwubiegunowy
ww
D3
K
EI 30
gniazdo RTV
7#
gniazdo telefoniczne / internetowe
'
domofon
SKALA
skrzynka typu mini
DomNet
0
grzejnik
Inwestor:
Projektant:
Projekt:
LITOBORSKI + MARCINIAK
B I U R O A R C H I T E K T O N I C Z N E Sp. z o.o.
C ATALINA AVALON Sp. z o.o.
02-647 Warszawa, ul. Tagore'a 3
tel: 022/854 08 74, fax: 022/854 08 59
www.catalina.com.pl
60-749 Poznań
ul. Wyspiańskiego 10/9
tel: 061/866 13 84
fax: 061/866 17 36
e-mail: [email protected]
Zespół mieszkaniowy wraz z infrastrukturą
techniczną i parkingiem podziemnym przy
ul. Dywizjonu 303 w Warszawie
Faza:
Katalog mieszkań
BranŜa:
Architektura
Data:
czerwiec 2007
1
2
3
mieszkanie
A/A/1/6
2 POK. - 40,95 m2
1 PIĘTRO