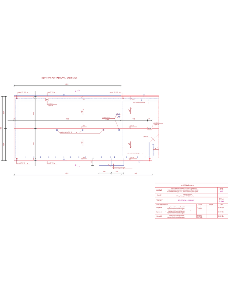
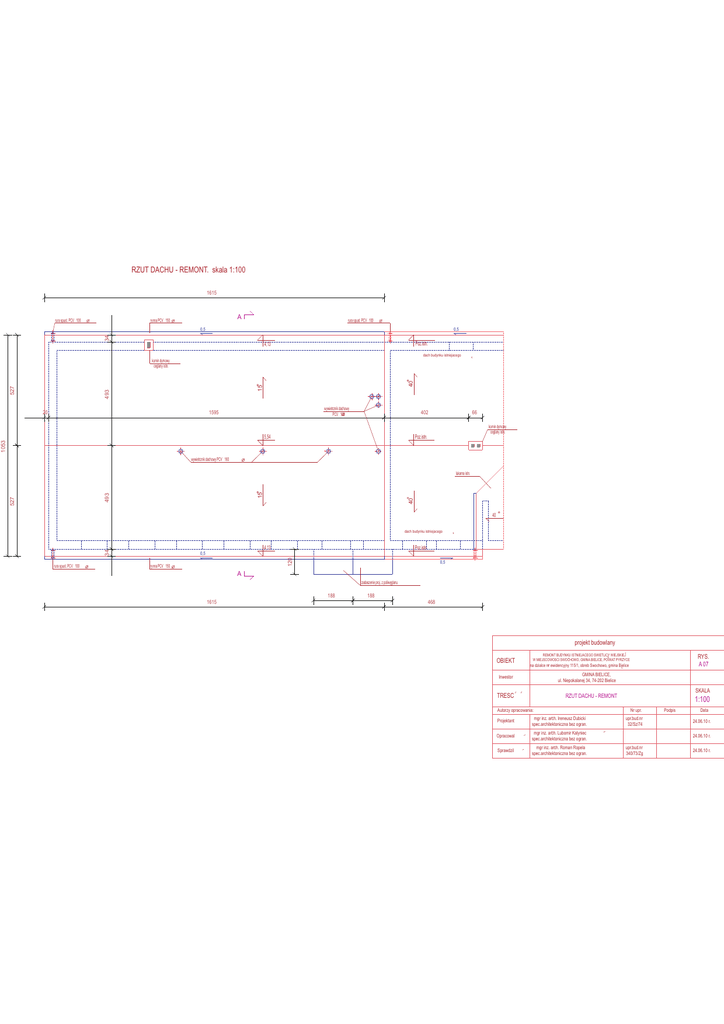
RZUT DACHU - REMONT. skala 1:100 -

Transkrypt

RZUT DACHU - REMONT. skala 1:100 -
RZUT DACHU - REMONT. skala 1:100
1615
rura spust. PCV 100
A
rynna PCV 150
rura spust. PCV 100
0,5
34
0,5
Poz.istn.
4,13
dach budynku istniejacego
40
15
493
527
komin dymowy
ceglany istn.
20
wywietrznik dachowy
PCV 160
1595
402
komin dymowy
ceglany istn.
Poz.istn.
1053
5,54
66
wywietrznik dachowy PCV 160
40
527
493
15
lukarna istn.
40
dach budynku istniejacego
4,13
34
Poz.istn.
0,5
120
rura spust. PCV 100
rynna PCV 150
0,5
A
zadaszenie proj. z poliwęglanu
188
1615
188
468
projekt budowlany
OBIEKT
REMONT BUDYNKU ISTNIEJACEGO SWIETLICY WIEJSKIEJ
W MIEJSCOWOSCI SWOCHOWO, GMINA BIELICE, POWIAT PYRZYCE
RYS.
A 07
na dzialce nr ewidencyjny 115/1, obreb Swochowo, gmina Bielice
Inwestor
GMINA BIELICE,
ul. Niepokalanej 34, 74-202 Bielice
TRESC
RZUT DACHU - REMONT
Autorzy opracowania:
Projektant
mgr inz. arch. Ireneusz Dubicki
spec.architektoniczna bez ogran.
Opracowal
mgr inz. arch. Lubomir Kalyniec
spec.architektoniczna bez ogran.
Sprawdzil
mgr inz. arch. Roman Ropela
spec.architektoniczna bez ogran.
SKALA
1:100
Nr upr.
upr.bud.nr
32/Sz/74
Podpis
Data
24.06.10 r.
24.06.10 r.
upr.bud.nr
340/73/Zg
24.06.10 r.