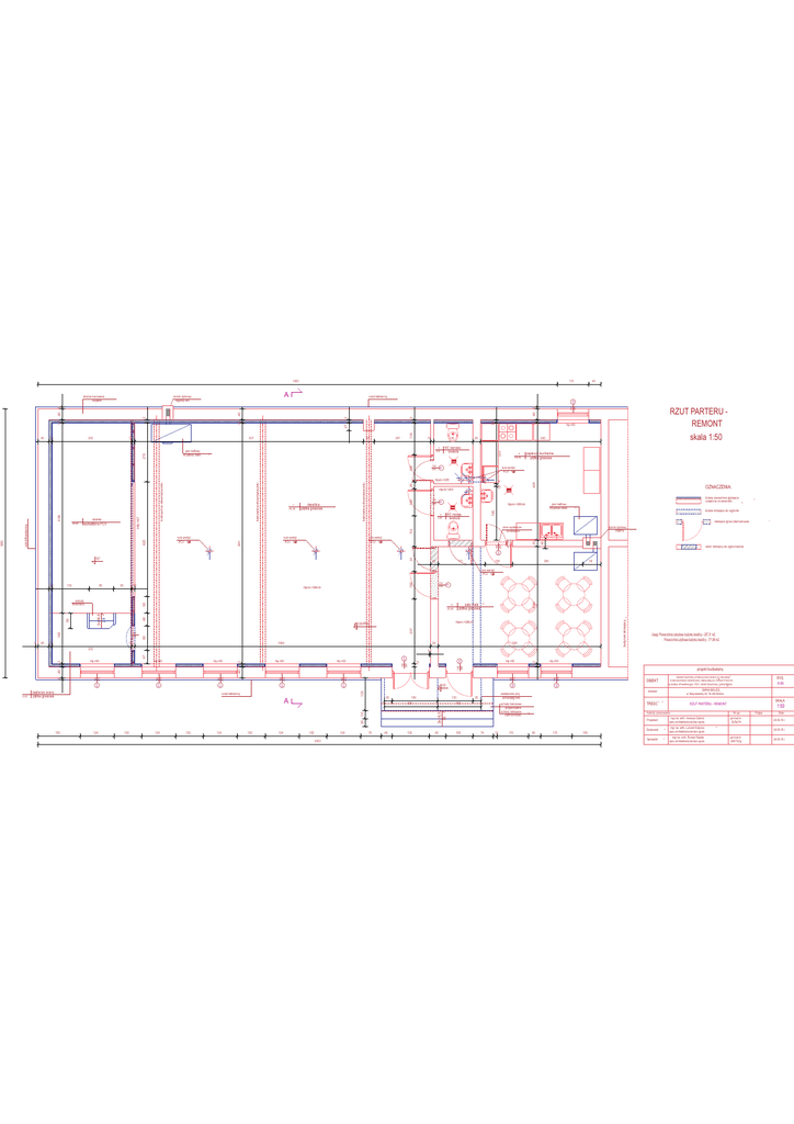
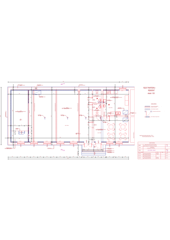
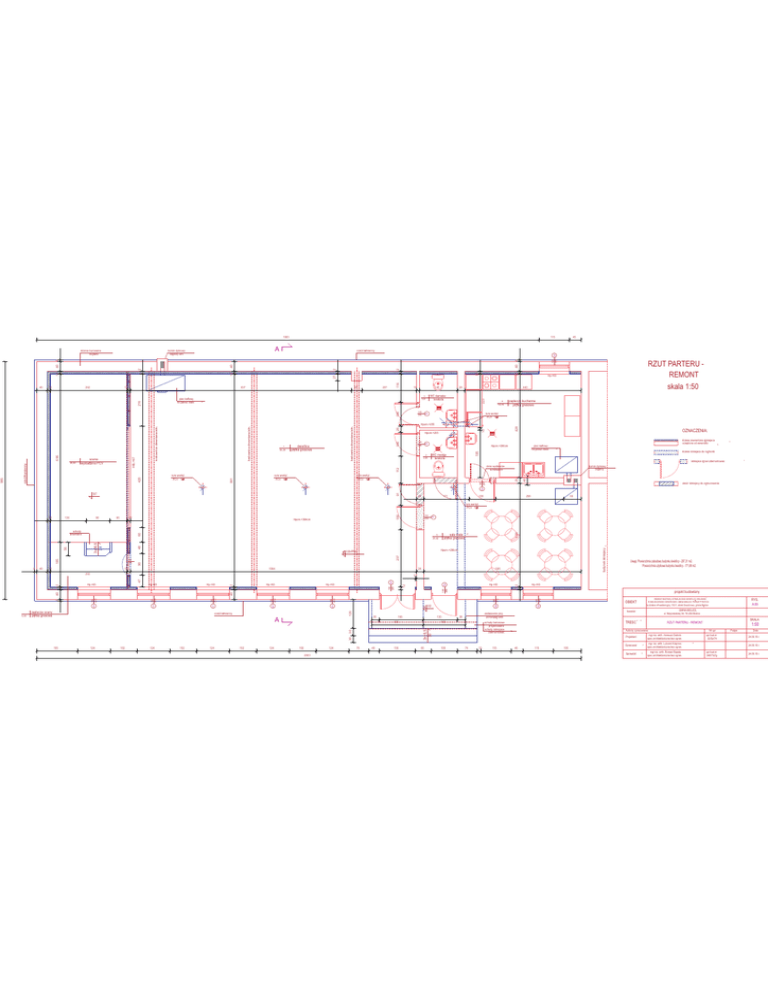
RZUT PARTERU - REMONT skala 1:50

Transkrypt

RZUT PARTERU - REMONT skala 1:50
1903
115
A
115
172
8
40
40
207
10
145
100
100
205
28
Hp.=93
440
WC damskie
terakota
3
3,23
12
12
837
piec kaflowy
na paliwo stale
223
12
116
292
216
12
RZUT PARTERU REMONT
skala 1:50
12
27 12
40
12
12
40
12
40
45
cokól kamienny
O2
komin dymowy
ceglany istn.
8
sciana murowana
ceglana
4
18,78
zaplecze kuchenne
plytka gresowa
rura wentyl.
PCV 160
D5
sciana istniejaca do rozbiorki
195
100
piec kaflowy
na paliwo stale
Hpom.=296cm
WC meskie
terakota
istniejace drzwi zdemontowac
komin dymowy
ceglany
rura wentyl.
PCV 160
100
205
40
okno wydawcze
w drzwiach
25
rura wentyl.
PCV 160
OZNACZENIA:
sciana zewnetrzna istniejaca
ocieplona od wewnatrz
D5
2
2,83
428
10
Hpom.=255
100
205
112
swietlica
plytka gresowa
25
kratownica drewniana istn.
1
95,39
881
rura wentyl.
PCV 160
otwór istniejacy do zamurowania
D3
420
scena
wykladzina PCV
kratownica drewniana istn.
kratownica drewniana istn.
Hsc.=67
20,83
cokól kamienny
91
0,67
28
171
100
258
66
66
12
Hpom.=296cm
237
90
90
205
12
12
1084
28
292
Uwagi: Powierzchnia zabudowy budynku świetlicy - 207,31 m2.
Powierzchnia użytkowa budynku świetlicy - 171,88 m2.
30
124
222
O1
102
124
102
124
102
124
2063
30
160
76
40
136
60
100
13
115
115
Projektant
mgr inz. arch. Ireneusz Dubicki
spec.architektoniczna bez ogran.
Opracowal
mgr inz. arch. Lubomir Kalyniec
spec.architektoniczna bez ogran.
Sprawdzil
mgr inz. arch. Roman Ropela
spec.architektoniczna bez ogran.
105
SKALA
RZUT PARTERU - REMONT
Autorzy opracowania:
46
RYS.
A 06
GMINA BIELICE,
ul. Niepokalanej 34, 74-202 Bielice
TRESC
schody betonowe
projektowane
schody istniejace
zdemontowac
74
REMONT BUDYNKU ISTNIEJACEGO SWIETLICY WIEJSKIEJ
W MIEJSCOWOSCI SWOCHOWO, GMINA BIELICE, POWIAT PYRZYCE
na dzialce nr ewidencyjny 115/1, obreb Swochowo, gmina Bielice
Inwestor
zadaszenie proj.
poliweglanowe
3x16,5
30
30
30
124
130
115
172
124
222
O1
102
12
D2
166
196
OBIEKT
O2
124
222
O1
124
115
O2
172
124
222
O1
A
Hp.=93
projekt budowlany
0,02
120
124
222
cokól kamienny
Hp.=93
100
205
136
205
Hp.=93
12
Hp.=93
12
Hp.=93
40
Hp.=93
D1
47
Hp.=93
zaplecze sceny
plytka gresowa
155
595
5
O1
12
5,40
sala mala
plytka gresowa
5
25,42
48
3x16,5
28
56
40
D4
0,00=PPistn.
185
8
100
205
60
schody
drewniane
Hpom.=364cm
budynek istniejacy
90
428
136
100
rura wentyl.
PCV 160
12
8 40
985
696
Hpom.=255
1:50
Nr upr.
upr.bud.nr
32/Sz/74
Podpis
Data
24.06.10 r.
24.06.10 r.
upr.bud.nr
340/73/Zg
24.06.10 r.