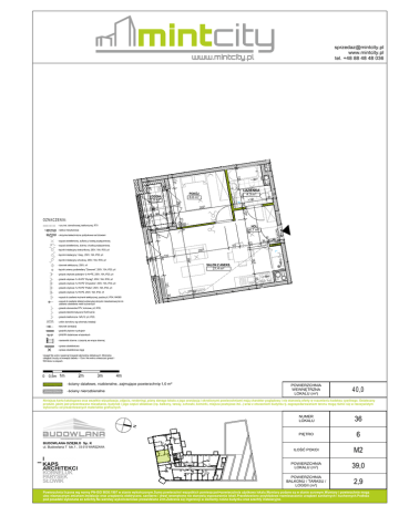
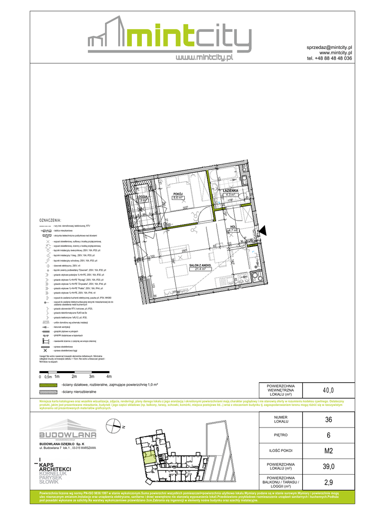
36 6 M2 39,0 2,9 40,0

Transkrypt

36 6 M2 39,0 2,9 40,0
[email protected]
www.mintcity.pl
tel. +48 88 48 48 036
20
75
RD
775
20
805
123
78
61
40
465
75
55
575
TM
166
8
40
6
6
HOL
4,7 m2
515
- wypust oświetleniowy, sufitowy z kostką przyłączeniową
36
12
111
60
- wypust oświetleniowy, ścienny z kostką przyłączeniową
KOMUNIKACJA
20,2 m
4
80
20
60
TSM
100
5
141
5
384
200
40
85
L
5
290
- łącznik instalacyjny świecznikowy, 250V, 16A, IP20, p/t
- łącznik instalacyjny 1-bieg., 250V, 16A, IP20, p/t
142
ZH
Ø52
1
- skrzynka teletechniczna podtynkowa nad drzwiami
- łącznik instalacyjny schodowy, 250V, 16A, IP20, p/t
4
5
113
33
5
178
20
12
P
40
5
90
5
302
4,3 m2
27
88
TSM
5
5
103
5
189
178
- tablica mieszkaniowa
TM
12
200
88
- rury inst. domofonowej, telefonicznej, RTV
40
ŁAZIENKA
POKÓJ
8,6 m2
LOGGIA
2,9 m2
15
5
OZNACZENIA:
KOMUNIKACJA
7,5 m2
75
SALON Z ANEKS.
21,4 m2
- dzwonek elektryczny, 250V, n/t
- łącznik zwierny podświetlany "Dzwonek", 250V, 10A, IP20, p/t
- gniazdo wtykowe podwójne 1L+N+PE, 250V, 16A, IP20, p/t
65
- gniazdo wtykowe 1L+N+PE "Wyciąg", 250V, 16A, IP20, p/t
20
133
- gniazdo wtykowe 1L+N+PE "Zmywarka", 250V, 16A, IP44, p/t
- gniazdo wtykowe 1L+N+PE "Pralka", 250V, 16A, IP44, p/t
60
155
60
885
735
5
124
885
665
40
60
- gniazdo teleinformatyczne RJ45 kat.5e
665
5 100
- gniazdo abonenckie RTV, końcowe, p/t, IP20,
665
4
6
51
60
665
20
- wypust do zasilania kuchenki elektrycznej, puszka p/t, IP54, WK060
- wypust do zasilania telekomunikacyjnej skrzynki mieszkaniowej lub do
zasilania oświetlenia mebli kuchennych
154
4
20
20
- gniazdo wtykowe 1L+N+PE, 250V, 16A, IP44, n/t
- gniazdo telefoniczne 1xRJ12, p/t, IP20,
- unifon domofonu wg schematu instalacji
- kierunek wentylacji
- grzejniki płytowe w pokojach
- grzejniki drabinkowe w łazienkach
- nawiewniki ścienne z czerpnią we wnęce okiennej
- oprawa oświetleniowa
- oprawa oświetleniowa loggi
Uwaga! Nie wolno nawiercać krawędzi elementów żelbetowych. Minimalna
odległość bruzdy od krawędzi żelbetu = 15cm. Nie wolno umieszczać gniazd i
łączników na słupach.
0 0,5m 1m
2m
3m
4m
-ściany działowe, rozbieralne, zajmujące powierzchnię 1,0 m²
-ściany nierozbieralne
POWIERZCHNIA
WEWNĘTRZNA
LOKALU (m²)
40,0
Niniejsza karta katalogowa oraz wszelkie wizualizacje, zdjęcia, renderingi, plany danego lokalu z jego aranżacją i określonymi powierzchniami mają charakter poglądowy i nie stanowią oferty w rozumieniu kodeksu cywilnego. Ostateczny
produkt, jakim jest prezentowane mieszkanie, budynek i jego części składowe (np. balkony, tarasy, schowki, komórki, miejsca postojowe itd...) wraz z otoczeniem budynku tj. zagospodarowaniem terenu mogą różnić się w rzeczywistym
wykonaniu od prezentowanych materiałów graficznych.
36
PIĘTRO
6
ILOŚĆ POKOI
M2
POWIERZCHNIA
LOKALU (m²)
39,0
POWIERZCHNIA
BALKONU / TARASU /
LOGGII (m²)
2,9
N
NUMER
LOKALU
www.budowlana.waw.pl
BUDOWLANA OZIĘBŁO Sp. K
ul. Budowlana 7 lok.1 , 03-315 WARSZAWA
Powierzchnia liczona wg normy PN-ISO 9836:1997 w stanie wykończonym.Suma powierzchni wszystkich pomieszczeń=powierzchnia użytkowa lokalu.Wymiary podane są w stanie surowym.Wymiary i powierzchnie mogą
ulec nieznacznym zmianom.Instalacje oraz urządzenia elektryczne, sanitarne i drzwi wewnętrzne nie stanowią wyposarzenia lokali.Przedstawiono przykładowe rozmieszczenie urządzeń sanitarnych i kuchennych.Podłoża
pod posadzki wykonane ze szlichty.Na warstwy wykończeniowe przewidziano 2cm.Zabrania się ingerencji w elementy nośne budynku oraz szachty instalacyjne.