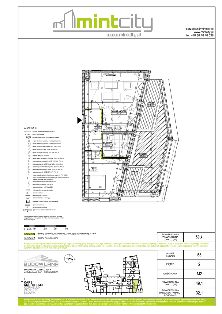
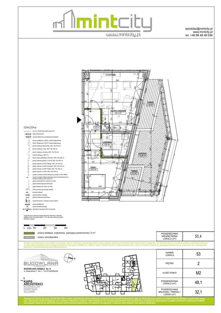
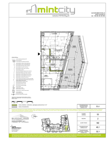
53 2 M2 49,1 32,1 50,4

Transkrypt

53 2 M2 49,1 32,1 50,4
535
545
1,9 m2
105
20
TARAS
64 5
20
20 5
20
[email protected]
www.mintcity.pl
tel. +48 88 48 48 036
115
281
5
875
3425
200
8
5285
110
1695
281
TARAS
12 5
100
L
12
71
210
51 5
20
5,9 m2
sb h=250cm
P
52
12
OGRÓDEK
19,8 m2
2425
- gniazdo wtykowe 1L+N+PE "Zmywarka", 250V, 16A, IP44, p/t
1575
2545
POKÓJ
13,6 m2
- gniazdo wtykowe 1L+N+PE "Pralka", 250V, 16A, IP44, p/t
5 5
11501
20
20
- gniazdo wtykowe podwójne 1L+N+PE, 250V, 16A, IP20, p/t
- gniazdo wtykowe 1L+N+PE "Wyciąg", 250V, 16A, IP20, p/t
111
12 5
- łącznik zwierny podświetlany "Dzwonek", 250V, 10A, IP20, p/t
110
1055
12
70 8
- łącznik instalacyjny schodowy, 250V, 16A, IP20, p/t
3245
224
63
5,5 m2
- łącznik instalacyjny 1-bieg., 250V, 16A, IP20, p/t
- dzwonek elektryczny, 250V, n/t
230
ŁAZIENKA
- wypust oświetleniowy, ścienny z kostką przyłączeniową
- łącznik instalacyjny świecznikowy, 250V, 16A, IP20, p/t
103
- skrzynka teletechniczna podtynkowa nad drzwiami
- wypust oświetleniowy, sufitowy z kostką przyłączeniową
85
3
TARAS
- gniazdo wtykowe 1L+N+PE, 250V, 16A, IP44, n/t
20
- gniazdo abonenckie RTV, końcowe, p/t, IP20,
- gniazdo teleinformatyczne RJ45 kat.5e
3055
- gniazdo telefoniczne 1xRJ12, p/t, IP20,
20
- kierunek wentylacji
141
100
5
64
10
10
1
115
352
110
157
6
115
24 5 1
8
75
11
45
75
75
- grzejniki płytowe w pokojach
63
- unifon domofonu wg schematu instalacji
233
138
200
3645
- wypust do zasilania telekomunikacyjnej skrzynki mieszkaniowej lub do
zasilania oświetlenia mebli kuchennych
110
4,5 m2
- wypust do zasilania kuchenki elektrycznej, puszka p/t, IP54, WK060
34 6
75
11 1 5
02
TSM
35
9
20 5
- tablica mieszkaniowa
110
- rury inst. domofonowej, telefonicznej, RTV
TM
20
321
214
TM
52
HOL
20
110
1055
110
SALON Z ANEKSEM
24,1 m2
TSM
OZNACZENIA:
7,8 m2
143 5
8
20
40
- grzejniki drabinkowe w łazienkach
- nawiewniki ścienne z czerpnią we wnęce okiennej
- oprawa oświetleniowa
- oprawa oświetleniowa loggi
sb h=250cm - spód belki na wysokości 250cm od posadzki
Uwaga! Nie wolno nawiercać krawędzi elementów żelbetowych. Minimalna
odległość bruzdy od krawędzi żelbetu = 15cm. Nie wolno umieszczać gniazd i
łączników na słupach.
0 0,5m 1m
2m
3m
4m
-ściany działowe, rozbieralne, zajmujące powierzchnię 1,3 m²
-ściany nierozbieralne
POWIERZCHNIA
WEWNĘTRZNA
LOKALU (m²)
50,4
Niniejsza karta katalogowa oraz wszelkie wizualizacje, zdjęcia, renderingi, plany danego lokalu z jego aranżacją i określonymi powierzchniami mają charakter poglądowy i nie stanowią oferty w rozumieniu kodeksu cywilnego. Ostateczny
produkt, jakim jest prezentowane mieszkanie, budynek i jego części składowe (np. balkony, tarasy, schowki, komórki, miejsca postojowe itd...) wraz z otoczeniem budynku tj. zagospodarowaniem terenu mogą różnić się w rzeczywistym
wykonaniu od prezentowanych materiałów graficznych.
53
PIĘTRO
2
ILOŚĆ POKOI
M2
POWIERZCHNIA
LOKALU (m²)
49,1
POWIERZCHNIA
BALKONU / TARASU /
LOGGII (m²)
32,1
N
NUMER
LOKALU
www.budowlana.waw.pl
BUDOWLANA OZIĘBŁO Sp. K
ul. Budowlana 7 lok.1 , 03-315 WARSZAWA
Powierzchnia liczona wg normy PN-ISO 9836:1997 w stanie wykończonym.Suma powierzchni wszystkich pomieszczeń=powierzchnia użytkowa lokalu.Wymiary podane są w stanie surowym.Wymiary i powierzchnie mogą
ulec nieznacznym zmianom.Instalacje oraz urządzenia elektryczne, sanitarne i drzwi wewnętrzne nie stanowią wyposarzenia lokali.Przedstawiono przykładowe rozmieszczenie urządzeń sanitarnych i kuchennych.Podłoża
pod posadzki wykonane ze szlichty.Na warstwy wykończeniowe przewidziano 2cm.Zabrania się ingerencji w elementy nośne budynku oraz szachty instalacyjne.