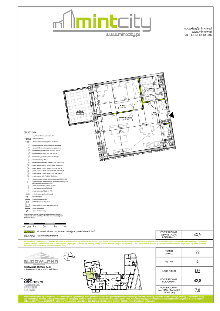
22 4 M2 42,8 7,0 43,9

Transkrypt

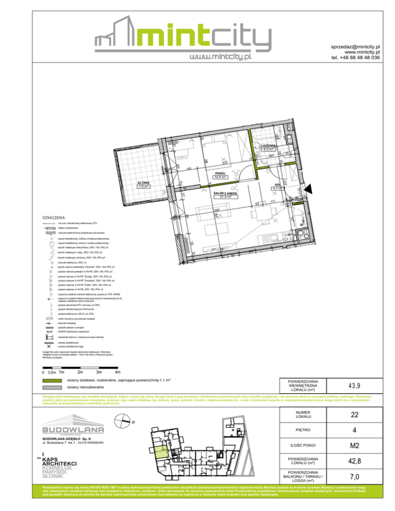
22 4 M2 42,8 7,0 43,9
[email protected]
www.mintcity.pl
tel. +48 88 48 48 036
20
428
RD
775
60
5
297
20
123
805 20
75
78
75
20 4 195
61
ŁAZIENKA
4,3 m2
200
140
40
20
POKÓJ
12,4 m2
85
TSM
L
80
5
141
5
384
200
OZNACZENIA:
20 4
60
5
390
40
104
36
12
111
60
TM
515
SALON Z ANEKS.
21,4 m2
5
223
20
HOL
4,7 m2
61
ZH
Ø52
8
15
ALTANA
7,0 m2
115
5
113
12
P
288
12
5
302
5
103
5
186
25
- rury inst. domofonowej, telefonicznej, RTV
- tablica mieszkaniowa
TM
- skrzynka teletechniczna podtynkowa nad drzwiami
65
TSM
- wypust oświetleniowy, sufitowy z kostką przyłączeniową
20
133
- wypust oświetleniowy, ścienny z kostką przyłączeniową
4
20
- łącznik instalacyjny świecznikowy, 250V, 16A, IP20, p/t
5
124
735
20
42
4
60
5
124
7
17
KOMUNIKACJA
885
665
885
665
4
665
- łącznik zwierny podświetlany "Dzwonek", 250V, 10A, IP20, p/t
5 100
40
- dzwonek elektryczny, 250V, n/t
690
60
665
20
- łącznik instalacyjny 1-bieg., 250V, 16A, IP20, p/t
- łącznik instalacyjny schodowy, 250V, 16A, IP20, p/t
- gniazdo wtykowe podwójne 1L+N+PE, 250V, 16A, IP20, p/t
- gniazdo wtykowe 1L+N+PE "Wyciąg", 250V, 16A, IP20, p/t
- gniazdo wtykowe 1L+N+PE "Zmywarka", 250V, 16A, IP44, p/t
- gniazdo wtykowe 1L+N+PE "Pralka", 250V, 16A, IP44, p/t
- gniazdo wtykowe 1L+N+PE, 250V, 16A, IP44, n/t
- wypust do zasilania kuchenki elektrycznej, puszka p/t, IP54, WK060
- wypust do zasilania telekomunikacyjnej skrzynki mieszkaniowej lub do
zasilania oświetlenia mebli kuchennych
- gniazdo abonenckie RTV, końcowe, p/t, IP20,
- gniazdo teleinformatyczne RJ45 kat.5e
- gniazdo telefoniczne 1xRJ12, p/t, IP20,
- unifon domofonu wg schematu instalacji
- kierunek wentylacji
- grzejniki płytowe w pokojach
- grzejniki drabinkowe w łazienkach
- nawiewniki ścienne z czerpnią we wnęce okiennej
- oprawa oświetleniowa
- oprawa oświetleniowa loggi
Uwaga! Nie wolno nawiercać krawędzi elementów żelbetowych. Minimalna
odległość bruzdy od krawędzi żelbetu = 15cm. Nie wolno umieszczać gniazd i
łączników na słupach.
0 0,5m 1m
2m
3m
4m
-ściany działowe, rozbieralne, zajmujące powierzchnię 1,1 m²
-ściany nierozbieralne
POWIERZCHNIA
WEWNĘTRZNA
LOKALU (m²)
43,9
Niniejsza karta katalogowa oraz wszelkie wizualizacje, zdjęcia, renderingi, plany danego lokalu z jego aranżacją i określonymi powierzchniami mają charakter poglądowy i nie stanowią oferty w rozumieniu kodeksu cywilnego. Ostateczny
produkt, jakim jest prezentowane mieszkanie, budynek i jego części składowe (np. balkony, tarasy, schowki, komórki, miejsca postojowe itd...) wraz z otoczeniem budynku tj. zagospodarowaniem terenu mogą różnić się w rzeczywistym
wykonaniu od prezentowanych materiałów graficznych.
22
PIĘTRO
4
ILOŚĆ POKOI
M2
POWIERZCHNIA
LOKALU (m²)
42,8
POWIERZCHNIA
BALKONU / TARASU /
LOGGII (m²)
7,0
N
NUMER
LOKALU
www.budowlana.waw.pl
BUDOWLANA OZIĘBŁO Sp. K
ul. Budowlana 7 lok.1 , 03-315 WARSZAWA
Powierzchnia liczona wg normy PN-ISO 9836:1997 w stanie wykończonym.Suma powierzchni wszystkich pomieszczeń=powierzchnia użytkowa lokalu.Wymiary podane są w stanie surowym.Wymiary i powierzchnie mogą
ulec nieznacznym zmianom.Instalacje oraz urządzenia elektryczne, sanitarne i drzwi wewnętrzne nie stanowią wyposarzenia lokali.Przedstawiono przykładowe rozmieszczenie urządzeń sanitarnych i kuchennych.Podłoża
pod posadzki wykonane ze szlichty.Na warstwy wykończeniowe przewidziano 2cm.Zabrania się ingerencji w elementy nośne budynku oraz szachty instalacyjne.