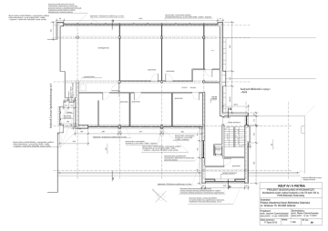
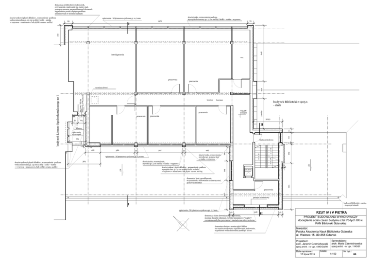
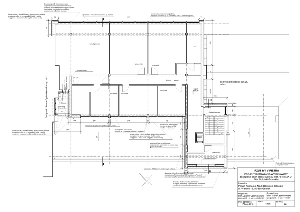
006_PAN BG_docieplenie_rzut IV i V pietra

Transkrypt

006_PAN BG_docieplenie_rzut IV i V pietra
demontaz profili stlowych teowych,
oczyszczenie, malowanie na czarny mat,
ponowny montaz na przedluzonych kotwach,
wypelnienie pustki cieplym profilem
aluminiowym w kolorze czarnym
skucie tynkow i plytek klinkier., wzmocnienie podloza
welna mineralna gr. 15 cm na klej i kolki + siatka
+ wyprawa + masa zewn. lub plytki ceram. na klej
skucie tynku, wzmocnienie podloza,
styropian frezowany gr. 15 cm na klej i kolki + siatka + wyprawa
opierzenie - bl.tytanowo-cynkowa gr. 0,7 mm
93
1970
70
628
219
I
introligatornia
w.c.
pracownia
pracownia
194
+13,26
+10,20
pracownia
323,5
84
II
44
klamry
112
opierzenie
tytan-cynk.
184
klatka schodowa
17
skucie tynku, wzmocnienie,
styrodur gr. 3 cm na klej + siatka + wyprawa
5%
skucie tynkow i plytek klinkier., wzmocnienie podloza
styropian frez. gr. 15 cm na klej i kolki + siatka
+ wyprawa + masa zewn. lub plytki ceram. na klej
213
5%
364
495
skucie tynku, wzmocnienie,
styrodur gr. 5 cm na klej
+ siatka + wyprawa
opierzenie - bl.tytanowo-cynkowa gr. 0,7 mm
10x17/28
33
10x17/28
507
10x17/28
33
160
386
26
istn.dzwig
towarowy
219
168
523
demontaz krat, przedluzenie,
oczyszczenie, malowanie na czarny mat,
ponowny montaz
pracownia
328
skucie tynkow i plytek klinkier., wzmocnienie podloza
welna mineralna gr. 15 cm na klej i kolki + siatka
+ wyprawa + masa zewn. lub plytki ceram. na klej
budynek Biblioteki z 1905 r.
- dach
pracownia
pracownia
60
korytarz
340,69
80/200 - EI 60
Umax=2,0 W/(m2K)
korytarz
353
budynek Liceum Ogolnoksztalcacego nr I
wymiana drzwi
parapet systemowy
budynek Biblioteki z 1905 r.
- magazyn ksiazek
I
opierzenie - bl.tytanowo-cynkowa gr. 0,7 mm
45
508
demontaz okien drewnianych i opierzenia,
montaz slusarki okiennej /profile aluminiowe "cieple"/
rozwierno-uchylne przezierne i nieotwierane nieprzezierne
demontaz obudow, montaz plyt GKFIx2
na ruszcie metalowym, szpachlowanie, malowanie,
wypelnienie welna mineralna pustki gr. 20 cm
II
RZUT IV i V PIETRA
45
PROJEKT BUDOWLANO-WYKONAWCZY
docieplenia scian czesci budynku z lat 70-tych XX w.
PAN Biblioteki Gdanskiej
Inwestor:
Polska Akademia Nauk Biblioteka Gdanska
ul. Walowa 15, 80-858 Gdansk
Projektant:
arch. Jaromir Czernichowski
Sprawdzjacy:
arch. Maria Czernichowska
specj.archit. - nr upr. 4440/Gd/90
specj.archit. - nr upr. 1140/61
Data opracow.:
17 lipca 2012
Skala:
Nr rys.:
1:100
06