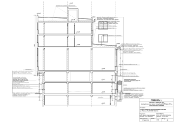
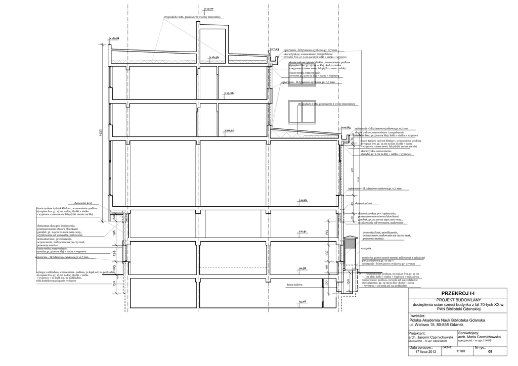
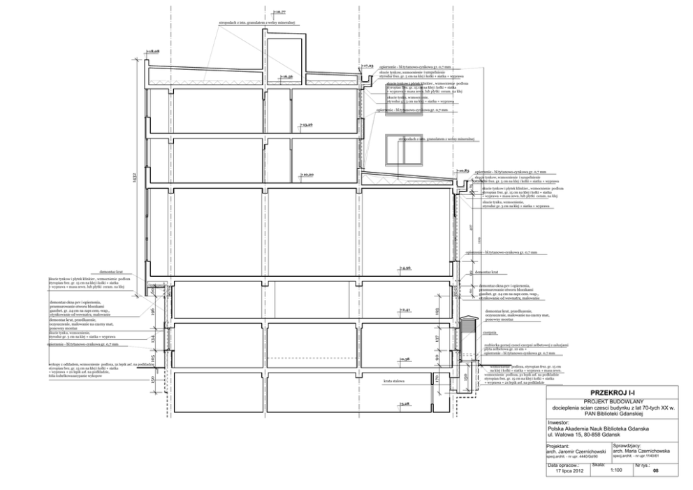
008_PAN BG_docieplenie_przekroj I-I

Transkrypt

008_PAN BG_docieplenie_przekroj I-I
+10,77
stropodach z istn. granulatem z welny mineralnej
+18,08
+17,23
opierzenie - bl.tytanowo-cynkowa gr. 0,7 mm
skucie tynkow, wzmocnienie i uzupelnienie
styrodur frez. gr. 5 cm na klej i kolki + siatka + wyprawa
+16,56
skucie tynkow i plytek klinkier., wzmocnienie podloza
styropian frez. gr. 15 cm na klej i kolki + siatka
+ wyprawa + masa zewn. lub plytki ceram. na klej
skucie tynku, wzmocnienie,
styrodur gr. 3 cm na klej + siatka + wyprawa
opierzenie - bl.tytanowo-cynkowa gr. 0,7 mm
+13,26
stropodach z istn. granulatem z welny mineralnej
+10,85
opierzenie - bl.tytanowo-cynkowa gr. 0,7 mm
skucie tynkow, wzmocnienie i uzupelnienie
styrodur frez. gr. 5 cm na klej i kolki + siatka + wyprawa
18 65
1432
+10,20
skucie tynkow i plytek klinkier., wzmocnienie podloza
styropian frez. gr. 15 cm na klej i kolki + siatka
+ wyprawa + masa zewn. lub plytki ceram. na klej
1119
407
skucie tynku, wzmocnienie,
styrodur gr. 3 cm na klej + siatka + wyprawa
opierzenie - bl.tytanowo-cynkowa gr. 0,7 mm
+4,96
193
60
60
demontaz krat
demontaz okna pcv i opierzenia,
przemurowanie otworu bloczkami
gazobet. gr. 24 cm na zapr.cem.-wap.,
otynkowanie od wewnatrz, malowanie
demontaz krat, przedluzenie,
oczyszczenie, malowanie na czarny mat,
ponowny montaz
137
czerpnia
150
krata stalowa
150
-0,58
wykopy z odkladem, wzmocnienie podloza, 3x lepik asf. na podkladzie
styropian frez. gr. 15 cm na klej i kolki + siatka
+ wyprawa + 2x lepik asf. na podkladzie,
folia kubelkowazasypanie wykopow
rozbiorka gornej czesci czerpni zelbetowej z zaluzjami
plyta zelbetowa gr. 10 cm +
opierzenie - bl.tytanowo-cynkowa gr. 0,7 mm
90
105
opierzenie - bl.tytanowo-cynkowa gr. 0,7 mm
+2,41
170
skucie tynku, wzmocnienie,
styrodur gr. 3 cm na klej + siatka + wyprawa
196
demontaz okna pcv i opierzenia,
przemurowanie otworu bloczkami
gazobet. gr. 24 cm na zapr.cem.-wap.,
otynkowanie od wewnatrz, malowanie
demontaz krat, przedluzenie,
oczyszczenie, malowanie na czarny mat,
ponowny montaz
134
skucie tynkow i plytek klinkier., wzmocnienie podloza
styropian frez. gr. 15 cm na klej i kolki + siatka
+ wyprawa + masa zewn. lub plytki ceram. na klej
149
demontaz krat
wzmocnienie podloza, styropian frez. gr. 15 cm
na klej i kolki + siatka + wyprawa + masa zewn.
wzmocnienie podloza, 3x lepik asf. na podkladzie
styropian frez. gr. 15 cm na klej i kolki + siatka
+ wyprawa + 2x lepik asf. na podkladzie
PRZEKROJ I-I
-3,28
PROJEKT BUDOWLANY
docieplenia scian czesci budynku z lat 70-tych XX w.
PAN Biblioteki Gdanskiej
Inwestor:
Polska Akademia Nauk Biblioteka Gdanska
ul. Walowa 15, 80-858 Gdansk
Projektant:
arch. Jaromir Czernichowski
Sprawdzjacy:
arch. Maria Czernichowska
specj.archit. - nr upr. 4440/Gd/90
specj.archit. - nr upr.1140/61
Data opracow.:
17 lipca 2012
Skala:
Nr rys.:
1:100
08