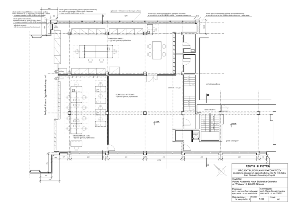
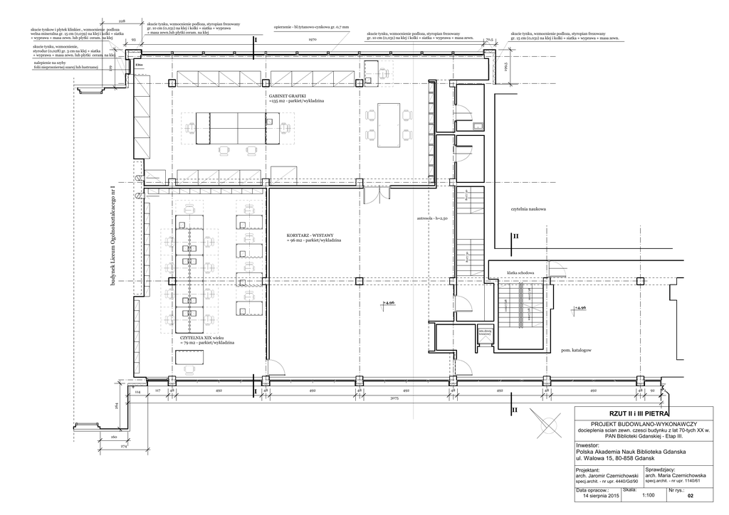
Docieplenie rzut II i III

Transkrypt

Docieplenie rzut II i III
228
skucie tynkow i plytek klinkier., wzmocnienie podloza
welna mineralna gr. 15 cm (0,039) na klej i kolki + siatka
+ wyprawa + masa zewn. lub plytki ceram. na klej
skucie tynku, wzmocnienie podloza, styropian frezowany
gr. 10 cm (0,031) na klej i kolki + siatka + wyprawa
+ masa zewn.lub plytki ceram. na klej
opierzenie - bl.tytanowo-cynkowa gr. 0,7 mm
I
93
skucie tynku, wzmocnienie podloza, styropian frezowany
gr. 10 cm (0,031) na klej i kolki + siatka + wyprawa + masa zewn.
1970
skucie tynku, wzmocnienie podloza, styropian frezowany
gr. 15 cm (0,031) na klej i kolki + siatka + wyprawa + masa zewn.
70,5
219
EI60
8x17/30
budynek Liceum Ogolnoksztalcacego nr I
GABINET GRAFIKI
=135 m2 - parkiet/wykladzina
czytelnia naukowa
antresola - h=2,50
KORYTARZ - WYSTAWY
= 96 m2 - parkiet/wykladzina
8x17/30
II
+4,96
+4,96
10x17/28
10x17/28
10x17/28
klatka schodowa
istn.dzwig
towarowy
CZYTELNIA XIX wieku
= 79 m2 - parkiet/wykladzina
pom. katalogow
114
117
48
492
I
48
492
48
492
48
492
48
492
48
92
4
3075
264
nalepienie na szyby
folii nieprzeziernej szarej lub lustrzanej
199,5
skucie tynku, wzmocnienie,
styrodur (0,028) gr. 3 cm na klej + siatka
+ wyprawa + masa zewn. lub plytki ceram. na klej
II
RZUT II i III PIETRA
PROJEKT BUDOWLANO-WYKONAWCZY
docieplenia scian zewn. czesci budynku z lat 70-tych XX w.
PAN Biblioteki Gdanskiej - Etap III.
160
274
Inwestor:
Polska Akademia Nauk Biblioteka Gdanska
ul. Walowa 15, 80-858 Gdansk
Projektant:
arch. Jaromir Czernichowski
Sprawdzjacy:
arch. Maria Czernichowska
specj.archit. - nr upr. 4440/Gd/90
specj.archit. - nr upr. 1140/61
Data opracow.:
14 sierpnia 2015
Skala:
Nr rys.:
1:100
02