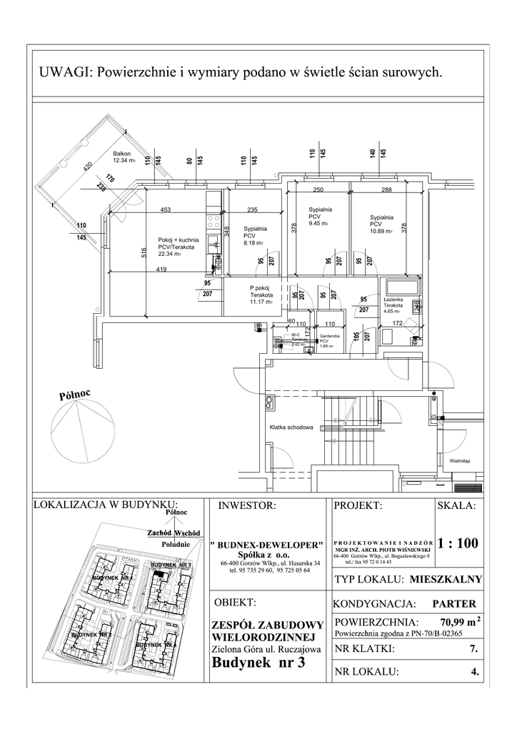
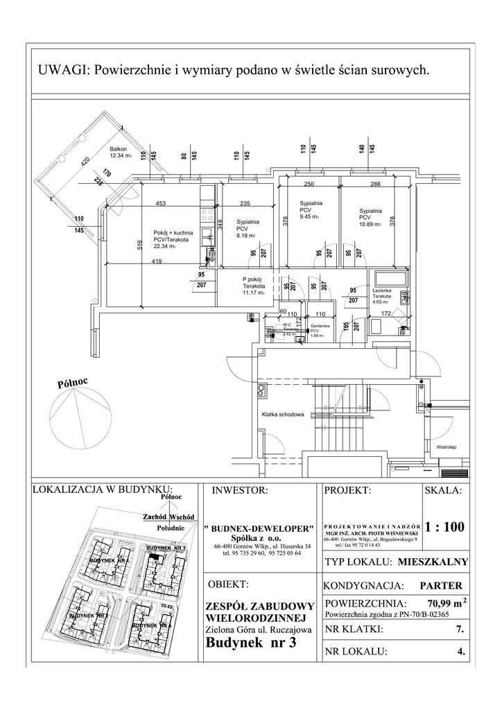
P.pokój Terakota 11.17 m2 Sypialnia PCV 10.89 m2 Pokój

Transkrypt

P.pokój Terakota 11.17 m2 Sypialnia PCV 10.89 m2 Pokój
145
140
145
110
145
110
80
145
145
110
42
0
Balkon
12.34 m 2
0
17
5
95
207
Sypialnia
PCV
10.89 m 2
207
95
PCV/Terakota
22.34 m 2
Sypialnia
PCV
8.18 m 2
95
145
378
348
110
419
95
207
Klatka schodowa
172
110
Garderoba
PCV
1.89 m 2
207
W-C
Terakota
2.42 m 2
105
172
60 110
Terakota
4.65 m2
246
207
Terakota
11.17 m 2
95
95
207
95
207
516
Sypialnia
PCV
9.45 m2
235
207
453
288
378
23
250